« Zurück

Stilvolles Ferienhaus in naturschöner Umgebung

Katalognr.: 72117

Nybyvej 20C, Rindby

Herzlich willkommen in diesem modernen und zeitgleich gemütlichen Ferienhaus im Nybyvej 20C, auf der Wattenmeer-Insel Fanø. Auf 133 qm findet die ganze Familie Platz und auch euer Vierbeiner darf euch gerne begleiten. Tolle Extras wie ein Kamin, eine Wärmepumpe, zwei Bäder, sowie die inkludierte Endreinigung werden euch die Urlaubszeit versüßen.

Moderne und geschmackvolle Ausstattung lädt zum Wohlfühlen ein

Bereits beim Betreten dieses Ferienhauses fällt einem die, mit Liebe zum Detail ausgewählte, Einrichtung auf, welche zu einem harmonischen Gesamtbild zusammengefügt wurde. Im Wohnraum findet ihr einen pflegeleichten Holzboden vor, der gut zu den hellen Wänden und der Holzdecke passt. Die zahlreichen, bodentiefen Fenster sorgen für viel natürliches Licht und ihr könnt den Blick in die Natur schweifen lassen.

Hier könnt ihr es euch auf der gemütlichen Couch bequem machen, den Kamin entzünden und die Wohlfühlatmosphäre genießen, die sich mit der angenehmen Wärme verbreitet. Aber auch die energiesparende Wärmepumpe könnt ihr gerne zum Heizen nutzen.

Im großzügigen Wohnraum ist jede Menge Platz für Familienaktivitäten. Ob ihr nun gemeinsam einen DVD-Abend, mit selbstgemachtem Popcorn, verbringen wollt, am Esstisch Gesellschaftsspiele spielen möchtet oder on der offenen Küche einen dänischen Kochabend veranstaltet, ist dabei ganz euch überlassen. Der Fantasie sind keine Grenzen gesetzt. Auch um den Abwasch braucht ihr euch später nicht zu Sorgen, den hierfür steht der Geschirrspüler bereit.

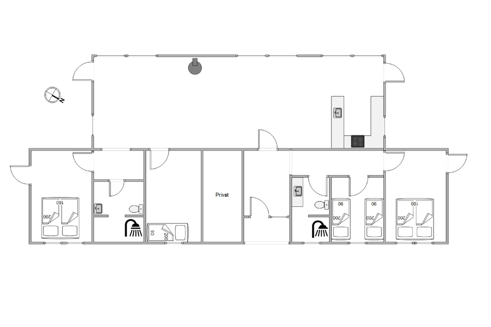
Gerade für Familien mit kleinen Kindern, sind auch die vorhandene Waschmaschine und der Trockner wichtige Alltagshelfer. Sogar an ein extra Kinderbett und einen Hochstuhl wurde hier gedacht. Damit ihr ein Schlangestehen vermeiden könnt, gibt es gleich zwei moderne Duschbäder in diesem Ferienhaus ? natürlich mit Fußbodenheizung.

Nach einem ereignisreichen Urlaubstag könnt ihr euch in vier gemütliche und schön eingerichtete Schlafzimmer zurückziehen. Hier stehen euch zwei bequeme Doppelbetten und insgesamt vier Einzelbetten zur Verfügung.

Schönes Naturgrundstück mit Platz zum Entspannen und Spielen

Euer Ferienhaus, auf der Nordseeinsel Fanø, liegt ganz idyllisch, auf einem schönen Naturgrundstück. Dieses ist teils von Büschen und Bäumen umwachsen, was euch Privatsphäre und Windschutz bietet. Rund um das moderne Ferienhaus verläuft eine großzügige Holzterrasse, die jede Menge Entspannungsmöglichkeiten bereithällt. Hier könnt ihr mit der Sonne wandern oder bei Regen in einem der überdachten Bereiche Schutz finden.

Macht es euch in den Gartenmöbeln oder auf den Sonnenliegen bequem und lasst den Blick in die Natur schweifen. Eure Kinder können sich derweil im Sandkasten oder im Spielhaus austoben. Nach einem ereignisreichen Urlaubstag könnt ihr den Grill entzünden und bei einem leckeren BBQ, neue Pläne für den nächsten Urlaubstag schmieden.

Vorm Ferienhaus findet ihr zudem einen eingezäunten Bereich, in dem eure Kinder oder der Hund frei laufen können, ohne dass ihr euch Sorgen machen müsst, dass sie ohne euch die Gegend erkunden.

Rindby auf Fanø ? ein fantastisches Gebiet für Jung und Alt

Euer Ferienhaus im Nybyvej 20C, liegt nur 800 m vom kilometerbreiten Sandstrand entfernt, der zu Fuß oder mit dem Fahrrad schnell erreicht werden kann. Der Strand von Rindby ist sehr kinderfreundlich, da die Flut im Sommer oft niedrig ist. Außerdem ist der Strand mit Rettungsschwimmern in den Türmen besetzt und hat einen direkten Zugang zum Strand mit dem Auto. Der Strand ist auch ein wahres Mekka für alle Action- und Abenteuerliebhaber, und neben den vielen Badegästen sieht man hier auch oft Wind- und Kitesurfer.

Ausstattung

  6 Personen
  1 Haustiere erlaubt
  1500 m Abstand zum Kaufmann
  800 m Abstand zum Strand
Geschirr-spüler
Nicht-Raucher

Weitere Ausstattung

Das Haus

  Grundstück: 1870 m²
  Wohnfläche: 133 m²
  Baujahr: 2016
  Einkaufsmöglichkeiten: 1500 m
  Nordsee: 800 m
  Personen: 6
  Schlafzimmer: 4
  Einzelbetten: 4
  Doppelbetten: 2
  Kinderstühle: 1
  Kinderbetten: 1
  Haustiere
  Holzofen
  Waschmaschine
  Geschirr-spüler
  Trockner

Zimmer

Küche:
  Kühlschrank
  Ofen
  Mikrowelle

Badezimmer:
  Badezimmer: 2

Unterhaltung

  DVD-Player
  Deutsche Fernsehsender

Draussen

  Liegestühle
  Grill

Bedingungen

Bei Ankunft kannst du die Schlüssel ab 15 Uhr in unserem Büro abholen. Abreise ist spätestens um 10 Uhr bzw. 9 Uhr wenn die Endreinigung von uns unternommen wird.

Auf Karte

Haus buchen
Wochenkalender 2025
48
49
50
51
52

Dauer

Die gewählte Periode: KW
-
Preis: Haus buchen »
Kontakt  Ruf mich an

Ähnliche Häuser

Strandvejen 61A, 123 st
Fanø Bad
Preis ab 322 EUR
Mehr sehen
Strandvejen 61A, 208
Fanø Bad
Preis ab 322 EUR
Mehr sehen
Vindgaf 6A
Rindby
Preis ab 402 EUR
Mehr sehen
Strandvejen 61A, 120 st
Fanø Bad
Preis ab 322 EUR
Mehr sehen