« Zurück

Tolle Ferienwohnung mit Meerblick - 2 Personen + 2 Hunde

Katalognr.: 71036

Strandvejen 61A, 208, Fanø Bad

In der ersten Reihe gleich hinter den Dünen, im schönen Ferienort Fanø Bad gelegen, erwartet euch diese kleine und urgemütliche Ferienwohnung, perfekt für einen Pärchenurlaub oder eine Auszeit mit euren Hunden, welche hier willkommen sind. Bei einem Aufenthalt auf Strandvejen 61, A 208 (1. Etage), nur 50 Meter vom Strand entfernt, könnt ihr vom Balkon aus den Panoramablick, das Rauschen der Nordsee sowie die salzige Meeresluft genießen. Urlaub an der Nordsee ? hier bekommt ihr eine Traumlage!

Klassisch und praktisch eingerichtet ? mit vielen Angeboten vor der Haustür

Da die Ferienwohnung zum Feriencenter Vesterhavet in Fanø Bad gehört, erhaltet ihr Zugang zu einer Reihe von Gemeinschaftsaktivitäten wie Sauna, Innenpool, Waschküche mit Trockner sowie einen Aktivitätsraum mit Tischtennis und Airhockey. Darüber hinaus gibt es einen Außenbereich mit einer Petanque-Bahn, Tischen und Bänken, Grillplätzen und einem solarbeheizten Außenpool.

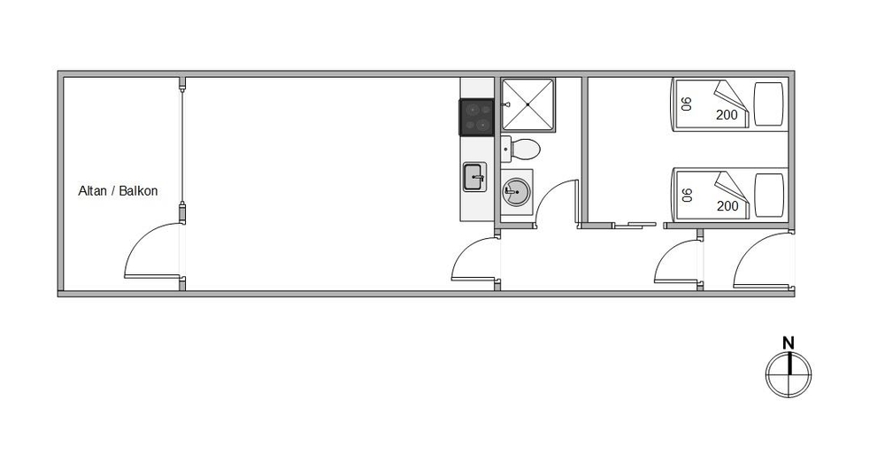
Die Ferienwohnung wurde 2018 teilweise renoviert und verfügt auf 44 m² über ein Wohnzimmer mit bequemen Möbeln, einer gut ausgestatteten Küche mit Mikrowelle und Geschirrspüler sowie einem gemütlichen Essbereich. Außerdem gibt es ein Badezimmer mit Fußbodenheizung und ein Schlafzimmer, welches mit 2 Einzelbetten ausgestattet ist.

50 Meter vom Strand entfernt ? Panoramablick auf die Nordsee

Die kleine und gemütliche Ferienwohnung in Strandvejen 61, A 208 liegt in Fanø Bad ? ein Ort mit vielen Aktivitätsmöglichkeiten im Ferienzentrum sowie in der näheren Umgebung. Von hier aus sind es 1600 Meter bis zu den nächsten Einkaufsmöglichkeiten und nur 50 Meter bis an den herrlich breiten Strand. Genießt bereits am Morgen den schönen Panoramablick direkt vom Balkon der Ferienwohnung, während ihr die erste Tasse eines frisch aufgebrühten Kaffees zubereitet. Freut euch bereits auf den Sonnenuntergang am Abend, welcher den Himmel in spektakuläre Farben taucht ? was für ein Ausblick!

Der breite Sandstrand eignet sich hervorragend für entspannte Strandspaziergänge, um Bernstein zu suchen, oder verschiedenste Windsportarten zu beobachten bzw. selbst auszuprobieren. In Fanø Bad gibt es Dänemarks ältesten Golfplatz mit einem 18-Loch-Links-Platz, Tennisplätze, Minigolf und nette Restaurants sowie gemütliche Strandcafés.

Nehmt euch ruhig die Zeit, die ganze Insel zu erkunden, sei es mit dem Auto oder ganz sportlich mit dem Fahrrad. Durch die verschiedenen Landschaften führen verschiedene Rad- und Wanderwege und jedes Gebiet hat seinen eigenen Reiz. Fanö ist in einer kurzen, 12-minütigen Fährüberfahrt zu erreichen, welche regelmäßig zwischen dem Festland von Esbjerg und Nordby auf Fanö pendelt.

Anmerkung*: Der Außenpool ist vom 1. Juli bis 1. September geöffnet.
Hinter Block B befindet sich eine Rampe für Rollstuhlfahrer und Menschen mit Gehbehinderung.

Ausstattung

  2 Personen
  1 Haustiere erlaubt
  1600 m Abstand zum Kaufmann
  50 m Abstand zum Strand
Geschirr-spüler
Nicht-Raucher

Weitere Ausstattung

Das Haus

  Wohnfläche: 44 m²
  Baujahr: 1974
  Renovierung: 2020
  Einkaufsmöglichkeiten: 1600 m
  Nordsee: 50 m
  Meerblick
  Personen: 2
  Schlafzimmer: 1
  Einzelbetten: 2
  Haustiere
  Geschirr-spüler

Zimmer

Küche:
  Kühlschrank
  Ofen
  Mikrowelle

Badezimmer:
  Badezimmer: 1

Unterhaltung

  Internet
  Deutsche Fernsehsender

Draussen

Bedingungen

Bei Ankunft kannst du die Schlüssel ab 15 Uhr in unserem Büro abholen. Abreise ist spätestens um 10 Uhr bzw. 9 Uhr wenn die Endreinigung von uns unternommen wird.

Auf Karte

Haus buchen
Wochenkalender 2026
06
EUR
364
07
EUR
374
08
EUR
364
09
10
11
12
EUR
364
13
14
15
16
17
18
19
20
21
22
EUR
464
23
24
25
EUR
464
26
EUR
464
27
EUR
634
28
EUR
824
29
EUR
864
30
31
32
EUR
904
33
EUR
864
34
EUR
744
35
EUR
634
36
EUR
464
37
EUR
464
38
39
40
EUR
414
41
42
EUR
464
43
EUR
524
44
EUR
464
45
EUR
364
46
EUR
364
47
EUR
364
48
EUR
364
49
EUR
364
50
EUR
364
51
EUR
364
52
EUR
634
53
EUR
824

Dauer

Die gewählte Periode: KW
-
Preis: Haus buchen »
Kontakt  Ruf mich an

Ähnliche Häuser

Nålevej 4
Fanø Bad
Preis ab 983 EUR
Mehr sehen
Kystvejen 19
Fanø Bad
Preis ab 984 EUR
Mehr sehen
Søndervænget 3
Rindby
Preis ab 1.054 EUR
Mehr sehen
Skovly 19
Fanø Bad
Preis ab 824 EUR
Mehr sehen