« Zurück

Strandnahe Nichtraucherwohnung mit freiem Zugang zum Gemeinschaftspool

Katalognr.: 50810

Nordvej 11- 10, Vejers

Nur einen Katzensprung von der brausenden Nordsee und dem lebhaften Ferienort Vejers entfernt, liegt diese gemütliche Ferienwohnung. Alle Bewohner, dieses 22 Wohnungen umfassenden Feriencenters haben freien Zugang zum Gemeinschaftspool. Also denkt auch in der kühleren Jahreszeit daran Eure Badesachen einzupacken.

Gemütliche Ferienwohnung mit freiem Zugang zu Gemeinschaftsaktivitäten       

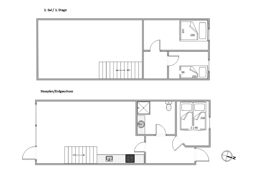
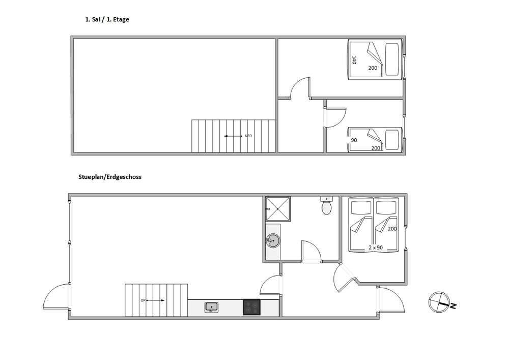
Die helle und gemütliche Ferienwohnung erstreckt sich über 2 Etagen, die durch eine im Wohnraum befindliche Treppe miteinander verbunden sind. Oben befinden sich 2 Schlafräume, das dritte Schlafzimmer ist unten, wo sich auch das Badezimmer und der Wohnraum befinden. Der gemütliche Wohnraum mit der integrierten Küchenzeile ist der Mittelpunkt der Ferienwohnung und lädt zu vielen schönen gemeinsamen Stunden ein. Die kleine Küchenzeile ist mit allem ausgestattet was Ihr zum Zubereiten leckerer Ferienmahlzeiten benötigt.

Vom Wohnraum aus habt Ihr Zugang zur schönen Sonnenterrasse die mit guten und bequemen Gartenmöbeln ausgestattet ist. Beim Sonnenbaden könnt Ihr die nahegelegene Nordsee rauschen hören und die schneeweissen Möwen am tiefblauen Himmel beobachten. Warme Sommertage könnt Ihr hier mit einem gemütlichen Grillabend ausklingen lassen.

Als Gäste des Feriencenters habt Ihr freien Zugang zu allen Gemeinschaftsaktivitäten wie Pool, Aktivitätsraum und Spielplatz. Also auch in der kühleren Jahreszeit solltet Ihr unbedingt Euer Badezeug einpacken. Bei den Kindern ist besonders der Spielplatz sehr beliebt, da hier schnell und unkompliziert neue Urlaubsbekannschaften geschlossen werden können.

Die Sauna sowie eine Waschmaschine kannst du gegen Zahlung einer Gebühr nutzen. Hier zählt das Prinzip ? wer zuerst vor Ort ist.

Schöne strandnahe Lage in Vejers      

Nach einem kurzen Spaziergang durch die Dünen erreicht Ihr den herrlichen weitläufigen Sandstrand. Ein Strandspaziergang ist zu jeder Jahreszeit und ungeachtet des Wetters ein faszinierendes Naturerlebnis für Gross und Klein. Im Sommer könnt Ihr baden, im Herbst weht der rauhe Westwind die Gischt bis hoch auf den Strand.

Nach einem schönen Strandspaziergang könnt Ihr im lebhaften Ferienort Vejers ein leckeres Softeis essen gehen. Die Geschäfte, die Restaurants und Gallerien laden zum Shoppen und Bummeln ein.

Keine Vermietung an Jugendgruppen!     

 

Ausstattung

  5 Personen
  1 Haustiere erlaubt
  200 m Abstand zum Kaufmann
  100 m Abstand zum Strand
   m Swimmingpool
Geschirr-spüler
Nicht-Raucher

Weitere Ausstattung

Das Haus

  Grundstück: 100 m²
  Wohnfläche: 62 m²
  Baujahr: 1992
  Einkaufsmöglichkeiten: 200 m
  Nordsee: 100 m
  Personen: 5
  Schlafzimmer: 3
  Einzelbetten: 1
  Doppelbetten: 2
  Haustiere
  Pool
  Geschirr-spüler

Zimmer

Küche:
  Kühlschrank
  Ofen
  Mikrowelle

Badezimmer:
  Badezimmer: 1

Unterhaltung

  Internet
  CD-Player
  DVD-Player
  Radio
  Deutsche Fernsehsender

Draussen

  Liegestühle
  Grill

Bedingungen

Bei Ankunft kannst du die Schlüssel ab 15 Uhr in unserem Büro abholen. Abreise ist spätestens um 10 Uhr bzw. 9 Uhr wenn die Endreinigung von uns unternommen wird.

Auf Karte

Haus buchen
Wochenkalender 2025
43
44
EUR
582
45
46
47
48
49
50
51
52

Dauer

Die gewählte Periode: KW
-
Preis: Haus buchen »
Kontakt  Ruf mich an

Ähnliche Häuser

Vejers Havvej 28
Vejers
Preis ab 1.152 EUR
Mehr sehen
Peders Vej 3
Vejers
Preis ab 1.322 EUR
Mehr sehen
Risvej 8
Vejers
Preis ab 962 EUR
Mehr sehen
Spurvevej 2
Vejers
Preis ab 1.122 EUR
Mehr sehen