« Zurück

Schönes Sommerhaus - eine wahre Perle - auf Dünengrund nur 400 m vom Meer entfernt liegend

Katalognr.: 50009

Ternevej 12, Vejers

Strandnahe Idylle ? das bietet euch dieses schöne Haus am Ternevej 12 in Vejers. Das in 2018 neu renovierte Haus liegt auf einem schönen Dünengrundstück, ganz in der Nähe von Einkaufsmöglichkeiten und dem Meer. Es bietet Platz sowohl für euch als Paar als auch für einen erholsamen Aufenthalt der kleinen Familie.

Moderne Einrichtung mit Wohlfühlgarantie

Dieses Haus wurde vollständig renoviert und bietet genau das, was ihr braucht, um einen schönen Urlaub zu verbringen. Das Haus ist modern und neu renoviert, mit Hinblick auf Komfort und Bequemlichkeit. In der offenen Küche gibt es selbstverständlich eine Spülmaschine, sowie im hellen Badezimmer Waschmaschine und Trockner. Genau richtig für die Familie mit Kindern, die nach einem abenteuerlichen Strandausflug mit Sand und Wasser Kontakt hatten, schnell Wäsche waschen und trocknen können.

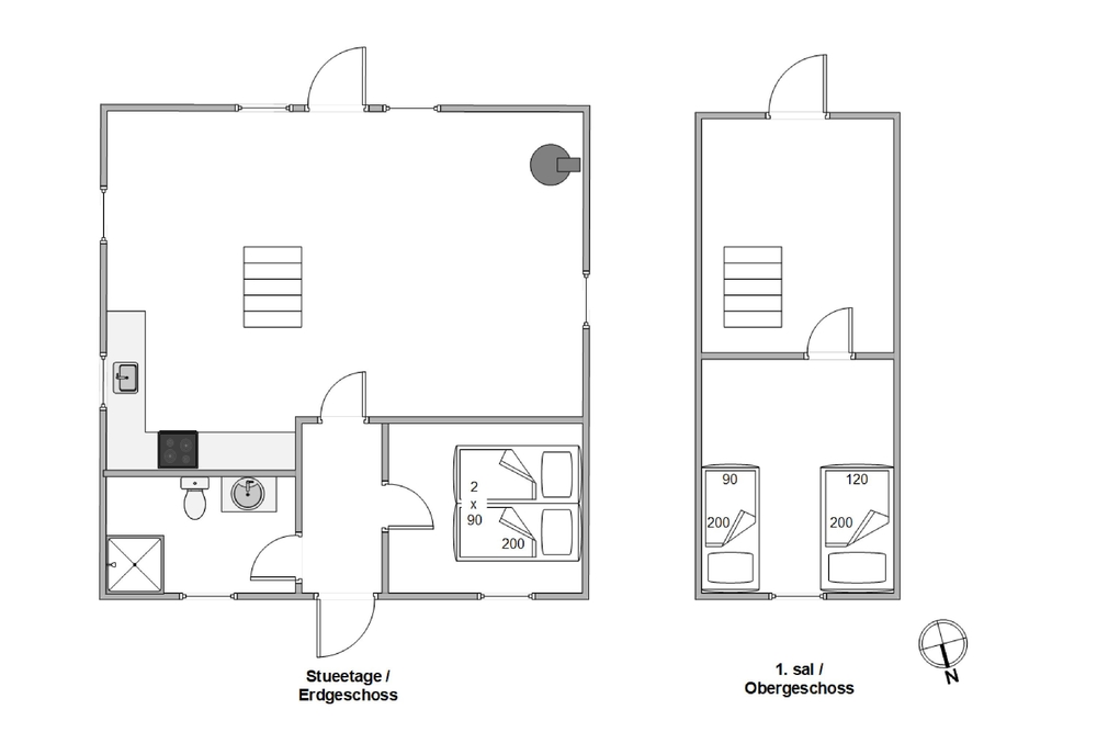
Im Erdgeschoss befindet sich eines der zwei Schlafzimmer und hier gibt es auch eine gemütliche TV-Lounge mit Holzofen. Aber wer an einem Frühlingstag oder einem regnerischen Herbsttag entspannen möchte ? dann ist der erste Stock der perfekte Ort. Hier kann man sich mit einem spannenden Buch oder Strickzeug zurückziehen ? oder einfach nur bei einer Tasse Tee sitzen, ein wenig träumen, entspannen und das Licht sowie die Aussicht genießen.

Geschützte Terrassen und viel Platz für die Kleinen

Wind und schlechtes Wetter ist kein Problem im Ternevej 12. Aufgrund der großen, geschlossenen und teilweise überdachten Terrasse findet sich immer ein geschütztes Plätzchen an der frischen Luft. Für Kinder gibt es sowohl Sandkasten und Schaukel, so dass diese sich nicht langweilen, wenn Mama und Papa auf den Liegestühlen ausruhen.

Großartige Lage ? nur einen Steinwurf von Vejers Strand entfernt

Frische Brötchen und was sonst noch fehlen sollte, kann gleich um die Ecke, nur 400 Meter vom Hause entfernt besorgt werden. Vejers Strand ist eine niedliche, kleine Stadt mit sowohl Lebensmittelgeschäft, Bäckerei, Bekleidungsgeschäft, Snack-Bar und einem Restaurant.

Ternevej 12 liegt günstig in der Nähe zum Strand, so dass man nur das Handtuch über die Schulter werfen und die Straße hinunter über die Dünen zum langen Sandstrand gehen braucht. Der Strand ist auch ideal für lange Spaziergänge, Drachensteigen und viele Sandburg-Gebäude mit den Kindern.

In und um Vejers gibt es viele Möglichkeiten, sich an der frischen Luft aufzuhalten ? z.B. auf Pilz- oder Hirsch-Safaris in den umliegenden Wäldern, Heiden und Plantagen.

Ausstattung

  4 Personen
   Haustiere nicht erlaubt
  400 m Abstand zum Kaufmann
  400 m Abstand zum Strand
Geschirr-spüler
Nicht-Raucher

Weitere Ausstattung

Das Haus

  Grundstück: 1585 m²
  Wohnfläche: 85 m²
  Baujahr: 1977
  Renovierung: 2018
  Einkaufsmöglichkeiten: 400 m
  Nordsee: 400 m
  Personen: 4
  Schlafzimmer: 2
  Einzelbetten: 2
  Doppelbetten: 1
  Kinderstühle: 1
  Holzofen
  Waschmaschine
  Geschirr-spüler
  Trockner

Zimmer

Küche:
  Kühlschrank
  Ofen

Badezimmer:
  Badezimmer: 1

Unterhaltung

  Radio
  Deutsche Fernsehsender

Draussen

  Liegestühle
  Grill

Bedingungen

Bei Ankunft kannst du die Schlüssel ab 15 Uhr in unserem Büro abholen. Abreise ist spätestens um 10 Uhr bzw. 9 Uhr wenn die Endreinigung von uns unternommen wird.

Auf Karte

Haus buchen
Wochenkalender 2026
06
EUR
684
07
EUR
724
08
EUR
684
09
EUR
684
10
EUR
684
11
12
13
EUR
824
14
EUR
1.024
15
16
17
EUR
724
18
EUR
824
19
EUR
824
20
21
22
23
24
25
EUR
924
26
27
28
29
30
31
32
EUR
1.764
33
EUR
1.594
34
35
36
EUR
924
37
EUR
924
38
EUR
824
39
EUR
824
40
EUR
824
41
EUR
824
42
EUR
924
43
EUR
1.024
44
EUR
924
45
EUR
684
46
EUR
684
47
48
49
50
51
52
EUR
1.174
53
EUR
1.594

Dauer

Die gewählte Periode: KW
-
Preis: Haus buchen »
Kontakt  Ruf mich an

Ähnliche Häuser

Aarrildsøvej 18
Vejers
Preis ab 2.084 EUR
Mehr sehen
Mågevej 8G st - lejl. 4
Vejers
Preis ab 314 EUR
Mehr sehen
Nordvej 37
Vejers
Preis ab 1.294 EUR
Mehr sehen
Kratvej 10
Vejers
Preis ab 1.124 EUR
Mehr sehen