« Zurück

Strandnahes Ferienhaus mit geschlossener Terrasse

Katalognr.: B2426

Kirstinevej 106, Bjerregård

Herzlich Willkommen im Kirstinevej 106, an der dänischen Westküste. Dieses gemütliche Ferienhaus ist perfekt geeignet für entspannte Ferien, mitten in der schönen Natur dieser Gegend. Nach nur 150 Metern erreicht ihr bereits den breiten Sandstrand der Nordseeküste. In diesem Ferienhaus sind auch eure beiden Vierbeiner Willkommen. Somit könnt ihr euch auf gemeinsame Spaziergänge am Strand und in der Heidelandschaft freuen.

Gemütlicher Wohnbereich und Wintergarten laden zum Verweilen ein

Im offenen Wohnbereich findet ihr ein gemütliches Sofa und Sessel, die zu gemeinsamen Stunden vorm prasselnden Kaminfeuer einladen. Der gemauerte Kamin ist ein echter Blickfang. Zusätzlich könnt ihr das Ferienhaus aber auch mit der energiesparenden Wärmepumpe heizen. Am Abend könnt ihr gemeinsam DVDs schauen oder am großzügigen Essplatz einen Spieleabend veranstalten.

Von hier aus gelangt ihr auch in den, mit Sofa und Stühlen ausgestatteten, Wintergarten. Genießt einen schönen Ausblick auf die euch umgebende Dünenlandschaft, z. B. bei einem guten Glas Wein oder macht es euch mit einem spannenden Buch bequem. Angrenzend an den Wohnbereich findet ihr die offene Küche. Diese ist gut ausgestattet und bietet alles, was es zur Zubereitung leckerer Mahlzeiten benötigt.

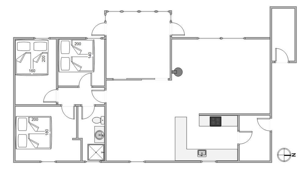
Zusätzlich steht euch auch eine 100 l Gefriermöglichkeit zur Verfügung, also genügend Platz für den einen oder anderen frisch gefangenen Fisch. Das praktische Badezimmer verfügt über eine Dusche und Waschmaschine, so dass ihr zwischendurch auch mal Wäsche waschen könnt. In den 2 Schlafzimmern findet ihr bequeme Doppelbetten, in denen ihr euch sicherlich gut erholen werdet.

Geschlossene Terrasse mit toller Aussicht

Durch den Wintergarten gelangt ihr auf die großzügige Terrasse. Hier könnt ihr Hunde und kleine Kinder auch mal frei laufen lassen, da diese komplett umschlossen ist.

Gemütliche Gartenmöbel stehen euch für ein Frühstück im Freien zur Verfügung. Auch ein Gasgrill ermöglicht die Zubereitung eines leckeren BBQs. Hier könnt ihr an der frischen Luft entspannen und euch an der schönen Aussicht erfreuen. Auf einer der euch umgebenen Dünen findet ihr auch eine kleine Sitzbank. Von hier aus könnt ihr die Umgebung überblicken und am Abend den Sonnenuntergang genießen.

Umgeben von einzigartiger Natur der dänischen Westküste

Hier im beschaulichen Feriengebiet Bjerregård seid ihr umgeben von traumhafter Dünen- und Heidelandschaft. Das Highlight ist der breite Sandstrand, der nur einen Steinwurf von eurem Ferienhaus entfernt ist. Hier könnt ihr euch in der Nordsee erfrischen, Sandburgen bauen und lange Spaziergänge machen.

Schöne Fahrradrouten findet ihr in der unmittelbaren Umgebung. Beispielsweise entlang des malerischen Ringkøbing Fjords. Auch hier bieten sich verschiedene Wassersportarten an. Natürlich könnt ihr hier auch Angeln oder an verschiedensten Angelteichen in der Umgebung. Wenn ihr einkaufen wollt, so steht euch der Kaufmann im Feriengebiet Bjerregård zur Verfügung. Hier findet ihr frische Brötchen, Kuchen und alles für einen gemeinsamen Grillabend.

Ausstattung

  5 Personen
  1 Haustiere erlaubt
  1000 m Abstand zum Kaufmann
  150 m Abstand zum Strand
Geschirr-spüler
Nicht-Raucher

Weitere Ausstattung

Das Haus

  Grundstück: 1207 m²
  Wohnfläche: 93 m²
  Baujahr: 1973
  Einkaufsmöglichkeiten: 1000 m
  Nordsee: 150 m
  Personen: 5
  Schlafzimmer: 3
  Doppelbetten: 3
  Kinderstühle: 1
  Haustiere
  Holzofen
  Waschmaschine
  Geschirr-spüler

Zimmer

Küche:
  Kühlschrank
  Ofen
  Mikrowelle

Badezimmer:
  Badezimmer: 1

Unterhaltung

  Internet
  CD-Player
  DVD-Player
  Radio
  Deutsche Fernsehsender

Draussen

  Liegestühle
  Grill

Bedingungen

Bei Ankunft kannst du die Schlüssel ab 15 Uhr in unserem Büro abholen. Abreise ist spätestens um 10 Uhr bzw. 9 Uhr wenn die Endreinigung von uns unternommen wird.

Auf Karte

Haus buchen
Wochenkalender 2026
08
EUR
474
09
10
11
12
13
14
15
16
17
18
19
20
21
22
23
24
25
26
27
28
29
30
31
32
33
34
35
36
37
38
39
40
41
42
43
EUR
774
44
45
46
EUR
474
47
48
49
EUR
474
50
EUR
474
51
EUR
474
52
EUR
894
53

Dauer

Die gewählte Periode: KW
-
Preis: Haus buchen »
Kontakt  Ruf mich an

Ähnliche Häuser

Tingodden 280
Årgab
Preis ab 1.044 EUR
Mehr sehen
Arvidvej 308
Bjerregård
Preis ab 844 EUR
Mehr sehen
Fyrmarken 203
Nr. Lyngvig
Preis ab 1.064 EUR
Mehr sehen
Søndergade 84
Hvide Sande
Preis ab 1.064 EUR
Mehr sehen