« Zurück

Ferienhaus mit Pool, nur 350 m vom Meer entfernt

Katalognr.: E4482

Tingodden 280, Årgab

Das klassische Sommerhus in Tingodden 280 wurde im Jahr 2018 renoviert und bietet einige Highlights. Auf den 170 qm finden bis zu 10 Personen ausreichend Platz für einen unvergesslichen Urlaub.

Auch euer Hund darf euch in den Urlaub begleiten und sich auf schöne Tage zwischen Ringkøbing Fjord und dänischer Westküste freuen. Dank der eigenen Wellnessabteilung könnt ihr euch nach einem aufregenden Tag am Meer entspannen und die Seele baumeln lassen.

Charmantes Sommerhaus bietet viele tolle Extras

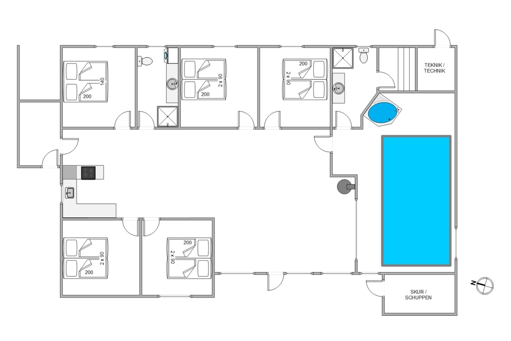
In diesem typisch skandinavischen Ferienhaus erwartet euch ein großzügiger Wohn-Essbereich mit offener Küche. Der gemütlich gestaltete Wohnbereich lädt zu Spieleabenden oder Entspannung bei einem guten Film ein. Oder genießt ein schönes Glas Wein vor dem prasselnden Kaminfeuer. Auch die Fußbodenheizung sorgt für eine angenehme Wärme.

Durch die offene Gestaltung der Küche, bietet sich diese optimal für einen ausgiebigen Kochabend mit der Familie oder Freunden an. Angler werden sich besonders über die 90 l Gefriermöglichkeit freuen. Die zwei Badezimmer sorgen für eine gute Aufteilungsmöglichkeit in den Morgen- und Abendstunden. Natürlich gibt es auch hier eine Fußbodenheizung und somit keine kalten Füße mehr nach dem Duschen.

Das besondere Highlight dieses hyggeligen Sommerhauses ist natürlich der 19 qm große Pool mit angrenzendem Whirlpool. Genießt entspannte Stunden im Wasser oder in der Sauna.

Entspannte Stunden auf der Terrasse und Platz für Outdorraktivitäten

Auf dem großzügigem Naturgrundstück mit Rasenfläche könnt ihr euch richtig austoben. Eure Kinder finden sicherlich gefallen an der Schaukel und dem Sandkasten, während ihr euch bei einem Kaffee auf der geschützten und teilweise überdachten Terrasse entspannen könnt. Abends könnt ihr bei einem schönen Grillabend den Tag ausklingen lassen.

Zwischen Ringkøbing Fjord und dänischer Westküste gibt es viel zu entdecken

Im Feriengebiet Årgab und nur 350 m bis zum Meer der dänischen Westküste gelegen, hat euer Ferienhaus eine ideale Ausgangslage für Ausflüge in die umliegende Natur oder in das nahe gelegene Hvide Sande. Ob Angeln im ?Klittens Put an Take? oder einen Ausflug in das spannende Museum Abelines Gård, hier gibt es viel zu sehen und zu erleben.

Auch der Ringkøbing Fjord, mit seinen vielen Wassersportmöglichkeiten, ist nicht weit entfernt. Diese Gegend bietet alles für einen unvergesslichen Urlaub zwischen Nordsee und Fjord.

Ausstattung

  10 Personen
  1 Haustiere erlaubt
  4200 m Abstand zum Kaufmann
  350 m Abstand zum Strand
  19 m Swimmingpool
Sauna
Geschirr-spüler
Nicht-Raucher

Weitere Ausstattung

Das Haus

  Grundstück: 3199 m²
  Wohnfläche: 170 m²
  Baujahr: 1995
  Renovierung: 2018
  Einkaufsmöglichkeiten: 4200 m
  Nordsee: 350 m
  Personen: 10
  Schlafzimmer: 5
  Einzelbetten: 8
  Doppelbetten: 1
  Haustiere
  Holzofen
  Pool
  Waschmaschine
  Geschirr-spüler
  Trockner

Zimmer

Küche:
  Kühlschrank
  Ofen
  Mikrowelle

Badezimmer:
  Badezimmer: 2
  Sauna

Unterhaltung

  Internet
  DVD-Player
  Radio
  Deutsche Fernsehsender

Draussen

  Liegestühle
  Grill

Bedingungen

Bei Ankunft kannst du die Schlüssel ab 15 Uhr in unserem Büro abholen. Abreise ist spätestens um 10 Uhr bzw. 9 Uhr wenn die Endreinigung von uns unternommen wird.

Auf Karte

Haus buchen
Wochenkalender 2026
04
EUR
1.044
05
EUR
1.044
06
EUR
1.044
07
08
EUR
1.044
09
10
11
12
13
14
15
16
EUR
1.114
17
EUR
1.114
18
EUR
1.214
19
EUR
1.214
20
21
22
23
24
EUR
1.214
25
EUR
1.364
26
EUR
1.364
27
28
29
30
31
32
EUR
2.474
33
EUR
2.364
34
35
36
EUR
1.364
37
EUR
1.364
38
EUR
1.214
39
EUR
1.214
40
EUR
1.214
41
EUR
1.214
42
43
44
EUR
1.364
45
EUR
1.044
46
EUR
1.044
47
EUR
1.044
48
EUR
1.044
49
EUR
1.044
50
EUR
1.044
51
EUR
1.044
52
EUR
1.744
53

Dauer

Die gewählte Periode: KW
-
Preis: Haus buchen »
Kontakt  Ruf mich an

Ähnliche Häuser

Langsand 121 1. sal
Hvide Sande
Preis ab 334 EUR
Mehr sehen
Kr Madsens Vej 21
Haurvig
Preis ab 394 EUR
Mehr sehen
Fjordbjerrevej 19
Haurvig
Preis ab 334 EUR
Mehr sehen
Bilbergsvej 49
Bjerregård
Preis ab 384 EUR
Mehr sehen