« Zurück

Sommerhaus in einzigartiger Natur in Henneby

Katalognr.: 41815

Hennebysvej 29, Henneby

Dieses komfortable Sommerhaus mit schönen skandinavische Details geglegen am Hennebysvej 29 in Henneby bietet den perfekten Rückzugsort für deine Familie und Freunde. Mit seinen modernen Annehmlichkeiten und seiner gemütlichen Atmosphäre ist dieses Sommerhaus der ideale Ort für bis zu 6 Personen ? und bis zu 2 Haustiere ? um einen unvergesslichen Urlaub zu verbringen.

Gemütliches Ambiente

Dieses schöne Sommerhaus in Henneby besticht durch seine helle und einladende Einrichtung. Im Wohnbereich findet Ihr einen Kaminofen, der für wohlige Wärme und eine behagliche Atmosphäre sorgt. Die vorhandene Wärmepumpe sorgt zudem dafür, dass ihr es immer angenehm warm habt ? egal zu welcher Jahreszeit.

Der offene Wohn- und Essbereich ist mit einer voll ausgestatteten Küche verbunden, die alles bietet, was ihr für gemeinsame Mahlzeiten benötigt, einschließlich einer Spülmaschine.

Vom Wohnbereich aus gelangt ihr in den Wintergarten und weiter auf 2 Terrassen, von denen eine überdacht ist: von hier aus könnt ihr die einzigartige Natur der herumliegenden Gegend hautnah betrachten.

Entspannung ? Komfort

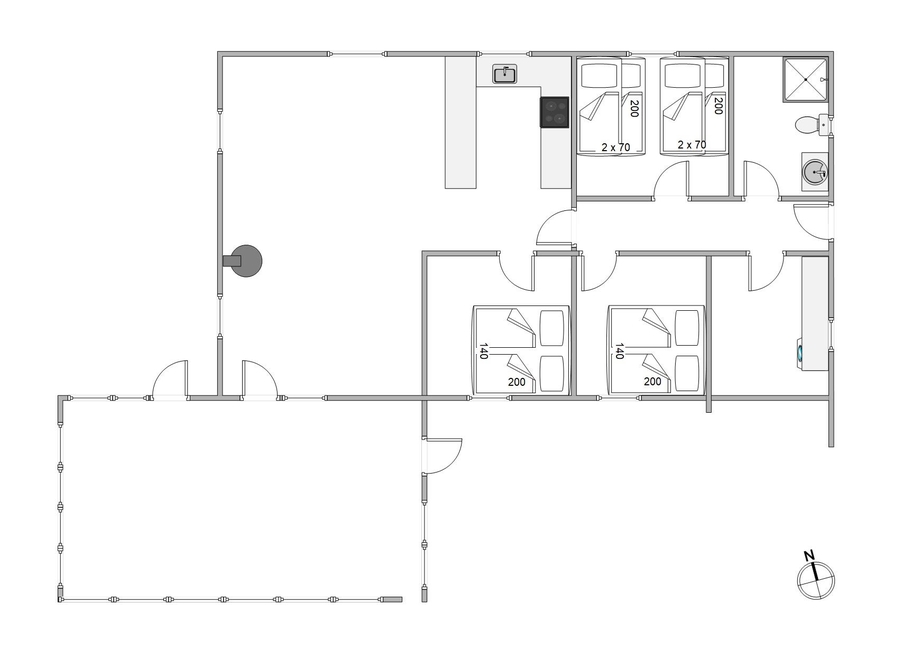
Insgesamt bietet dieses Sommerhaus 3 gemütliche Schlafzimmer, wovon 2 mit komfortablen Doppeltbetten ausgestattet sind ? für erholsame Nächte. Eins der Schlafzimmer enthält 2 Etagenbetten, und ist damit die perfekte Lage für eure Kinder.

Das praktische Hauswirtschaftszimmer enthält eine Waschmaschine und einen Trockner, so könnt ihr auch während eures Aufenthalts bequem Wäsche waschen. Das moderne Badezimmer verfügt über eine Fußbodenheizung, die für zusätzlichen Komfort sorgt.

Garten für Spiel und Spaß

Gelegen auf einem großzügigen 1856 m² Grundstück bietet dieses schöne Sommerhaus euch viel Platz zum Entspannen und Spielen. Das Rasengrundstück ist ideal für Kinder, die sich auf der Schaukel oder im Sandkasten austoben möchten. Genieße aber auch gesellige Grillabende mit den Gartenmöbeln unter der überdachten Terrasse, während eure Hunde sicher im Garten spielen können!

Perfekte Lage für Aktivitäten

Dieses Sommerhaus befindet sich in Henneby ? 3 Km vom populärer Badeort Henne Strand entfernt. Henne Strand liegt direkt an der schönen Nordsee, und es gibt schöne Geschäfte wie auch viele Restaurants und Cafés, die für jeden Geschmack etwas anbieten.

Die nahe gelegene Plantage Blåbjerg bietet viele Naturerlebnisse, und damit die Möglichkeit zum Wandern, Radfahren und Mountainbiken. Auch könnt ihr die aufregende Natur vom Pferderücken aus betrachten: Die örtliche Reitschule bietet sowohl geführte Touren als auch Reitunterricht an. Auf dem örtlichen Golfplatz ist es möglich, den Golfschläger zu benutzen.

Euer El Auto könnt Ihr mit Hilfe des CEE-Kombisteckers aufladen, relevantes Kabel ist mitzubringen.

Ausstattung

  6 Personen
  1 Haustiere erlaubt
  3000 m Abstand zum Kaufmann
  3000 m Abstand zum Strand
Geschirr-spüler
Nicht-Raucher

Weitere Ausstattung

Das Haus

  Grundstück: 1856 m²
  Wohnfläche: 108 m²
  Baujahr: 1979
  Renovierung: 2018
  Einkaufsmöglichkeiten: 3000 m
  Nordsee: 3000 m
  Personen: 6
  Schlafzimmer: 3
  Doppelbetten: 2
  Etagenbett: 1
  Haustiere
  Holzofen
  Waschmaschine
  Geschirr-spüler
  Trockner

Zimmer

Küche:
  Kühlschrank
  Ofen
  Mikrowelle

Badezimmer:
  Badezimmer: 1

Unterhaltung

  Radio
  Deutsche Fernsehsender

Draussen

  Liegestühle
  Grill

Bedingungen

Bei Ankunft kannst du die Schlüssel ab 15 Uhr in unserem Büro abholen. Abreise ist spätestens um 10 Uhr bzw. 9 Uhr wenn die Endreinigung von uns unternommen wird.

Auf Karte

Haus buchen
Wochenkalender 2026
06
EUR
354
07
08
09
10
11
12
13
EUR
444
14
15
EUR
564
16
17
18
EUR
444
19
EUR
444
20
EUR
504
21
22
23
24
25
26
27
28
29
30
31
32
EUR
1.064
33
EUR
1.014
34
35
36
37
38
39
40
EUR
444
41
EUR
444
42
43
44
EUR
504
45
46
47
48
49
50
51
52
EUR
684
53
EUR
1.014

Dauer

Die gewählte Periode: KW
-
Preis: Haus buchen »
Kontakt  Ruf mich an

Ähnliche Häuser

Urfuglevej 22
Henne Strand
Preis ab 994 EUR
Mehr sehen
Rævestien 23
Henneby
Preis ab 984 EUR
Mehr sehen
Strandgodsvej 15
Henneby
Preis ab 1.254 EUR
Mehr sehen
Strandgodsvej 17
Henneby
Preis ab 1.214 EUR
Mehr sehen