« Zurück

Luxusferienhaus mit Aktivitätsraum und Whirlpool

Katalognr.: 40953

Urfuglevej 22, Henne Strand

Dieses herrliche Luxusferienhaus im Urfuglevej 22 in Henne Strand, bietet Platz für 6 Personen. Es liegt auf einem schönen ungestörten Naturgrundstück nicht weit vom lebhaften Ferienort Henne Strand und dem fantastischen Nordseestrand entfernt. Hier könnt Ihr mit der ganzen Familie erholsame und unvergessliche Ferien verbringen.

Aktivität und Entspannung unter einem Dach 

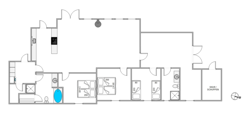
Die Einrichtung dieses tollen Luxushauses ist modern, hochwertig und einladend. Es gibt drei geräumige Schlafzimmer, eines davon mit Fernseher. Mittelpunkt des Hauses ist der grosse lichtdurchflutete Wohnraum mit offener Küche. Hier können alle Bewohner des Hauses gemeinsam viele schöne Stunden verbringen. Die moderne Küche ist mit allem ausgestattet, was man zum Zubereiten leckerer Mahlzeiten benötigt. An kühleren Tagen sorgt der Kaminofen für wohlige Wärme.

Moderne Elektrogeräte wie, Spülmaschine, Waschmaschine und Trockner sind in diesem Haus eine Selbstverständlichkeit. Natürlich steht Euch auch kostenloses W-LAN zur Verfügung.

Es gibt 2 Badezimmer, von denen das eine mit Whirlpool und Sauna ausgestattet ist. Hier könnt Ihr Euch nach einem langen Tag an der frischen Luft entspannen und verwöhnen.

Für die Aktiveren unter Euch gibt es einen Aktivitätsraum mit Billardtisch und Kicker. Hier könnt Ihr Euch das ein odere andere Match liefern. Für mitgebrachte Spielekonsolen steht ein Flachbildschirm zur Verfügung.

Schöne Terrasse mit Aussendusche

Die grosse schöne Terrasse ist mit hochwertigen Gartenmöbeln und bequemen Liegestühlen ausgestattet. Hier könnt Ihr Euch sonnen oder gemeinsam grillen. Die ganz kleinen Gäste kommen auch nicht zu kurz, für sie gibt es Schaukeln und einen Sandkasten zum Buddeln.

Für eventuell mitgebrachte Fahrräder steht ein abschliessbarer Schuppen und ein Fahrradwaschplatz zur Verfügung.

Nach einem Tag am Nordseestrand könnt Ihr Euch unter der Aussendusche* den Sand abspülen oder Euch an besonders heissen Sommertagen einfach einmal abkühlen.

Henne Strand eine Perle an der Westküste 

Nach nur wenigen Gehminuten erreicht Ihr den lebhaften Ferienort Henne Strand. Hier herrscht fast das ganze Jahr über ein reges Treiben. Die vielen Geschäfte, die verschiedenen Restaurants und die gemütlichen Strassencafés laden Gross und Klein zum Bummeln ein.

Ebenfalls fussläufig zu erreichen ist der fantastische, kinderfreundliche, feinsandige Badestrand. Ein wahres Eldorado für Wasserrattten, Sonnenanbeter, Muschelsucher und Naturliebhaber.

* Die Außendusche ist vom 01. April bis 31. Oktober nutzbar.

Ausstattung

  6 Personen
  1 Haustiere erlaubt
  500 m Abstand zum Kaufmann
  800 m Abstand zum Strand
Geschirr-spüler
Nicht-Raucher

Weitere Ausstattung

Das Haus

  Grundstück: 1800 m²
  Wohnfläche: 141 m²
  Baujahr: 2014
  Einkaufsmöglichkeiten: 500 m
  Nordsee: 800 m
  Personen: 6
  Schlafzimmer: 3
  Doppelbetten: 3
  Kinderstühle: 1
  Kinderbetten: 1
  Haustiere
  Holzofen
  Waschmaschine
  Geschirr-spüler
  Trockner

Zimmer

Küche:
  Kühlschrank
  Ofen
  Mikrowelle

Badezimmer:
  Badezimmer: 2

Unterhaltung

  Internet
  CD-Player
  DVD-Player
  Radio
  Deutsche Fernsehsender

Draussen

  Liegestühle
  Grill

Bedingungen

Bei Ankunft kannst du die Schlüssel ab 15 Uhr in unserem Büro abholen. Abreise ist spätestens um 10 Uhr bzw. 9 Uhr wenn die Endreinigung von uns unternommen wird.

Auf Karte

Haus buchen
Wochenkalender 2026
12
EUR
994
13
EUR
1.204
14
15
16
EUR
994
17
EUR
994
18
EUR
1.104
19
20
21
22
23
24
25
26
27
EUR
1.414
28
29
30
31
32
33
34
35
36
37
38
39
EUR
1.204
40
EUR
1.204
41
EUR
1.204
42
43
44
45
46
47
48
49
50
51
52
53

Dauer

Die gewählte Periode: KW
-
Preis: Haus buchen »
Kontakt  Ruf mich an

Ähnliche Häuser

Fasanvej 10
Henne Strand
Preis ab 1.514 EUR
Mehr sehen
Lyngbovej 5
Henne Strand
Preis ab 1.664 EUR
Mehr sehen
Falkevej 23
Henne Strand
Preis ab 1.154 EUR
Mehr sehen
Fasanvej 14
Henne Strand
Preis ab 784 EUR
Mehr sehen