« Zurück

Modernes Ferienhaus mit Top Außenbereich

Katalognr.: 72120

Toppen 10, Rindby

Herzlich willkommen auf der Insel Fanø in Toppen 10, im Feriengebiet Rindby. Hier erwartet euch ein helles und geräumiges Ferienhaus mit viel Liebe zum Detail. Im großflächigen Badezimmer befindet sich eine Badewanne, die dazu beitragen wird, dass der Urlaub in diesem einzigartigen Sommerhaus für lange Zeit in Erinnerung bleibt. Ihr findet in diesem exklusiven Ferienhaus viele Annehmlichkeiten wie z. B. einen Kamin, eine Wärmepumpe, Waschmaschine und Trockner. Unvergleichlich ist der gemütlich Wintergarten, der mit einer Loungeecke eingerichtet ist. Von hier aus habt ihr einen fantastischen Blick in die Umgebung. Wie praktisch, hier ist die Endreinigung inklusive.

Helles, attraktives Ferienhaus mit viel Platz

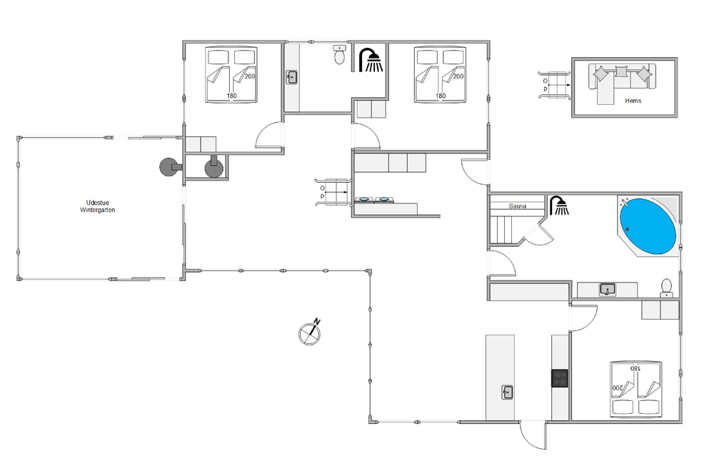
Das Ferienhaus besticht nicht nur durch die einmalige Lage, sondern auch durch die lichtdurchfluteten Räume und die außergewöhnliche Ausstattung und Design. 6 Personen und ein Hund können hier einen Urlaub in schöner Umgebung genießen. Das 200 m2 große Ferienhaus mit der direkt an den offenen Wohnbereich angrenzenden Küche, wird sicherlich der Mittelpunkt eures Urlaubes sein und lädt dazu ein, unvergessliche Tage zusammen zu verbringen.

Die großen Fenster lassen viel Licht herein, und der Blick auf die Dünen sorgt für Ruhe und Entspannung. In der gut ausgestatteten Küche bleiben keine Wünsche offen. Der Wintergarten verlängert die Sommermonate und ist mit mehreren gemütlichen Sitzecken ausgestattet, wie z. B. der großen Lounge-Ecke. Ein absolut atemberaubender Raum mit dem schönsten Panoramablick.

Die Betten sind auf drei Schlafzimmer und einem Dachboden verteilt. Der Dachboden kann über eine Holzleiter im Wohnzimmer erreicht werden. Die Schlaffzimmer sind alle geräumig und haben teils Einbauschränke, in denen ihr euer Gepäck verstauen könnt. Die beiden im Ferienhaus befindlichen Badezimmer verfügen über eine Fußbodenheizung. Das Hauptbadezimmer hat noch eine Badewanne und eine Sauna, ideal nach einem langen Tag am Strand.

Traumhafte Terrassen mit einzigartiger Ausstattung

Vom Wohnzimmer aus gibt es mehrere Ausgänge auf die schöne, nach Süden ausgerichtete Holzterrasse. Die Terrasse ist in mehrere gemütlichen Zonen unterteilt, von denen aus ihr den dänischen Sommer und die fantastische Aussicht auf die Dünen genießen könnt. Einzigartig ist, dass ein Teil der Terrasse versenkt ist, so dass ihr windgeschützt sitzen könnt, während der überdachte Bereich perfekt für die warmen Sommerabende ist. Nach einem erholsamen Tag am Strand könnt ihr direkt auf der Terrasse den Sand abspülen, da eine Außendusche vorhanden ist. Diese könnt ihr von April bis November nutzen.

Am Abend lädt die wunderschöne Terrasse dazu ein, gemeinsam zu grillen und sich auszuruhen. Sollte der dänische Sommer nicht mitspielen, könnt ihr in den großen Wintergarten ausweichen.

Urlaub auf der Insel Fanø

Nach einer 12-minütigen Fährfahrt erreicht man die Insel Fanø. Schon beim Verlassen der Fähre merkt ihr, dass die Uhren hier anders ticken. Hier auf der Insel überwiegen die Natur, Ruhe und Gelassenheit. 15 km Strand, Seehunde, Heide und Waldgebiete, Naturspielplatz und die gemütlichen Dörfer Nordby und Sønderho. Hier gibt es so viele Dinge zu sehen und auszukundschaften.

Ausstattung

  6 Personen
  1 Haustiere erlaubt
  600 m Abstand zum Kaufmann
  350 m Abstand zum Strand
Sauna
Geschirr-spüler
Nicht-Raucher

Weitere Ausstattung

Das Haus

  Grundstück: 1800 m²
  Wohnfläche: 200 m²
  Baujahr: 2012
  Einkaufsmöglichkeiten: 600 m
  Nordsee: 350 m
  Meerblick
  Personen: 6
  Schlafzimmer: 3
  Doppelbetten: 3
  Haustiere
  Holzofen
  Waschmaschine
  Geschirr-spüler
  Trockner

Zimmer

Küche:
  Kühlschrank
  Ofen
  Mikrowelle

Badezimmer:
  Badezimmer: 2
  Sauna

Unterhaltung

  Internet
  DVD-Player
  Radio
  Deutsche Fernsehsender

Draussen

  Liegestühle
  Grill

Bedingungen

Bei Ankunft kannst du die Schlüssel ab 15 Uhr in unserem Büro abholen. Abreise ist spätestens um 10 Uhr bzw. 9 Uhr wenn die Endreinigung von uns unternommen wird.

Auf Karte

Haus buchen
Wochenkalender 2026
11
12
EUR
1.254
13
14
15
16
EUR
1.404
17
18
19
20
21
22
23
24
25
26
27
EUR
2.394
28
EUR
3.114
29
EUR
3.264
30
31
32
33
34
35
36
37
38
39
40
41
42
EUR
1.764
43
44
45
EUR
1.254
46
47
48
EUR
1.254
49
EUR
1.254
50
EUR
1.254
51
EUR
1.254
52
EUR
2.394
53

Dauer

Die gewählte Periode: KW
-
Preis: Haus buchen »
Kontakt  Ruf mich an

Ähnliche Häuser

Hympelvej 51
Rindby
Preis ab 544 EUR
Mehr sehen
Nonboevej 16
Fanø Bad
Preis ab 484 EUR
Mehr sehen
Strandgårdsvej 39B
Rindby
Preis ab 564 EUR
Mehr sehen
Hedemarken 11
Rindby
Preis ab 434 EUR
Mehr sehen