« Zurück

Modernes Ferien- Stadthaus an der dänischen Westküste

Katalognr.: F4031

Stormgade 36, Hvide Sande

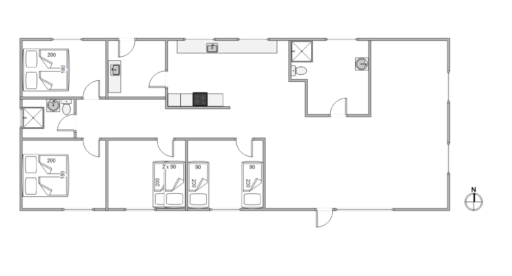
Sucht ihr Stadturlaub in schöner natürlicher Umgebung, dann ist das Ferienhaus auf Stormgade 36 in Hvide Sande die perfekte Möglichkeit. Das Ferienhaus, welches im Jahr 2021 renoviert wurde, bietet mit seinen 136 m² und 4 Schlafzimmern Platz für bis zu 8 Personen.
Zur dänischen Westküste mit seinen kilometerlangen Sandstränden und die zahlreichen Einkaufsmöglichkeiten liegen direkt um die Ecke. 

Großer Eingangsbereich und offene Küche

Sobald ihr in das Ferienhaus tretet, kommt ihr in den großen Eingangsbereich, der sowohl ausreichend Platz für Schuhe und Jacken bietet. Von hier habt ihr Zugang zur großen offenen Küche, die sowohl mit Geschirrspüler, Mikrowelle und Induktionsherd ausgestattet ist.
Die täglichen Mahlzeiten können hier spielend zubereitet werden, wenn ihr nicht eines der lokalen Restaurants besucht, die im Gehabstand vom Ferienhaus entfernt liegen.

Großer moderner Wohnraum

Das Ess- und Wohnzimmer liegt in offener Verbindung nahe zur Küche. Der smarte Kamineinsatz sorgt für die Gemütlichkeit in den kühleren Monaten, während ihr euch zu einem Film in der großen Sitzecke entspannt, ein Buch lest oder die Aktivitäten des nächsten Tages plant. 

2 Badezimmer mit Fußbodenheizung

In dem modernen Ferienhaus findet ihr 2 schöne Badezimmer, die beide mit Fußbodenheizung ausgestattet sind, somit bilden sich weder morgens noch abends lange Schlangen zum Bad. 

Herrliches Rasengrundstück und südgewendete Terrasse

Zum Sommerhaus auf Stormgade 36 gehört ein schönes Rasenstück, das zu gemeinsamen Spielen mit den Kindern einlädt. Aus dem Wohnraum habt ihr direkten Zugang zur südgewendeten Terrasse, wo ihr die Sonne genießen könnt, während die Kinder sich im Sandkasten oder dem Spielhaus vergnügen.
Auch abends könnt ihr beim Grillen viele schöne Stunden draußen verbringen. 

Hvide Sande ? zwischen Fjord und Meer

Die charmante Fischerstadt Hvide Sande ist für viele etwas ganz Spezielles. Die Stadt bietet viele Geschäfte zum Einkaufen, Cafés und Restaurants für jeden Geschmack. Auch könnt ihr das bunte Treiben der Schiffe im Hafen beobachten und die Seele baumeln lassen.

Auch der kilometerlange Sandstrand der Westküste geht bis zur Stadt und bietet Möglichkeit für viele schöne Spaziergänge. Schlägt euer Herz für den Wassersport, ist die Fjordseite sehr beliebt und bietet zahlreiche Möglichkeiten hierfür.

Ausstattung

  8 Personen
   Haustiere nicht erlaubt
  300 m Abstand zum Kaufmann
  200 m Abstand zum Strand
Geschirr-spüler
Nicht-Raucher

Weitere Ausstattung

Das Haus

  Grundstück: 560 m²
  Wohnfläche: 136 m²
  Baujahr: 1969
  Renovierung: 2021
  Einkaufsmöglichkeiten: 300 m
  Nordsee: 200 m
  Personen: 8
  Schlafzimmer: 4
  Einzelbetten: 2
  Doppelbetten: 2
  Etagenbett: 1
  Kinderbetten: 1
  Holzofen
  Waschmaschine
  Geschirr-spüler
  Trockner

Zimmer

Küche:
  Kühlschrank
  Ofen
  Mikrowelle

Badezimmer:
  Badezimmer: 2

Unterhaltung

  Internet
  Deutsche Fernsehsender

Draussen

  Liegestühle

Bedingungen

Bei Ankunft kannst du die Schlüssel ab 15 Uhr in unserem Büro abholen. Abreise ist spätestens um 10 Uhr bzw. 9 Uhr wenn die Endreinigung von uns unternommen wird.

Auf Karte

Haus buchen
Wochenkalender 2026
11
EUR
594
12
EUR
594
13
EUR
744
14
15
16
17
18
19
20
21
22
23
24
25
26
27
28
29
30
31
32
EUR
1.704
33
34
35
36
37
38
39
40
41
EUR
744
42
43
44
45
46
47
48
EUR
594
49
EUR
594
50
EUR
594
51
EUR
594
52
EUR
1.094
53
EUR
1.564

Dauer

Die gewählte Periode: KW
-
Preis: Haus buchen »
Kontakt  Ruf mich an

Ähnliche Häuser

Søholmvej 18
Årgab
Preis ab 1.519 EUR
Mehr sehen
Riskrogvej 6
Haurvig
Preis ab 1.384 EUR
Mehr sehen
Bjerregårdsvej 424
Bjerregård
Preis ab 1.794 EUR
Mehr sehen
Kr Madsens Vej 51
Haurvig
Preis ab 314 EUR
Mehr sehen