« Zurück

Gemütliches 12-Personen-Ferienhaus mit Poolraum

Katalognr.: 60490

Solhaven 14, Blåvand

Wenn ihr auf der Suche nach einem großendem Ferienhaus mit Pool, Sauna und Whirlpool seid, dann ist dieses Ferienhaus sicherlich eine gute Wahl. Es bietet Platz für bis zu 12 Feriengäste, und auch euer Hund ist hier herzlich willkommen. Das Ferienhaus befindet sich in Solhaven 14 in Blåvand, einem beliebten Urlaubsgebiet an der Westküste.

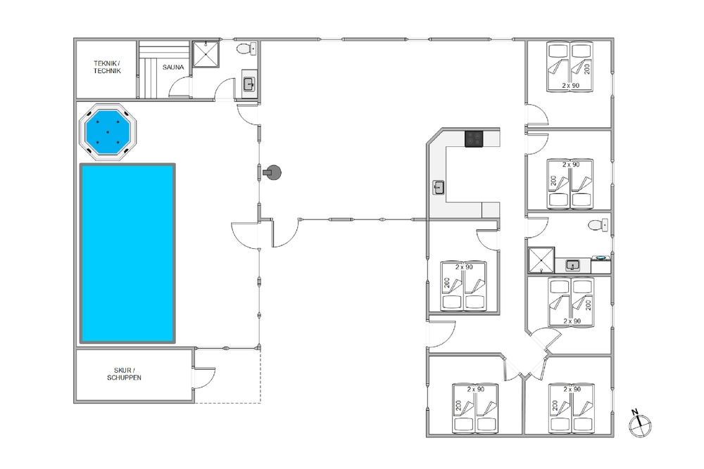
Spielen und Entspannen im Poolraum, Whirlpool oder Sauna

Einer der absoluten Höhepunkte des Ferienhauses ist der Poolraum, mit dem 18 qm großem Pool, Whirlpool und Sauna. Hier kann sich die ganze Familie vergnügen, egal ob ihr Spaß und Spiel oder Entspannung und Wohlbefinden sucht. Der Whirlpool mit Platz für 5 Personen wurde direkt im Poolraum integriert und im selben Bereich befindet sich die Sauna und ein Badezimmer mit Dusche. Das andere Badezimmer befindet sich direkt bei den Schlafzimmern. Natürlich sind beide Bäder mit einer Fußbodenheizung ausgestattet.

Praktische Ausstattung im traditionellen dänischen Ferienhaus

Das Herzstück des Hauses ist das Wohnzimmer mit Essbereich und Küche in einem. Hier verbringt ihr gerade am Abend oder an kühleren Tagen viele angenehme Stunden vor dem knisternden Feuer im Kaminofen oder ihr benutzt die energiesparende Wärmepumpe

Am langen Esstisch könnt ihr, während das Feuer im Holzofen knistert, eure selbstgekochten Mahlzeiten essen, Karten oder Brettspiele spielen. Das Sofa lädt dazu ein, mal wieder ein gutes Buch zu lesen oder einen schönen Film zuschauen.

In der offenen Küche findet ihr alles, was ihr braucht, um sich gegenseitig mit köstlichen Mahlzeiten zu verwöhnen. Die Küchenausstattung bietet eine Mikrowelle, Kühlschrank mit Gefrierfach und natürlich einen Herd mit Ofen. Durch die offene Gestaltung hat man immer den Wohnbereich im Blick.

Die 6 Schlafzimmer, alle mit Doppeltbett ausgestattet, befindet sich praktischerweise alle im Schlaftracht des Sommerhauses.

Gemütliche Terrasse /Garten zum Sonnenuntergang genießen

Beim Ankommen am Ferienhaus, werden sicherlich die Kinderaugen leuchten. Nicht nur wegen des Pools, sondern auch die ganzen Spielgeräte im Außenbereich werden dazu beitragen. Während die Kleinsten sich im Sandkasten vergnügen oder die Schaukel und den Kletterturm ausprobieren. Die offene Terrasse ist mit Sonnenliegen und Gartenmöbeln, von wo aus, ihr die Kleinen im Blick habt.

Das Ferienhaus liegt im beliebten Feriengebiet Blåvand, das ein breites Angebot an Aktivitäten für die ganze Familie bietet. Das Ferienhaus liegt 2 Kilometer vom Strand entfernt, der auf jeden Fall einen Besuch wert ist.
In Blåvand gibt es ein breites Angebot an Aktivitäten für die ganze Familie. Ihr könnt einen Ausflug auf die Spitze des Leuchtturms machen, das Bunkermuseum erkunden oder den kleinen Tierpark besuchen. Darüber hinaus bietet die Stadt verschiedene Geschäfte, Restaurants und Cafés.

 

 

Ausstattung

  12 Personen
  1 Haustiere erlaubt
  1500 m Abstand zum Kaufmann
  2000 m Abstand zum Strand
  18 m Swimmingpool
Sauna
Geschirr-spüler
Nicht-Raucher

Weitere Ausstattung

Das Haus

  Grundstück: 2450 m²
  Wohnfläche: 208 m²
  Baujahr: 1996
  Einkaufsmöglichkeiten: 1500 m
  Nordsee: 2000 m
  Personen: 12
  Schlafzimmer: 6
  Doppelbetten: 6
  Kinderstühle: 1
  Kinderbetten: 1
  Haustiere
  Holzofen
  Pool
  Waschmaschine
  Geschirr-spüler
  Trockner

Zimmer

Küche:
  Kühlschrank
  Ofen
  Mikrowelle

Badezimmer:
  Badezimmer: 2
  Sauna

Unterhaltung

  Deutsche Fernsehsender

Draussen

  Liegestühle

Bedingungen

Bei Ankunft kannst du die Schlüssel ab 15 Uhr in unserem Büro abholen. Abreise ist spätestens um 10 Uhr bzw. 9 Uhr wenn die Endreinigung von uns unternommen wird.

Auf Karte

Haus buchen
Wochenkalender 2025
48
EUR
1.032
49
EUR
1.032
50
EUR
1.032
51
EUR
1.032
52

Dauer

Die gewählte Periode: KW
-
Preis: Haus buchen »
Kontakt  Ruf mich an

Ähnliche Häuser

Bjergbovej 20
Blåvand
Preis ab 482 EUR
Mehr sehen
Midtbyvej 3
Blåvand
Preis ab 362 EUR
Mehr sehen
Mærsk Vase 1
Blåvand
Preis ab 472 EUR
Mehr sehen
Karl Postsvej 7
Blåvand
Preis ab 502 EUR
Mehr sehen