« Zurück

Reetgedecktes Poolhaus mit geschlossener Terrasse

Katalognr.: CC1184

Skodbjergevej 28, Skodbjerge

Mit Platz für bis zu 10 Personen und 2 Hunde empfängt euch euer Ferienhaus im Skodbjergevej 28 ? gelegen auf einem großzügigen Naturgrundstück inmitten der ruhigen Umgebung von Skodbjerge. Das Haus bietet euch eine Vielzahl an funktionalen Annehmlichkeiten, darunter einen privaten Poolbereich, helle Räume und eine praktische Ausstattung, die sich vor allem für Familien oder Reisegruppen eignet.

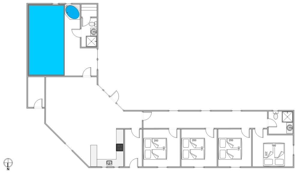
Großzügiges Ferienhaus mit eigenem Wellnessbereich

Die Adresse Skodbjergevej 28 bietet mit 200 m² Wohnfläche und einem gut durchdachten Grundriss viel Platz für eure gemeinsame Zeit. Das Herzstück des Hauses ist der eigene Wellnessbereich mit einem etwa 20 m² großen Swimmingpool, Whirlpool und Sauna ? ideal, wenn das Wetter einmal nicht mitspielt. Auch in der kühleren Jahreszeit sorgt die moderne Wärmepumpe für ein angenehmes Raumklima, ohne dass ihr euch Gedanken um hohe Energiekosten machen müsst.

Der Wohnbereich ist offen gestaltet und lichtdurchflutet ? dank der großen Dachfenster und des durchgehenden Klinkerbodens wirkt der Raum hell und aufgeräumt. Die Einrichtung ist funktional und auf größere Gruppen ausgerichtet, weniger auf Gemütlichkeit. Ein Flachbildfernseher und ein Kaminofen gehören zur Ausstattung, ebenso wie Fußbodenheizung für etwas zusätzliche Wärme.

Die angrenzende Küche ist zweckmäßig ausgestattet und bietet mit Geschirrspüler, großem Kühlschrank und Gefrierfach (80 Liter) alles, was ihr für euren Aufenthalt braucht ? auch Angler finden hier ausreichend Platz für ihren Fang. 2 Badezimmer mit Fußbodenheizung sorgen für einen reibungslosen Start in den Tag, selbst bei voller Belegung. Eine Waschmaschine und ein Trockner stehen euch ebenfalls zur Verfügung.

Übernachtet wird in 4 Schlafzimmern mit Doppelbetten sowie auf dem Schlafboden, der 2 zusätzliche Schlafplätze bereithält ? ideal für Kinder oder Jugendliche.

Viel Platz auf der geschlossenen Terrasse umgeben von Natur

Umgeben von einem herrlichen Naturgrundstück, könnt ihr es euch auf der geschlossenen Terrasse gut gehen lassen. Besonders praktisch ist diese natürlich auch für Hundebesitzer. Freut euch auf schöne Grillabende mit der ganzen Familie. Lest ein gutes Buch in den bequemen Terrassenmöbeln, während eure Kinder das große Grundstück für eine Partie Wikingerschach nutzen.

Zwischen Dünen und Heide ? eingebettet in die Natur

Das Feriengebiet Skodbjerge liegt direkt zwischen Ringkøbing Fjord und dänischer Nordsee in mitten der schönen Natur des Holmsland Klits. Von eurem Ferienhaus aus sind es nur 500 m bis zum Meer. Die malerische Natur in dieser Gegend und der traumhafte, weitläufige Strand bieten sich für allerlei Aktivitäten an.

Ob Wassersport, Wandern, Rad fahren oder Angeln ? jeder findet hier etwas, das ihm Freude macht. Wer Möglichkeiten zum Shoppen und Kultur sucht, wird im nahe gelegenen Hafenstädtchen Hvide Sande fündig werden.

Ausstattung

  10 Personen
  1 Haustiere erlaubt
  4500 m Abstand zum Kaufmann
  500 m Abstand zum Strand
  20 m Swimmingpool
Sauna
Geschirr-spüler
Nicht-Raucher

Weitere Ausstattung

Das Haus

  Grundstück: 2001 m²
  Wohnfläche: 200 m²
  Baujahr: 1992
  Renovierung: 2015
  Einkaufsmöglichkeiten: 4500 m
  Nordsee: 500 m
  Personen: 10
  Schlafzimmer: 4
  Doppelbetten: 4
  Haustiere
  Holzofen
  Pool
  Waschmaschine
  Geschirr-spüler
  Trockner

Zimmer

Küche:
  Kühlschrank
  Ofen
  Mikrowelle

Badezimmer:
  Badezimmer: 2
  Sauna

Unterhaltung

  Internet
  Radio
  Deutsche Fernsehsender

Draussen

  Liegestühle
  Grill

Bedingungen

Bei Ankunft kannst du die Schlüssel ab 15 Uhr in unserem Büro abholen. Abreise ist spätestens um 10 Uhr bzw. 9 Uhr wenn die Endreinigung von uns unternommen wird.

Auf Karte

Haus buchen
Wochenkalender 2025
46
EUR
1.002
47
EUR
1.002
48
EUR
1.002
49
EUR
1.002
50
EUR
1.002
51
EUR
1.002
52
EUR
2.002

Dauer

Die gewählte Periode: KW
-
Preis: Haus buchen »
Kontakt  Ruf mich an

Ähnliche Häuser

Fyrmarken 151
Nr. Lyngvig
Preis ab 402 EUR
Mehr sehen
Arvidvej 19
Bjerregård
Preis ab 522 EUR
Mehr sehen
Sandvej 5
Skodbjerge
Preis ab 482 EUR
Mehr sehen
Lyngvig Havnevej 36
Nr. Lyngvig
Preis ab 452 EUR
Mehr sehen