« Zurück

Charmantes Ferienhaus in Bjerregård ? 2 Hunde willkommen

Katalognr.: B2511

Sigfred Jensens Vej 10, Bjerregård

Willkommen in eurem gemütlichen Ferienhaus an der dänischen Westküste! Das geschmackvolle Ferienhaus in Bjerregård, gelegen in Sigfred Jensens Vej 10, erstrahlt nach einer Renovierung im Jahr 2024 in neuem Glanz, ohne dabei den ursprünglichen Charme verloren zu haben.

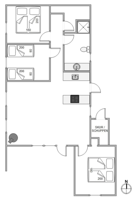
Mit 75 qm Wohnfläche bietet es Platz für bis zu 6 Personen und ermöglicht es euch auch, eure beiden Vierbeiner mitzubringen. Hier erwartet euch ein Zuhause fernab der Heimat, welches keine Wünsche offen lässt.

Genießt eine entspannte Zeit vorm Kamin in gemütlicher Atmosphäre

Der komfortable Innenbereich des Ferienhauses, im Sigfred Jensens Vej 10, lädt zum Verweilen ein. Im schönen Wohnzimmer könnt ihr es euch vor dem Fernseher oder dem Kaminofen gemütlich machen, der für behagliche Wärme und eine gemütliche Atmosphäre sorgt. Eine Wärmepumpe garantiert das ganze Jahr über eine angenehme Temperatur.

Versammelt euch am Esstisch für eine leckere Mahlzeit, die ihr in der praktischen Küche zubereitet habt. Diese ist u. a. mit einer Spülmaschine, einer Mikrowelle, einer 70 l Gefriermöglichkeit und einem Induktionsherd ausgestattet. Des Weiteren steht euch eine Waschmaschine zur Verfügung, so dass ihr eure Strandtücher stets auffrischen könnt.

Das Badezimmer verfügt über eine einfache Ausstattung mit einer Dusche. Zwei der gemütlichen Schlafzimmer sind mit komfortablen Doppelbetten ausgestattet, während das dritte Schlafzimmer zwei Einzelbetten bietet, sodass alle Gäste erholsame Nächte verbringen können.

Freiraum und Natur direkt vor der Tür

Auf dem großzügigen, 1200 qm großen Rasengrundstück, auf dem sich euer charmantes Ferienhaus befindet, könnt ihr euch wunderbar entspannen. Genießt gemeinsam gegrillte Mahlzeiten vom Gasgrill und nutzt die bequemen Gartenmöbel und Sonnenliegen auf der Terrasse, die teils abgeschirmt und teils überdacht ist, für eure Entspannung. Eure Kinder werden die Schaukel im Garten lieben. Hier ist auch Platz für Ballspiele oder eine Partie Wikingerschach.

Tolle Lage und zahlreiche Aktivitätsmöglichkeiten

Das Ferienhaus befindet sich im malerischen Gebiet Bjerregård, das euch zahlreiche Freizeitmöglichkeiten bietet. Nur 1 km trennt euch von der Nordsee mit ihrem kilometerweiten Sandstrand. Hier könnt ihr die Tage mit Sonnenbaden, Muscheln sammeln oder langen Spaziergängen mit euren Hunden entlang der Küste verbringen.

Zudem ist der Kaufmann in Bjerregård lediglich 350 m entfernt. Ob frische Brötchen für ein Frühstück auf der Terrasse oder Leckereien für einen Grillabend ? hier könnt ihr euch mit allem Nötigen eindecken. Erkundet die Umgebung des Holmsland Klit und erlebt unvergessliche Abenteuer in dieser wunderschönen Region.

Ausstattung

  6 Personen
  1 Haustiere erlaubt
  350 m Abstand zum Kaufmann
  1000 m Abstand zum Strand
Geschirr-spüler
Nicht-Raucher

Weitere Ausstattung

Das Haus

  Grundstück: 1200 m²
  Wohnfläche: 75 m²
  Baujahr: 1975
  Renovierung: 2024
  Einkaufsmöglichkeiten: 350 m
  Nordsee: 1000 m
  Personen: 6
  Schlafzimmer: 3
  Einzelbetten: 2
  Doppelbetten: 2
  Haustiere
  Holzofen
  Waschmaschine
  Geschirr-spüler

Zimmer

Küche:
  Kühlschrank
  Ofen
  Mikrowelle

Badezimmer:
  Badezimmer: 1

Unterhaltung

  Internet
  Radio
  Deutsche Fernsehsender

Draussen

  Liegestühle

Bedingungen

Bei Ankunft kannst du die Schlüssel ab 15 Uhr in unserem Büro abholen. Abreise ist spätestens um 10 Uhr bzw. 9 Uhr wenn die Endreinigung von uns unternommen wird.

Auf Karte

Haus buchen
Wochenkalender 2025
52
EUR
782

Dauer

Die gewählte Periode: KW
-
Preis: Haus buchen »
Kontakt  Ruf mich an

Ähnliche Häuser

Anker Eskildsens Vej 46
Nr. Lyngvig
Preis ab 454 EUR
Mehr sehen
Humlegårdsvej 4N
Bjerregård
Preis ab 684 EUR
Mehr sehen
Julianevej 63
Bjerregård
Preis ab 534 EUR
Mehr sehen
Karen Brands Vej 49
Årgab
Preis ab 514 EUR
Mehr sehen