« Zurück

Modernisiertes Reetdachhaus in toller Umgebung, 1 Hund erlaubt

Katalognr.: 60185

Per Knoldsvej 34, Blåvand

Dieses schöne und in 2019 modernisierte Reetdachklinkerhaus wird der perfekt Ort für euch als Familie mit bis zu 4 Kindern und eurem Hund sein. Die tolle und gut geschützte Lage sind sehenswert ? und trotzdem nicht weit vom Zentrum Blåvands entfernt. Gratis Internet ? perfekt, um Kontakt mit Freunden zu halten.

Kaminofen, Wärmepumpe, moderne Ausstattung

Betretet euer Urlaubsdomizil im Per Knoldsvej 34 in Blåvand ? und fühlt euch direkt willkommen und wohl. Dieses schöne und solide Ferienhaus wurde umfassend und liebevoll saniert und mit schönen Möbeln geschmackvoll ausgestattet.

Der Kaminofen im Erdgeschoss darf hier nicht fehlen ? dieser spendet bereits an kühleren Tagen zur Frühstückszeit oder aber am Abend eine wohlige Wärme und macht das Dänemarkfeeling perfekt.

Solltet ihr den Kamin einmal nicht nutzen wollen, sorgt die engergiesparende Wärmepumpe für eine angenehme Wärme und temperiert das gesamte Haus.

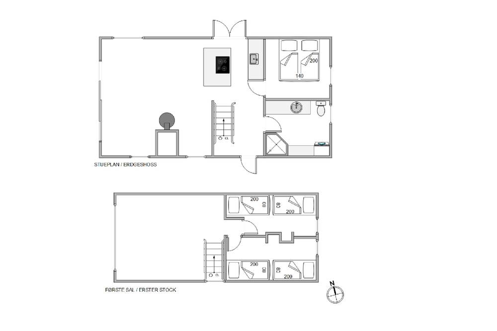
3 Schlafzimmer, 1 Badezimmer mit Fussbodenheizung

Im Erdgeschoss befindet sich das Elternschlafzimmer mit Doppelbett und in der 1. Etage gibt es die beiden Kinderzimmer mit jeweils 2 Einzelbetten. Eure Jüngsten haben also ihr eigenes Reich und können spielen oder ihre Lieblingsserie im Wohnzimmer, welches ebenfalls in der 1. Etage untergebracht ist, sehen.

Das Badezimmer mit Fussbodenheizung, Waschmaschine und Trockner ist hell und grosszügig sowie bietet ausreichend Stauraum für all eure Kosmetikartikel.

Große, teilweise überdachte und geschlossene Terrasse ? tolles Grundstück 

Die 250 m2 große, teilweise geschlossene Terrasse ist mit guten Gartenmöbeln, Liegestühlen und einem Grill für die warmen Sommerabende ausgestattet. Hier findet die ganze Familie und der Hund einen Platz in der Sonne. Auf dem tollen Grundstück gibt es zudem eine schöne und beheizbare Hütte, wo ihr sitzen und den Blick ins Grüne genießen könnt, wenn es Abend wird. Hier ist Platz für 8 Personen, um am Tisch zu sitzen, sich zu amüsieren ? vielleicht bei einem Spieleabend oder einfach mit Knabbereien und bei einem guten Glas Wein.

Blåvands Zentrum sowie der Strand liegen jeweils ungefähr 700 m entfernt ? ein täglicher Gang, um frische Waren einzukaufen, zu shoppen, leckeres Softeis zu probieren oder dem Strand einen Besuch abzustatten können hier auf euer Todo-Liste stehen ? alles ist möglich. Urlaub am Meer ? seid herzlich willkommen.

Die Lademöglichkeit für das Elektroauto ist eine Ladestation mit Typ 2 Stecker.

Ausstattung

  6 Personen
  1 Haustiere erlaubt
  700 m Abstand zum Kaufmann
  700 m Abstand zum Strand
Geschirr-spüler
Nicht-Raucher

Weitere Ausstattung

Das Haus

  Grundstück: 4200 m²
  Wohnfläche: 112 m²
  Baujahr: 1981
  Renovierung: 2019
  Einkaufsmöglichkeiten: 700 m
  Nordsee: 700 m
  Personen: 6
  Schlafzimmer: 3
  Einzelbetten: 2
  Doppelbetten: 2
  Haustiere
  Holzofen
  Waschmaschine
  Geschirr-spüler
  Trockner

Zimmer

Küche:
  Kühlschrank
  Ofen
  Mikrowelle

Badezimmer:
  Badezimmer: 1

Unterhaltung

  Internet
  Radio
  Deutsche Fernsehsender

Draussen

  Liegestühle
  Grill

Bedingungen

Bei Ankunft kannst du die Schlüssel ab 15 Uhr in unserem Büro abholen. Abreise ist spätestens um 10 Uhr bzw. 9 Uhr wenn die Endreinigung von uns unternommen wird.

Auf Karte

Haus buchen
Wochenkalender 2026
05
EUR
604
06
EUR
604
07
EUR
674
08
EUR
604
09
EUR
604
10
EUR
604
11
EUR
604
12
EUR
604
13
EUR
764
14
15
EUR
984
16
EUR
674
17
EUR
674
18
EUR
764
19
20
21
22
23
EUR
764
24
25
26
27
EUR
1.214
28
EUR
1.584
29
EUR
1.674
30
EUR
1.814
31
EUR
1.814
32
EUR
1.814
33
34
35
36
37
EUR
874
38
EUR
764
39
EUR
764
40
EUR
764
41
EUR
764
42
EUR
874
43
EUR
984
44
EUR
874
45
46
47
48
49
50
51
52
EUR
1.214
53
EUR
1.674

Dauer

Die gewählte Periode: KW
-
Preis: Haus buchen »
Kontakt  Ruf mich an

Ähnliche Häuser

Vesterballevej 34A
Ho
Preis ab 1.714 EUR
Mehr sehen
Kallesmærskvej 24
Blåvand
Preis ab 1.874 EUR
Mehr sehen
Hvidbjerg Strandvej 25D
Blåvand
Preis ab 1.864 EUR
Mehr sehen
Gl. Skolevej 24
Blåvand
Preis ab 1.634 EUR
Mehr sehen