« Zurück

Attraktives Aktivitätshaus mit Sauna, Whirlool & Meerblick in Rindby

Katalognr.: 72111

Paradisvej 62, Rindby

Dieses attraktive und architektonisch spannende Ferienhaus mit Meerblick und Platz für bis zu 8 Personen bietet euch auf insgesamt 280 m² ausreichend Platz und zudem eine fantastische Aussicht auf die umliegende Natur der Insel Fanø.

Vier Schlafzimmer und zwei Badezimmer ? verteilt auf 2 Etagen bieten einer, oder auch zwei Familien eine tolle Möglichkeit, entspannte Ferien an der dänischen Nordsee zu verbringen. Ein Hund ist hier herzlich willkommen. Zusätzlich ist das Ferienhaus im Paradiesvej 62 mit einer Sauna, einem Whirlpool, einen Außenwhirlpool sowie einer Ladestation für euer Elektroauto ausgestattet.

Attraktives, reetgedecktes Sommerhaus mit komfortabler Ausstattung und Meerblick

Dieses durch seine besondere Bauweise bestechende Sommerhaus, bietet nicht nur eine komfortable Ausstattung mit Sauna, Whirlpool für 2 Personen, Außendusche sowie die üblichen Haushaltshelfer, sondern darüber hinaus auch eine erstklassige Aussicht auf das Meer und die umliegende, schöne Natur. Eine moderne Wärmepumpe sogt für angenehme Temperaturen. 

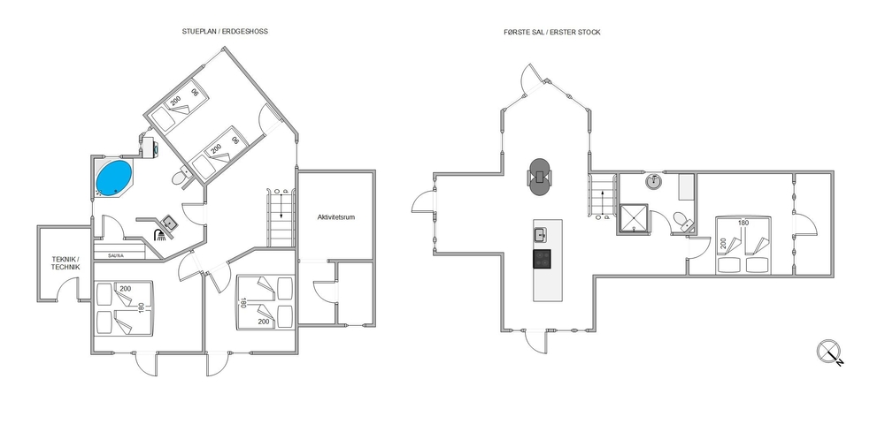
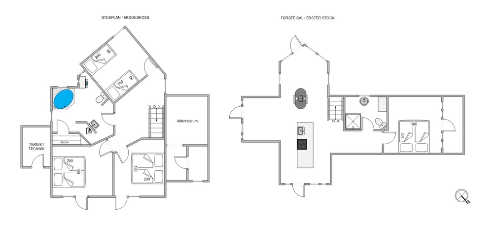
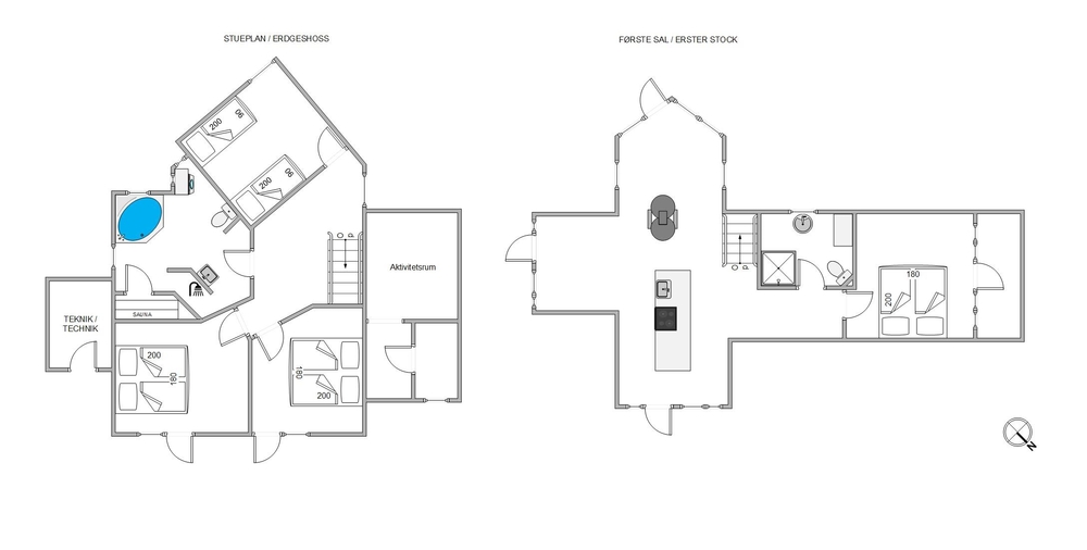
Auf den 280 m² befinden sich insgesamt vier Schlafzimmer, zwei Bäder, sowie der im Obergeschoss befindliche Wohnraum mit Küche, Essbereich und Kamin. Ein Schlafzimmer, sowie ein Badezimmer befindet sich ebenso in der 1. Etage, welche über eine offene Treppe aus dem Untergeschoss zu erreichen ist. Daher ist das Haus für Familien mit Kleinkindern und für Personen mit Gehbeschwerden nur bedingt geeignet.

Drei Schlafzimmer sowie ein Badezimmer, welches die Sauna sowie den Whirlpool beherbergt, sind im Erdgeschoss des Ferienhauses untergebracht. Die Größe der Doppelbetten beträgt 160 x 200 cm. Beide Badezimmer des Hauses verfügen über eine Fußbodenheizung. Alle Schlafzimmer bieten Zugang zu einer Terrasse und im Obergeschoss zu einem Balkon mit herrlichem Panoramablick. Begrüßt den Tag mit einer frisch aufgebrühten Tasse Kaffee und genießt den Blick auf das Meer und die Dünenlandschaft.

Von eurer Ferienhausadresse im Paradisvej 62, könnt ihr direkt auf den vorbeiführenden Naturpfaden euren Morgenspaziergang gemeinsam mit dem Hund starten. Lasst euch von der herrlichen Natur der Insel Fanø verzaubern und genießt die traumhafte Landschaft, welche euch umgibt. Heide, Wälder, Dünen und kleine Seen so weit das Auge reicht ? die Nordsee sowie der unendlich breite Sandstrand, wofür Fanø so beliebt ist, nicht zu vergessen.

Mehrere Balkone, Terrassen und nur 450 m bis zum Meer!

Die besondere Bauweise dieses Hauses bietet euch ein ganz besonderes Urlaubsziel. Lasst euch von dem Flair, welches euch bereits bei der Anfahrt zum Haus empfängt, verzaubern. Gerade der etwas ungewöhnliche Baustil, die individuelle sowie komfortable und gute Ausstattung machen dieses Ferienhaus zu etwas ganz Besonderem.

Unabhängig der Witterung könnt ihr die vom Haus umgebenden Terrassen, welche teilweise auch überdacht sind, hervorragend nutzen. Gartenmöbel, Liegestühle sowie ein Grill stehen euch zur Verfügung. Gerade an den langen, hellen Sommerabenden ist es einfach herrlich, die Zeit im Freien zu verbringen. Auch ein Außenwhirlpool steht für euch bereit. Lehnt euch im warmen Wasser zurück und geniesst die Freiheit unter dem Sternenhimmel.

Von eurem Ferienhaus auf Fanø sind es nur 450 Meter, bis ihr den breiten und unendlich weiten Sandstrand erreicht. Fanø?s Strand ist etwas ganz Besonderes ? spaziert an der Wasserkante entlang, welche bei Ebbe etwas weiter als gewöhnlich entfernt ist. Sammelt Muscheln und was auf Fanø besonders beliebt ist -Bernstein!  

Der Strand zwischen Rindby und Sønderho ist mit dem Auto befahrbar, was sicherlich ein ganz besonderes Erlebnis darstellt. Darüber hinaus könnt ihr auch mit den Fahrrädern traumhafte Ausflüge unternehmen, welche euch sowohl durch die Heide, oder aber entlang des Wassers um die Insel führen.

Ausstattung

  8 Personen
  1 Haustiere erlaubt
  1100 m Abstand zum Kaufmann
  450 m Abstand zum Strand
Sauna
Geschirr-spüler
Nicht-Raucher

Weitere Ausstattung

Das Haus

  Grundstück: 3001 m²
  Wohnfläche: 280 m²
  Baujahr: 2013
  Renovierung: 2021
  Einkaufsmöglichkeiten: 1100 m
  Nordsee: 450 m
  Meerblick
  Personen: 8
  Schlafzimmer: 4
  Einzelbetten: 2
  Doppelbetten: 3
  Haustiere
  Holzofen
  Waschmaschine
  Geschirr-spüler
  Trockner

Zimmer

Küche:
  Kühlschrank
  Ofen
  Mikrowelle

Badezimmer:
  Badezimmer: 2
  Sauna

Unterhaltung

  Internet
  CD-Player
  DVD-Player
  Radio
  Deutsche Fernsehsender

Draussen

  Liegestühle
  Grill

Bedingungen

Bei Ankunft kannst du die Schlüssel ab 15 Uhr in unserem Büro abholen. Abreise ist spätestens um 10 Uhr bzw. 9 Uhr wenn die Endreinigung von uns unternommen wird.

Auf Karte

Haus buchen
Wochenkalender 2026
08
09
10
EUR
1.384
11
EUR
1.384
12
EUR
1.384
13
EUR
1.654
14
15
16
EUR
1.524
17
18
19
20
21
22
EUR
1.844
23
24
25
26
27
28
EUR
2.814
29
30
31
32
33
EUR
2.914
34
EUR
2.534
35
36
37
38
EUR
1.654
39
EUR
1.654
40
41
EUR
1.654
42
43
44
45
46
47
48
49
50
51
52
53

Dauer

Die gewählte Periode: KW
-
Preis: Haus buchen »
Kontakt  Ruf mich an

Ähnliche Häuser

Vesten Sandene 44
Sønderho
Preis ab 444 EUR
Mehr sehen
Vagtbjergvej 3
Rindby
Preis ab 413 EUR
Mehr sehen
Søndermarken 39
Sønderho
Preis ab 474 EUR
Mehr sehen
Hedemarken 9
Rindby
Preis ab 504 EUR
Mehr sehen