« Zurück

Kuscheliges, kleines Sommerhaus in den Dünen für 4 Personen + 1 Hund

Katalognr.: 72012

Østre Klitvej 29, Rindby

Auf den ersten Blick vielleicht etwas unscheinbar ? aber dann! Willkommen auf Østre Klitvej 29 im Ferienhaus ?Bette? im Ort Rindby auf der Insel Fanö. Kuschelige 50 m² Platz ? perfekt für euch als Paar, oder als kleine Familie mit bis zu 4 Personen sowie 1 Hund. Kleines und dabei feines Ferienhaus in ruhiger Lage ? perfekt für einen Urlaub, um neue Energien zu tanken und vom Alltag abzuschalten!

Gemütliches, rustikales Design ? Kaminofen und moderne Wärmepumpe

Dieses kleine und urgemütliche Sommerhaus liegt in ruhiger Lage, am Fuße einer Düne und auf der Rückseite umgeben von Bäumen und Büschen, auf Østre Klitvej 29. Die Adresse des Ferienhauses gehört in den Ort Rindby auf der Insel Fanø ? knappe 650 m entfernt vom herrlichen Sandstrand ? einem der schönsten und breitesten Strände Dänemarks.

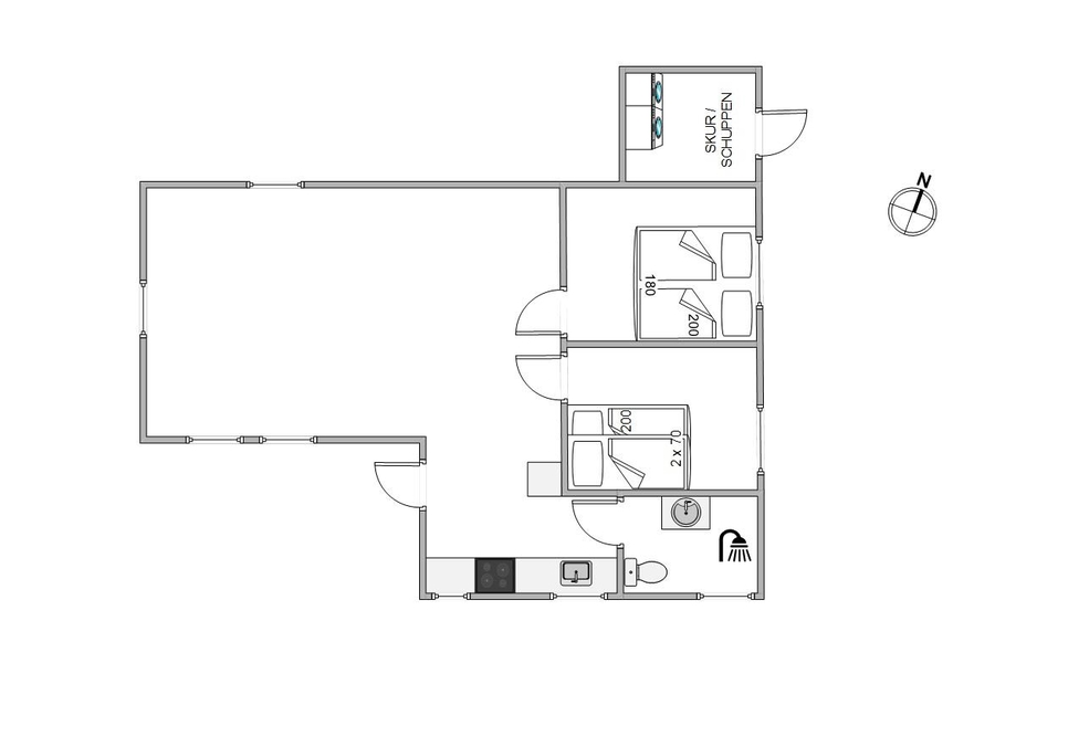
Die Gesamtfläche von 50 m² wurde perfekt ausgenutzt und euch erwartet ein gemütlicher, rustikaler Wohnbereich mit Kaminofen, Essbereich sowie angrenzender Küche, welche sowohl mit Geschirrspüler und Mikrowelle ausgestattet wurde. Nicht nur der Kamin sorgt für wohlige Temperaturen, auch eine Wärmepumpe steht euch zur Verfügung.

2 Schlafzimmer ? 1 Duschbad ? Platz für bis zu 4 Personen

Eines der beiden Schlafzimmer verfügt über ein Doppelbett und das 2. Schlafzimmer ist mit einem Etagenbett ausgestattet, was sicherlich die Kinder freuen wird ? Etagenbetten sind bei Kindern sehr beliebt und somit haben die Jüngsten auch ihren eigenen Rückzugsort. Die Waschmaschine sowie ein separater Gefrierschrank sind im Anbau untergebracht.  

Das Bad, mit viel Licht, verfügt über eine Dusche und im Grunde bietet diese kleine und liebevoll gepflegte Ferienhaus alles, was man so braucht ? keinen Luxus, aber ohnehin ist weniger manchmal mehr! Hier habt ihr die Möglichkeit, Abstand vom Alltag zu nehmen und euch auf eure Auszeit, Entspannung und Zeit mit euren Liebsten zu freuen. Auch euer Vierbeiner darf mit in den Urlaub fahren und kann mit euch die Insel erkunden.

Geschlossene Terrasse ? perfekt für Kind & Hund

Die kleine Terrasse ist teilweise überdacht und komplett geschlossen. Daher ist dies gerade im Sommer wie eine Erweiterung des Ferienhauses ? ein Ort, um entspannt im Freien und an der frischen Luft zu sitzen, endlich wieder Zeit finden, um die Nase in ein spannendes Buch zu stecken, oder einfach eingekuschelt auf einer Sonnenliege die ersten Sonnenstrahlen zu erhaschen, während die Kinder und der Hund auf der geschlossenen Terrasse gut gesichert sind ? Ausflüge auf eigene Faust sind hier keine Option.

Die Düne hinter dem Ferienhaus lädt zu einer Kletterpartie ein ? die Aussicht auf die Umgebung ist fantastisch. Wenn am Abend die Sonne den Himmel in den schönsten Pastelltönen färbt, habt ihr den perfekten Ausblick auf den Sonnenuntergang am Meer!

650 Meter zum Strand ? wunderschöne Naturerlebnisse auf Fanø

Die Insel Fanø bietet euch eine wunderschöne und abwechslungsreiche Natur! Diese kleine Insel wird nicht umsonst als eine der schönsten Inseln Dänemarks angepriesen und wer die Nordseeküste liebt, wird dies verstehen. Lasst euch von den kleinen Orten Nordby, Fanø Bad, Rindby und Sønderho überraschen ? kleine, gemütliche Gassen, alte und traditionelle, oft mit Reet gedeckte Häuser, verbreiten ihren ganz eigenen Charme und das Tempo auf solch einer Insel ist sehr gemäßigt, sodass Hektik und Stress hier keinen Platz finden. Freut euch auf eure Auszeit im Wattenmeer ? spätestens mit der Überfahrt auf der Fähre von Esbjerg nach Fanö, werdet ihr in den erhofften Urlaubsmodus gelangen und könnt euch auf euren Urlaub freuen!

Ausstattung

  4 Personen
  1 Haustiere erlaubt
  1500 m Abstand zum Kaufmann
  650 m Abstand zum Strand
Geschirr-spüler
Nicht-Raucher

Weitere Ausstattung

Das Haus

  Grundstück: 1220 m²
  Wohnfläche: 50 m²
  Baujahr: 1968
  Renovierung: 2018
  Einkaufsmöglichkeiten: 1500 m
  Nordsee: 650 m
  Personen: 4
  Schlafzimmer: 2
  Doppelbetten: 1
  Etagenbett: 1
  Haustiere
  Holzofen
  Waschmaschine
  Geschirr-spüler

Zimmer

Küche:
  Kühlschrank
  Ofen
  Mikrowelle

Badezimmer:
  Badezimmer: 1

Unterhaltung

  Internet
  Deutsche Fernsehsender

Draussen

  Liegestühle
  Grill

Bedingungen

Bei Ankunft kannst du die Schlüssel ab 15 Uhr in unserem Büro abholen. Abreise ist spätestens um 10 Uhr bzw. 9 Uhr wenn die Endreinigung von uns unternommen wird.

Auf Karte

Haus buchen
Wochenkalender 2026
11
12
EUR
324
13
14
15
EUR
514
16
17
18
19
EUR
404
20
EUR
464
21
22
23
EUR
404
24
25
26
27
28
EUR
814
29
30
31
32
33
EUR
854
34
35
36
37
38
39
EUR
404
40
EUR
404
41
EUR
404
42
EUR
464
43
EUR
514
44
EUR
464
45
46
47
48
49
50
51
52
53

Dauer

Die gewählte Periode: KW
-
Preis: Haus buchen »
Kontakt  Ruf mich an

Ähnliche Häuser

Præstemarken 11
Sønderho
Preis ab 1.004 EUR
Mehr sehen
Søndervænget 3
Rindby
Preis ab 1.054 EUR
Mehr sehen
Skovly 19
Fanø Bad
Preis ab 824 EUR
Mehr sehen
Engdraget 6
Rindby
Preis ab 838 EUR
Mehr sehen