« Zurück

Strandnahe Ferienwohnung mit Zugang zum Gemeinschaftspool

Katalognr.: 50802

Nordvej 11- 2, Vejers

Diese schöne Nichtraucherwohnung im Nordvej 11 ? 2 in Vejers Strand liegt nur 100 Meter vom herrlichen Nordseestrand entfernt. Auch der lebhafte Ferienort Vejers ist bequem zu Fuss zu erreichen. Die Wohnung gehört zu einer, von 22 Ferienwohnungen eines Feriencenters mit freiem Zugang zu verschiedenen Gemeinschaftsaktivitäten.

Nichtraucherwohnung mit Zugang zu Gemeinschaftsaktivitäten      

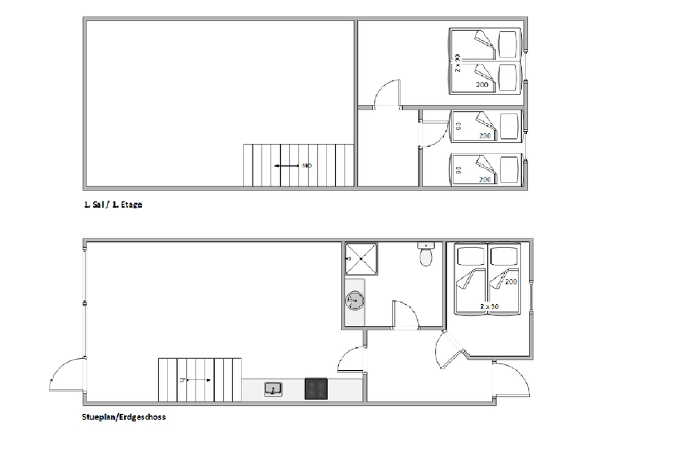
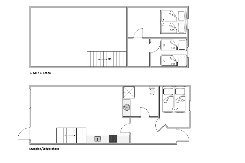
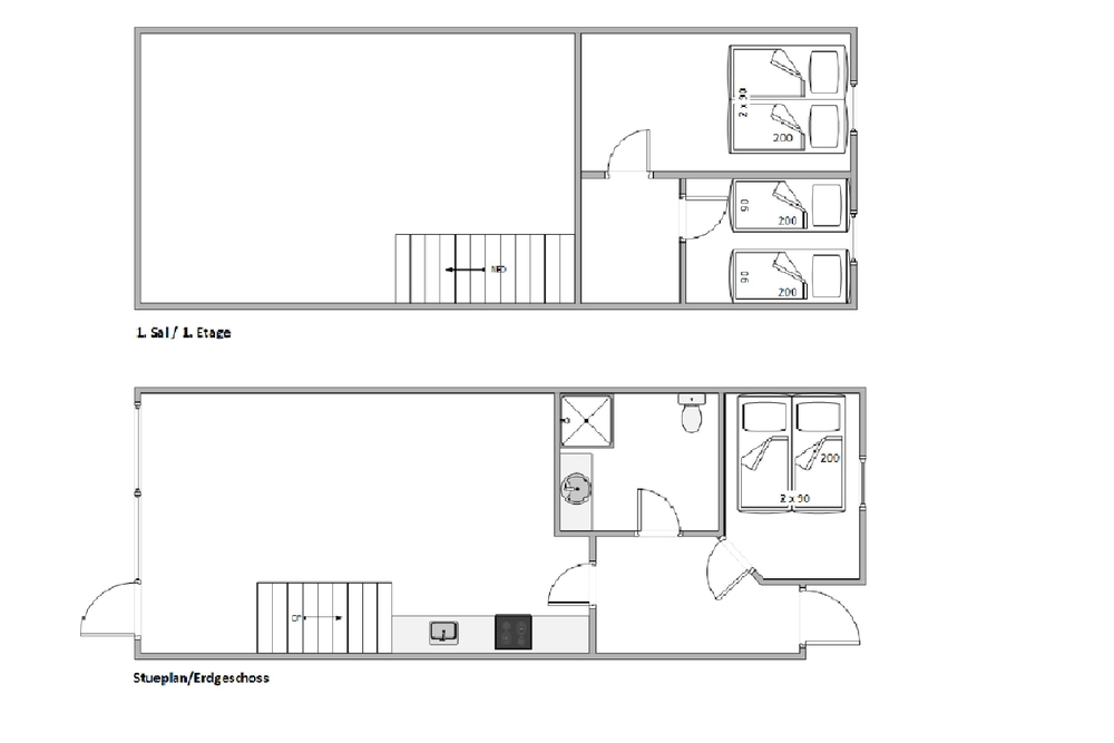
Die Ferienwohnung erstreckt sich über 2 Etagen, die mit einer Treppe vom Wohnraum aus miteinander verbunden sind. Bis zu 6 Personen können sich auf 3 Schlafzimmer verteilen, von denen sich eins in der unteren und 2 in der oberen Etage befinden.

Mittelpunkt dieser Nichtraucherwohnung ist der Wohnraum mit der integrierten modernen Küche, die mit allem ausgestattet ist, was Ihr zum Zubereiten leckerer Ferienmahlzeiten benötigt.  Von hier aus habt Ihr Zugang zur gut abegschirmten Terrasse, die mit bequemen Gartenmöbeln ausgestattet ist. Bei einem entspannenden Sonnenbad könnt Ihr die nahegelegene Nordsee rauschen hören.

Als Gäste des Feriencenters habt Ihr freien Zugang zu allen Gemeinschaftsaktivitäten wie Pool, Aktivitätsraum und Spielplatz. Also auch in der kühleren Jahreszeit solltet Ihr unbedingt Euer Badezeug einpacken. Bei den Kindern ist besonders der Spielplatz sehr beliebt, da hier schnell und unkompliziert neue Urlaubsbekannschaften geschlossen werden können.

Die Sauna sowie eine Waschmaschine kannst du gegen Zahlung einer Gebühr nutzen. Hier zählt das Prinzip ? wer zuerst vor Ort ist.

Fantastische strandnahe Lage in Vejers      

Nach einem kurzen Spaziergang durch die Dünen, erreicht Ihr den herrlichen feinsandigen Nordseestrand. Der Strand ist ein wahres Eldorado für Wasserratten, Sonnenanbeter, Muschelsucher und Naturliebhaber. Auch in der kühleren Jahreszeit ist ein Strandspaziergang ein fazinierdes Naturerlebnis für Gross und Klein.

Der lebhafte Ferienort Vejers ist ebenfalls gut zu Fuss zu erreichen. Hier laden die Geschäfte, die Restaurants und Gallerien zum Shoppen und Bummeln ein. Auch die benachbarten Ferienorte wie Blåvand und Henne Strand sind zu fast jeder Jahreszeit einen Besuch wert.

Keine Vermietung an Jugendgruppen!

 

 

 

Ausstattung

  6 Personen
  1 Haustiere erlaubt
  200 m Abstand zum Kaufmann
  100 m Abstand zum Strand
   m Swimmingpool
Geschirr-spüler
Nicht-Raucher

Weitere Ausstattung

Das Haus

  Grundstück: 100 m²
  Wohnfläche: 62 m²
  Baujahr: 1992
  Einkaufsmöglichkeiten: 200 m
  Nordsee: 100 m
  Personen: 6
  Schlafzimmer: 3
  Einzelbetten: 2
  Doppelbetten: 2
  Haustiere
  Pool
  Geschirr-spüler

Zimmer

Küche:
  Kühlschrank
  Ofen

Badezimmer:
  Badezimmer: 1

Unterhaltung

  Internet
  Radio
  Deutsche Fernsehsender

Draussen

  Liegestühle
  Grill

Bedingungen

Bei Ankunft kannst du die Schlüssel ab 15 Uhr in unserem Büro abholen. Abreise ist spätestens um 10 Uhr bzw. 9 Uhr wenn die Endreinigung von uns unternommen wird.

Auf Karte

Haus buchen
Wochenkalender 2026
08
09
EUR
404
10
11
12
EUR
404
13
EUR
534
14
15
16
EUR
474
17
EUR
474
18
EUR
534
19
EUR
534
20
21
EUR
534
22
23
EUR
534
24
25
26
27
EUR
684
28
29
30
31
32
33
34
35
36
EUR
574
37
EUR
574
38
EUR
534
39
40
EUR
534
41
EUR
534
42
43
EUR
634
44
45
EUR
404
46
47
48
49
50
51
52
EUR
684
53
EUR
994

Dauer

Die gewählte Periode: KW
-
Preis: Haus buchen »
Kontakt  Ruf mich an

Ähnliche Häuser

Vejers Havvej 28
Vejers
Preis ab 1.174 EUR
Mehr sehen
Nordvej 90A
Vejers
Preis ab 1.104 EUR
Mehr sehen
Kratvej 13
Vejers
Preis ab 914 EUR
Mehr sehen
Nordvej 130
Vejers
Preis ab 1.174 EUR
Mehr sehen