« Zurück

Ferienhaus direkt am Meer in Blåvand für 4 Personen - Hund erlaubt

Katalognr.: 60307

Lille Strandvej 22, Blåvand

Dichter am weißen Sandstrand als in dieser kleinen Perle am Lille Strandvej 22 kann man in Blåvand nicht wohnen. Allein schon durch diese spezielle Lage verfügt dieses 4 Personen Ferienhaus direkt am Strand von Blåvand, welches 1934 erbaut und 2019 komplett renovierte wurde, über einen gewissen Bekanntheitsgrad am westlichsten Punkt Dänemarks, dem Ferienort Blåvand. Denn wer träumt nicht davon mit Meerblick zu wohnen und abends vom Meeresrauschen in den Schlaf gewiegt zu werden?

Ferienhaus am Strand mit Ursprünglichkeit und modernem Komfort

Mit viel Feingefühl wurde das Ferienhaus am Lille Strandvej 22 so renoviert, dass seine Authenzität bewahrt wurde und euch gleichzeitig jeglicher moderner Komfort zur Verfügung steht. Ob für die kleine Familie oder zwei befreundete Paare, dieses Haus steht für Qualitätszeit, echtes Naturerleben und eine Auszeit fernab vom trubeligen Alltag in geschmackvollem Ambiente. Auch Vierbeiner sind hier herzlich willkommen.

So sorgt der knisternde Kaminofen für heimelige Atmosphäre, wenn ihr von einem ausgiebigen Strandspaziergang zurückkommt, die energiesparende Wärmepumpe hat jedoch derweil die Temperatur im Haus auf angenehmen Niveau gehalten. Internet und deutsch/dänisches Fernsehen stehen bereit, falls ihr doch einmal etwas von der Außenwelt hören möchtet.

Die helle, moderne Küche lädt zum gemeinsamen Kochen ein, die von Dünen umgebene Terrasse zum Genießen des Morgenkaffees, der spektakulären Sonnenuntergänge oder ganz einfach das Dasein an sich.

Ferien mit Meerblick am westlichsten Punkt Dänemarks

Dieses besondere Ferienhaus ist der Inbegriff von Ferien an der dänischen Westpunkte. Ihr seht vom Haus aus den westlichsten Punkt, markiert durch den wunderschönen Leuchtturm am Blåvandshuk und abends dessen regelmäßiges Blinksignal.

Neben all dieser Natur- und Strandnähe verfügt der fußläufig erreichbare lebendige Küstenort Blåvand über spannende Einkaufsmöglichkeiten, leckere Restaurants und vielerlei Aktivitäten und Sehenswürdigkeiten für jeden Geschmack. Genau dieser Kontrast macht Ferien hier zu einer unvergesslichen Zeit.

Ausstattung

  4 Personen
  1 Haustiere erlaubt
  300 m Abstand zum Kaufmann
  20 m Abstand zum Strand
Geschirr-spüler
Nicht-Raucher

Weitere Ausstattung

Das Haus

  Grundstück: 1422 m²
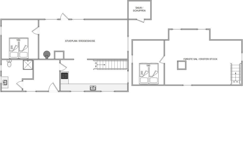
  Wohnfläche: 93 m²
  Baujahr: 1934
  Renovierung: 2019
  Einkaufsmöglichkeiten: 300 m
  Nordsee: 20 m
  Meerblick
  Personen: 4
  Schlafzimmer: 2
  Doppelbetten: 2
  Kinderbetten: 1
  Haustiere
  Holzofen
  Waschmaschine
  Geschirr-spüler
  Trockner

Zimmer

Küche:
  Kühlschrank
  Ofen
  Mikrowelle

Badezimmer:
  Badezimmer: 1

Unterhaltung

  Deutsche Fernsehsender

Draussen

  Liegestühle

Bedingungen

Bei Ankunft kannst du die Schlüssel ab 15 Uhr in unserem Büro abholen. Abreise ist spätestens um 10 Uhr bzw. 9 Uhr wenn die Endreinigung von uns unternommen wird.

Auf Karte

Haus buchen
Wochenkalender 2025
48
EUR
1.722
49
50
EUR
1.722
51
52

Dauer

Die gewählte Periode: KW
-
Preis: Haus buchen »
Kontakt  Ruf mich an

Ähnliche Häuser

Skippervej 38a
Blåvand
Preis ab 1.882 EUR
Mehr sehen
Blåvandvej 14A, hus 5
Blåvand
Preis ab 332 EUR
Mehr sehen
Fyrgården 1
Blåvand
Preis ab 312 EUR
Mehr sehen
Midtbyvej 3
Blåvand
Preis ab 362 EUR
Mehr sehen