« Zurück

Modernes Ferienhaus in Hvide Sande zwischen Fjord und Meer

Katalognr.: F4055

Langsand 147, Hvide Sande

In dem gemütlichen Fischerstädtchen Hvide Sande zwischen dem Ringköbing Fjord und der Nordsee liegt dieses moderne, kleine Ferienhaus auf der Fjordseite der Stadt. Das im Jahr 2022 im Langsand 147 erbaute Sommerhaus bietet Platz für 2 Personen und überzeugt mit praktischer Ausstattung und idealer Ausgangslage für entspannte Ferientage.

Einladendes Ferienhaus für 2 Personen

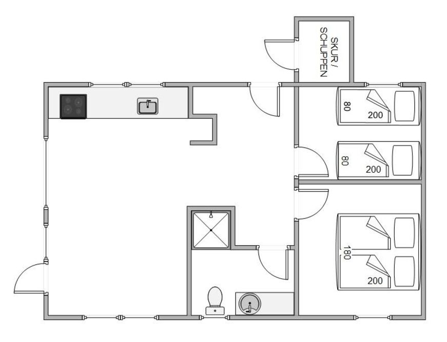
Das kleine, aber durchaus feine Ferienhäuschen in Hvide Sande bietet euch zwei Schlafzimmer und ein Badezimmer mit Fußbodenheizung sowie einen gemütlichen gestalteten Wohnbereich. Gerne darf euch in diesen Urlaub auch euer Hund begleiten, der im Ferienhaus auch herzlich willkommen ist und sich über ausgiebige Strandspaziergänge bestimmt freuen wird.

Die offene Wohnküche des Ferienhauses ist praktisch mit Geschirrspülmaschine und Induktionsherd ausgestattet und lädt euch zum Ausprobieren neuer Rezepte ein. Danach könnt ihr es euch in der Sofaecke bequem machen und bei einem spannenden Film den Ferientag ausklingen lassen. Besonders angenehm ist im Wohnbereich die Fußbodenheizung.

Schöne, offene Terrasse mit Gartenmöbeln

Im Außenbereich des Ferienhauses könnt ihr euch an der frischen Luft entspannen und den Alltagsstress hinter euch lassen ? hierzu stehen euch bequeme Gartenmöbel und Sonnenliegen zur Verfügung. 

Auch ein Grill kann am Ferienhaus für einen leckeren Grillabend genutzt werden. Nach einem kurzen Spaziergang zur Schleuse könnt ihr so den Abend entspannt auf der Terrasse ausklingen lassen.

Urlaub zwischen Nordsee und Fjord in Hvide Sande

Bekannt als kleines Fischerstädtchen lässt sich in Hvide Sande ein entspannter Urlaub verbringen. Im Zentrum befinden leckere Restaurants und gemütliche Cafés sowie kleinere Geschäfte für einen kleinen Einkaufsbummel. Von der Schleuse kann man ab und zu sogar Seehunde entdecken.

Für Tagesausflüge in die Umgebung lohnt sich ein Besuch in der Fjordstadt Ringköbing. Hier könnt ihr euch auf eine Shoppingtour begeben und durch die bunten, alten Gassen der Stadt schlendern. Wie wäre es zudem mit einem Besuch bei ?Naturkraft? ? hier könnt ihr eine Menge über die Kräfte der Natur erfahren.

Ausstattung

  4 Personen
  1 Haustiere erlaubt
  1000 m Abstand zum Kaufmann
  1200 m Abstand zum Strand
Geschirr-spüler
Nicht-Raucher

Weitere Ausstattung

Das Haus

  Grundstück: 200 m²
  Wohnfläche: 51 m²
  Baujahr: 2022
  Einkaufsmöglichkeiten: 1000 m
  Nordsee: 1200 m
  Personen: 4
  Schlafzimmer: 2
  Einzelbetten: 2
  Doppelbetten: 1
  Haustiere
  Waschmaschine
  Geschirr-spüler

Zimmer

Küche:
  Kühlschrank
  Ofen

Badezimmer:
  Badezimmer: 1

Unterhaltung

  Radio
  Deutsche Fernsehsender

Draussen

  Liegestühle
  Grill

Bedingungen

Bei Ankunft kannst du die Schlüssel ab 15 Uhr in unserem Büro abholen. Abreise ist spätestens um 10 Uhr bzw. 9 Uhr wenn die Endreinigung von uns unternommen wird.

Auf Karte

Haus buchen
Wochenkalender 2026
11
EUR
424
12
EUR
424
13
EUR
524
14
15
EUR
664
16
17
18
19
EUR
524
20
EUR
594
21
EUR
524
22
EUR
594
23
EUR
524
24
EUR
524
25
EUR
594
26
EUR
594
27
EUR
784
28
EUR
1.024
29
EUR
1.074
30
EUR
1.124
31
EUR
1.124
32
EUR
1.124
33
EUR
1.074
34
EUR
924
35
EUR
784
36
EUR
594
37
EUR
594
38
EUR
524
39
EUR
524
40
EUR
524
41
EUR
524
42
EUR
594
43
EUR
664
44
EUR
594
45
EUR
424
46
EUR
424
47
EUR
424
48
EUR
424
49
EUR
424
50
EUR
424
51
EUR
424
52
EUR
784
53
EUR
1.074

Dauer

Die gewählte Periode: KW
-
Preis: Haus buchen »
Kontakt  Ruf mich an

Ähnliche Häuser

Tornbjerrevej 4
Haurvig
Preis ab 1.084 EUR
Mehr sehen
Strandkrogvejen 38
Årgab
Preis ab 1.134 EUR
Mehr sehen
Bilbergsvej 87
Bjerregård
Preis ab 974 EUR
Mehr sehen
Havbjergevej 21
Haurvig
Preis ab 984 EUR
Mehr sehen