« Zurück

Modernes Aktivitätshaus für 8 Personen mit Badetonne

Katalognr.: D3061

Kr Madsens Vej 75, Haurvig

Im Kr Madsens Vej 75, im wunderschönen Feriengebiet Haurvig, liegt diese Perle von Ferienhaus, welches im Jahr 2022 erbaut wurde. Mit insgesamt 8 Personen könnt ihr in diesem Aktivitätshaus entspannte und erholsame Ferientage verbringen und die Urlaubszeit an der dänischen Westküste genießen. Gerne dürfen euch auch eure 2 Hunde mit auf die Reise begleiten.

Das moderne Ferienhaus überzeugt mit hochwertiger Ausstattung, unter anderem erwartet euch eine energiesparende Heizmethode in Form einer Wärmepumpe, sowie eine Badetonne und eine Außendusche auf der Terrasse und eine Sauna im Innenbereich. Die Außendusche steht von April bis November zur Verfügung.

Aktivitätsraum mit PlayStation und Tischtennis

Das schöne Ferienhaus ist mit modernster Einrichtung ausgestattet und sorgt für ein entspannendes Urlaubserlebnis an der dänischen Westküste. Für Familienzeit mit Spiel und Spaß gibt es einen Aktivitätsraum mit Tischtennis, wo ihr den Meister des Urlaubs erspielen könnt. 

Danach könnt ihr euch entspannt in die Couchecke zurückziehen und einen Filmabend genießen. Der knisternde Kaminofen im Wohnbereich spendet euch dabei eine angenehme Wärme. Ein leckeres Abendessen kann in der praktisch ausgestatten Küche zubereitet werden, hier gibt es u. A. einen Induktionsherd, eine Mikrowelle und eine Geschirrspülmaschine.

Wellnessmomente im Ferienhausurlaub mit Sauna und Badetonne

Nach einem ausgiebigen Strandspaziergang an der Nordsee könnt ihr euch in der hauseigenen Sauna wieder aufwärmen und einen Wellnessabend genießen. Danach könnt ihr den Sternenhimmel über Haurvig angenehm in der Badetonne auf der Terrasse beobachten und den Abend ausklingen lassen.

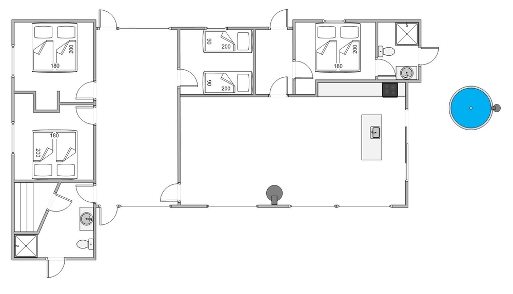
Danach geht es für die entspannten Schlummerstunden in die vier gemütlichen Schlafzimmer. Hier stehen euch drei Doppelbetten und zwei Einzelbetten zur Verfügung, damit ihr eure Batterien für den nächsten Ferientag wieder aufladen könnt. Für längere Aufenthalte sind die Waschmaschine und der Trockner im Ferienhaus auch sehr praktisch.

Urlaub zwischen Nordsee und Ringköbing Fjord

Auf der mit bequemen Gartenmöbeln ausgestatteten Terrasse, könnt ihr die frische Nordseeluft genießen und euch nach einem Sonnenbad unter der Außendusche abkühlen. Ein Grill auf der offenen, teilweise abgeschirmten Terrasse lädt zu einem leckeren Grillabend mit der ganzen Familie ein.

Für Ausflüge in die wunderschöne Umgebung lohnt sich natürlich ein Spaziergang zum Strand, der nur ca. 900m vom Ferienhaus entfernt liegt. Für Einkäufe und Restaurantbesuche könnt ihr die kleine Küstenstadt Hvide Sande besuchen.

Die Lademöglichkeit für das Elektroauto ist eine Ladestation, relevantes Kabel ist mitzubringen (Typ 2 Stecker).

Ausstattung

  8 Personen
  1 Haustiere erlaubt
  7000 m Abstand zum Kaufmann
  900 m Abstand zum Strand
Sauna
Geschirr-spüler
Nicht-Raucher

Weitere Ausstattung

Das Haus

  Grundstück: 1280 m²
  Wohnfläche: 129 m²
  Baujahr: 2022
  Einkaufsmöglichkeiten: 7000 m
  Nordsee: 900 m
  Personen: 8
  Schlafzimmer: 4
  Einzelbetten: 2
  Doppelbetten: 3
  Kinderstühle: 1
  Kinderbetten: 1
  Haustiere
  Holzofen
  Waschmaschine
  Geschirr-spüler
  Trockner

Zimmer

Küche:
  Kühlschrank
  Ofen
  Mikrowelle

Badezimmer:
  Badezimmer: 2
  Sauna

Unterhaltung

  Radio
  Deutsche Fernsehsender

Draussen

  Liegestühle
  Grill

Bedingungen

Bei Ankunft kannst du die Schlüssel ab 15 Uhr in unserem Büro abholen. Abreise ist spätestens um 10 Uhr bzw. 9 Uhr wenn die Endreinigung von uns unternommen wird.

Auf Karte

Haus buchen
Wochenkalender 2025
42
43
44
EUR
1.182
45
EUR
772
46
47
48
EUR
772
49
EUR
772
50
EUR
772
51
EUR
772
52

Dauer

Die gewählte Periode: KW
-
Preis: Haus buchen »
Kontakt  Ruf mich an

Ähnliche Häuser

Kr Madsens Vej 75
Haurvig
Preis ab 772 EUR
Mehr sehen
Bjerregårdsvej 91A
Bjerregård
Preis ab 1.062 EUR
Mehr sehen
Fyrmarken 237
Nr. Lyngvig
Preis ab 1.042 EUR
Mehr sehen
Humlegårdsvej 4G
Bjerregård
Preis ab 1.082 EUR
Mehr sehen