« Zurück

Schönes Ferienhaus mit Schwimmingpool und Whirlpool - für 8 Personen - in Henne Strand

Katalognr.: 40745

Kløvervej 9, Henne Strand

Soll euer nächster Urlaub viel Entspannung und Unterhaltung bieten? Dann ist dieses schöne Poolhaus am Kløvervej 9 in Henne Strand mit Platz für bis zu 8 Personen eine naheliegende Wahl! Das Ferienhaus, das im Jahr 2022 renoviert wurde, verfügt sowohl über einen Swimmingpool, einen Whirlpool als auch eine Sauna: hier besteht die Möglichkeit sich zu entspannen und unterhalten zu werden. Im Ferienhaus ist auch das Haustier im Urlaub herzlich willkommen. Das Ferienhaus lieg nur 800 Meter vom Strand und der nächsten Einkaufsmöglichkeit entfernt.

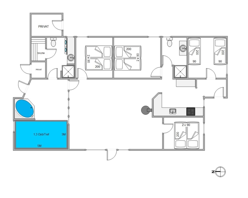
Poolraum mit Pool und Whirlpool

Eines der Highlights des Ferienhauses am Kløvervej 9 in Henne Strand ist der Poolraum, hier befindet sich der 15 Quadratmeter große Pool des Ferienhauses, in dem die Wasserliebhaber des Urlaubs sicherlich viele lustige und unterhaltsame Stunden verbringen werden.

Neben dem Swimmingpool bietet der Poolbereich auch einen wunderbaren Whirlpool, der zum Entspannen im schönen, warmen Wasser einlädt. Von hier aus könnt Ihr auch beobachten, wie die Wasserliebhaber spielen und sich im Schwimmbad vergnügen.

Gemütliche Einrichtung ? Badezimmer mit Sauna

Der große Treffpunkt im Ferienhaus ist das Familienzimmer, in dem Ihr euch zu schönen Mahlzeiten am Esstisch und guten Filmen im Fernsehen versammeln können ? Ihr könnt sogar eure Lieblingsfilme über Chromecast streamen. Der Kamin sorgt mit seinem Knistern im Hintergrund für eine wohlige Wärme.

Im Ferienhaus gibt es 2 Badezimmer mit Fußbodenheizung, und von einem der Badezimmer gibt es Zugang zur Sauna des Ferienhauses, wo Ihr während eueres Urlaubs viel Entspannung genießen könnt.

Das Ferienhaus bietet mit seinem 141 Quadratmetern 4 gute Schlafzimmer. In 2 der Schlafzimmer gibt es einen Doppelbett, während auf den restlichen 2 Schlafzimmern insgesamt 4 Einzelbetten sind.

Großes Naturgrundstück mit Schaukel

Das Ferienhaus am Kløvervej 9 in Henne befindet sich auf einem 1.600 Quadratmeter großen Naturgrundstück: hier im Außenbereich des Ferienhauses können sowohl Jung und Alt die sonnigen Tage des Urlaubs verbringen. Für die Kinder gibt es eine Schaukel, und während sie schaukeln, könnt Ihr einen guten Platz auf der Terrasse finden und euch in den Gartenmöbeln und Sonnenliegen zurücklehnen.

Euer Abendessen könnt Ihr im Freien zubereiten und genießen: im Haus steht ein Grill zur Verfügung

Schöne Lage mit nur 800 Metern zum Strand und Einkaufsmöglichkeiten

Das Ferienhaus hat eine schöne Lage in Henne Strand, und von hier aus sind es nur 800 Meter zum Strand und eurer nächsten Einkaufsmöglichkeit. In Henne Strand gibt es sowohl einen Supermarkt als auch mehrere Fachgeschäfte, in denen Ihr eure Einkäufe erledigen könnt.

Wenn Ihr einen Ausflug zum Strand machen möchtet, dauert es nicht lange, bis Ihr die kurze Strecke von nur 800 Metern zurückgelegt habt. Am Strand könnt Ihr einen langen Spaziergang genießen oder ein Bad in den blauen Wellen der Nordsee nehmen.

 

Ausstattung

  8 Personen
  1 Haustiere erlaubt
  800 m Abstand zum Kaufmann
  800 m Abstand zum Strand
  15 m Swimmingpool
Sauna
Geschirr-spüler
Nicht-Raucher

Weitere Ausstattung

Das Haus

  Grundstück: 1600 m²
  Wohnfläche: 141 m²
  Baujahr: 1993
  Renovierung: 2022
  Einkaufsmöglichkeiten: 800 m
  Nordsee: 800 m
  Personen: 8
  Schlafzimmer: 4
  Einzelbetten: 4
  Doppelbetten: 2
  Kinderstühle: 1
  Haustiere
  Holzofen
  Pool
  Waschmaschine
  Geschirr-spüler
  Trockner

Zimmer

Küche:
  Kühlschrank
  Ofen
  Mikrowelle

Badezimmer:
  Badezimmer: 2
  Sauna

Unterhaltung

  Internet
  DVD-Player
  Radio
  Deutsche Fernsehsender

Draussen

  Liegestühle
  Grill

Bedingungen

Bei Ankunft kannst du die Schlüssel ab 15 Uhr in unserem Büro abholen. Abreise ist spätestens um 10 Uhr bzw. 9 Uhr wenn die Endreinigung von uns unternommen wird.

Auf Karte

Haus buchen
Wochenkalender 2026
09
EUR
1.054
10
11
EUR
1.054
12
EUR
1.054
13
14
15
16
EUR
1.174
17
EUR
1.174
18
EUR
1.284
19
EUR
1.284
20
21
EUR
1.284
22
EUR
1.444
23
EUR
1.284
24
25
EUR
1.444
26
27
EUR
1.854
28
EUR
2.404
29
EUR
2.514
30
31
EUR
2.624
32
EUR
2.624
33
EUR
2.514
34
EUR
2.174
35
36
37
38
39
40
EUR
1.284
41
42
43
44
EUR
1.444
45
EUR
1.054
46
EUR
1.054
47
EUR
1.054
48
EUR
1.054
49
50
51
52
EUR
1.854
53

Dauer

Die gewählte Periode: KW
-
Preis: Haus buchen »
Kontakt  Ruf mich an

Ähnliche Häuser

Strandvejen 396
Henne Strand
Preis ab 424 EUR
Mehr sehen
Fuutvej 34
Henneby
Preis ab 434 EUR
Mehr sehen
Arvevej 8
Henne Strand
Preis ab 434 EUR
Mehr sehen
Strandvejen 268
Henneby
Preis ab 414 EUR
Mehr sehen