« Zurück

Exklusives Ferienhaus mit Meerblick in Henne Strand - 30 m Strand

Katalognr.: 40821

Klitvej 23, Henne Strand

Ihr legt Wert auf Qualität, Design und liebt das Besondere? Dann ist dieses wunderschöne Haus im Klitvej 23 genau das richtige Ferienhaus für euch! Die Lage in erster Reihe sowie der Blick über die Dünenlandschaft und direkt auf das Meer sind einfach traumhaft ? ihr werdet es lieben. Hier wird der Familienurlaub oder ein Urlaub mit Freunden zu etwas ganz Besonderem.

Qualitativ hochwertige Ausstattung in traumhafter Lage

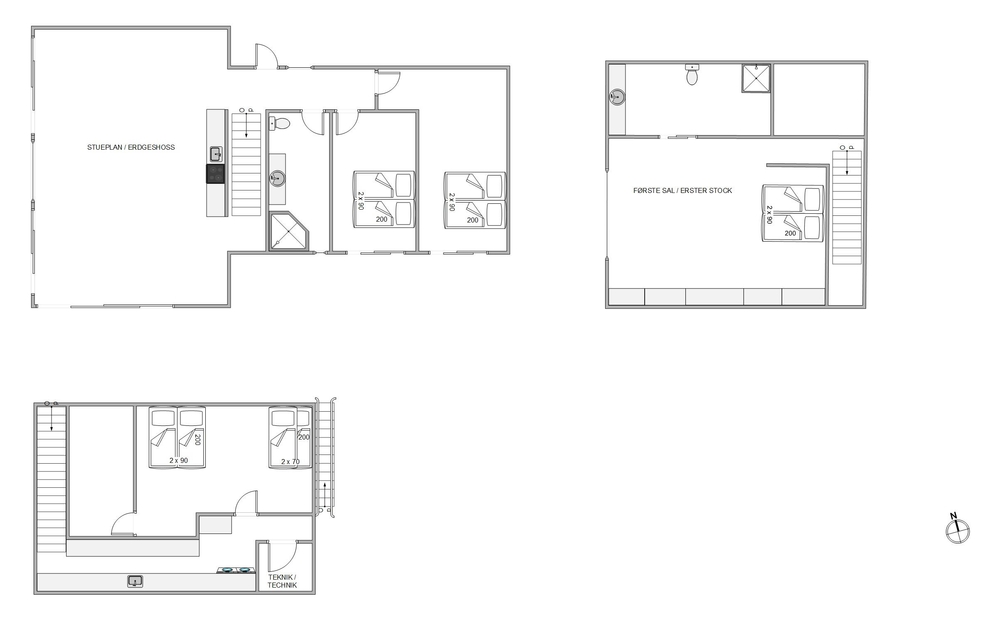
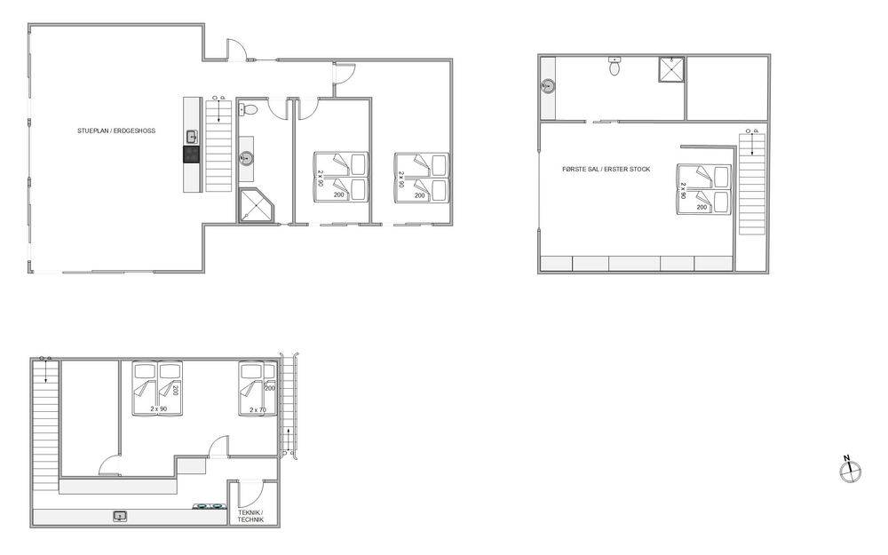
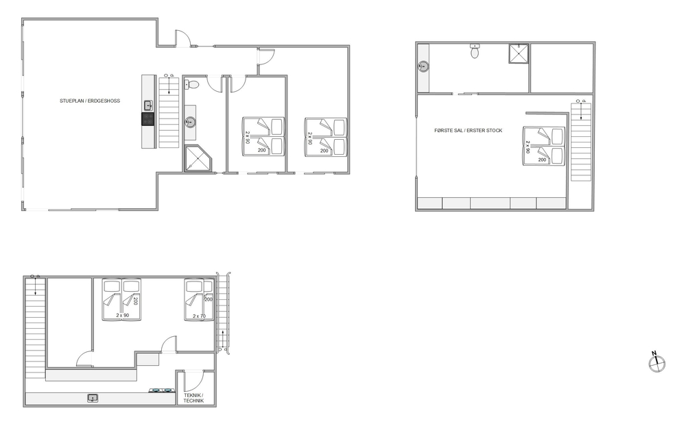
Dieses auf einer Düne gebaute Haus, besticht sowohl durch seine qualitativ hochwertige Ausstattung, fantastische Lage als auch gut durchdachte Aufteilung der Räumlichkeiten. Auf insgesamt 180 Quadratmetern habt ihr jede Menge Platz, sodass hier sehr gut bis zu 10 Personen urlauben und eine schöne Zeit miteinander verbringen können.

Ein Schlafzimmer mit angrenzendem Badezimmer liegt im Obergeschoss des Hauses und von hier habt ihr eine sagenhafte Panoramaaussicht über die Dünenlandschaft bis hin zum Meer. Es ist einfach herrlich, hier aufzuwachen und den Tag mit dieser tollen Aussicht zu beginnen!

Alle der insgesamt 3 Schlafzimmer sind mit bequemen Doppelbetten ausgestattet und versprechen traumhafte Nächte. Ein Zimmer im Keller ist eingerichtet wie ein Familienraum, mit dobbeltbett und Etagebetten, mit Fernseher.  

Der durch die große Fensterfront helle und freundliche Wohnbereich ist ebenfalls sehr geschmackvoll und durchdacht eingerichtet. In der offenen und wohnlichen Küche lässt es sich gut leckere Gerichte zubereiten ? der große Essbereich lädt zu vielen, gemütlichen Mahlzeiten ein ? und dann mit diesem herrlichen Ausblick!

Schöne, befestigte und teilweise überdachte Terrassen

Natürlich könnt ihr es euch auch einfach auf der tollen Terrasse bequem machen ? auch hier ist der Ausblick einfach nur überwältigend! Das Rauschen der Wellen wird euch begleiten, der herrlich breite Sandstrand liegt ja auch nur einen Katzensprung entfernt ? nur 30 Meter sind bis zum Strand zu bewältigen.

Selbstverständlich stehen euch hier Gartenmöbel sowie ein Grill bereit. Macht es euch also einfach bequem, genießt diese privilegierte Lage und lasst euch von eurem Grillmeister ordentlich kulinarisch verwöhnen.

Ein festes Ritual solltet ihr einplanen ? den Sonnenuntergang! Immer wieder ein überwältigendes Erlebnis, wenn der Himmel in den schönsten Farben leuchtet und die Sonne im Meer verschwindet.

Henne Strand ? beliebter Ferienort an der Westküste

Henne Strand ist der Ort für einen Urlaub an der dänischen Nordseeküste! Hier findet ihr nicht nur eine tolle Infrastruktur mit Supermarkt und zahlreichen Boutiquen, sondern auch jede Menge Restaurants und gemütliche Cafés.

Wenn ihr also auch einmal außer Haus essen möchtet ist dies hier sehr gut möglich, ohne weit fahren zu müssen. Mit einer Entfernung von nur knappen 200 Metern bis zum Zentrum von Henne Strand habt ihr den Vorteil, euer Auto einfach in der Garage stehenlassen zu können und gemütlich zu Fuß durch den quirligen Ort zu schlendern. Ganz sicher werdet ihr vom Flair bezaubert sein!

Ausstattung

  10 Personen
  1 Haustiere erlaubt
  200 m Abstand zum Kaufmann
  30 m Abstand zum Strand
Geschirr-spüler
Nicht-Raucher

Weitere Ausstattung

Das Haus

  Grundstück: 1533 m²
  Wohnfläche: 188 m²
  Baujahr: 2018
  Einkaufsmöglichkeiten: 200 m
  Nordsee: 30 m
  Meerblick
  Personen: 10
  Schlafzimmer: 4
  Doppelbetten: 4
  Etagenbett: 2
  Kinderstühle: 1
  Kinderbetten: 1
  Haustiere
  Waschmaschine
  Geschirr-spüler
  Trockner

Zimmer

Küche:
  Kühlschrank
  Ofen
  Mikrowelle

Badezimmer:
  Badezimmer: 2

Unterhaltung

  Internet
  Radio
  Deutsche Fernsehsender

Draussen

  Liegestühle
  Grill

Bedingungen

Bei Ankunft kannst du die Schlüssel ab 15 Uhr in unserem Büro abholen. Abreise ist spätestens um 10 Uhr bzw. 9 Uhr wenn die Endreinigung von uns unternommen wird.

Auf Karte

Haus buchen
Wochenkalender 2026
05
EUR
2.244
06
EUR
2.244
07
EUR
2.544
08
EUR
2.244
09
EUR
2.244
10
EUR
2.244
11
EUR
2.244
12
EUR
2.244
13
EUR
2.814
14
EUR
3.584
15
EUR
3.584
16
EUR
2.544
17
EUR
2.544
18
EUR
2.814
19
20
EUR
3.204
21
EUR
2.814
22
EUR
3.204
23
EUR
2.814
24
EUR
2.814
25
EUR
3.204
26
EUR
3.204
27
EUR
4.194
28
EUR
5.534
29
EUR
5.814
30
EUR
6.264
31
EUR
6.264
32
EUR
6.264
33
EUR
5.814
34
EUR
4.974
35
EUR
4.194
36
EUR
3.204
37
EUR
3.204
38
EUR
2.814
39
EUR
2.814
40
EUR
2.814
41
EUR
2.814
42
EUR
3.204
43
EUR
3.584
44
EUR
3.204
45
EUR
2.244
46
EUR
2.244
47
EUR
2.244
48
EUR
2.244
49
EUR
2.244
50
EUR
2.244
51
EUR
2.244
52
EUR
4.194
53
EUR
5.814

Dauer

Die gewählte Periode: KW
-
Preis: Haus buchen »
Kontakt  Ruf mich an

Ähnliche Häuser

Gejlbjergvej 68
Henne Strand
Preis ab 784 EUR
Mehr sehen
Musvågevej 13
Henne Strand
Preis ab 794 EUR
Mehr sehen
Hjelmevej 37
Henne Strand
Preis ab 874 EUR
Mehr sehen
Hovgårdsvej 3
Henneby
Preis ab 844 EUR
Mehr sehen