« Zurück

Schönes Sommerhaus mit Terrasse und gemütlichem Wintergarten

Katalognr.: B2576

Kirksvej 7, Bjerregård

Dieses lichtdurchflutete Sommerhaus wurde im Jahr 2022 renoviert und hat einiges zu bieten. Hier findest du immer ein schönes Plätzchen zum Entspannen, egal bei welchem Wetter. Ob auf der südlichen, teilweise überdachten Terrasse oder in dem schönen Wintergarten, hier findet jeder seinen Lieblingsplatz.

Abends könnt ihr euch bequem vor den Kamin kuscheln oder die Sauna zum Ausspannen nutzen. In den 3 Schlafräumen finden 6 Personen Platz und auch 1 Hund ist in diesem Ferienhaus herzlich Willkommen. Zwischen Fjord und Meer gelegen, seid ihr hier mitten in der Natur und habt es trotzdem nicht weit bis zum nächsten Kaufmann.

Helles und gemütliches Ferienhaus mit Kamin und großzügigem Wintergarten

Dieses typisch skandinavische Sommerhaus überzeugt durch seine gemütliche Einrichtung und den schönen Wintergarten, bei dem du bei jedem Wetter eine hyggelige Atmosphäre genießen kannst. Das schöne Rasengrundstück lädt zum Fußballspielen oder Wikingerschach ein. Hier kann man sich herrlich austoben.

Das klassische Ferienhaus im Kirksvej 7 bietet viele tolle Annehmlichkeiten, die zu einem gelungenen Urlaub beitragen. Der große und helle Wohnbereich mit offener Küche und Essecke bietet viel Platz für einen schönen Abend vor dem Kamin oder für einen Spieleabend mit der Familie. In der Küche findest du natürlich einen Geschirrspüler und auch eine Waschmaschine sowie ein Trockner sind in dem Ferienhaus vorhanden.

Mit der stromsparenden Wärmepumpe bringst du wohlige Wärme in das gemütliche Sommerhaus. Das Badezimmer ist außerdem mit einer Fußbodenheizung ausgestattet. In der Sauna kannst du dich zusätzlich nach einem schönen Tag an der dänischen Westküste entspannen.

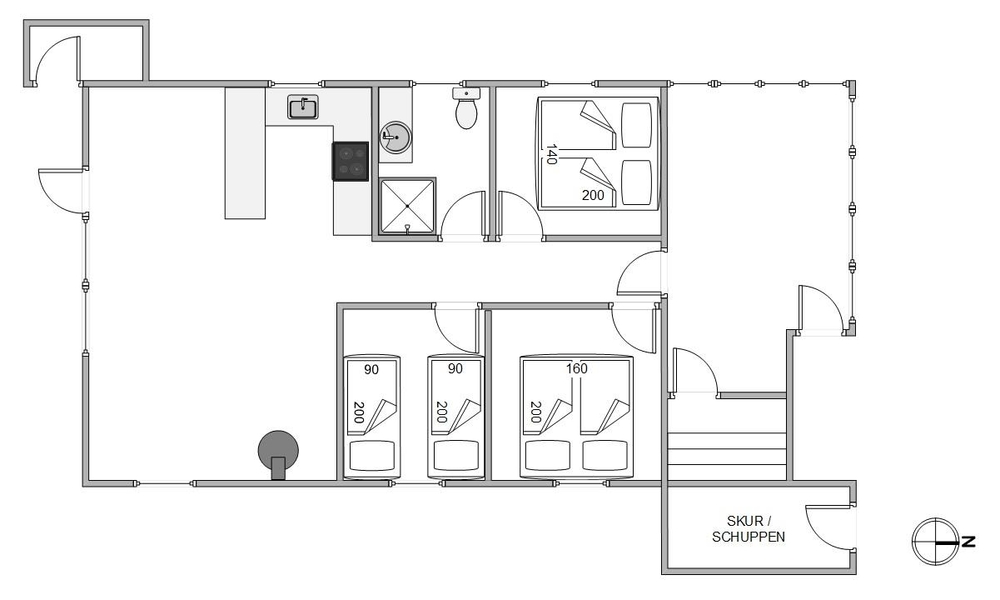
Hier findest du genug Platz und Schlafmöglichkeiten für 6 Personen. Dazu stehen euch 2 Schlafzimmer mit einem Doppelbett, sowie ein Schlafzimmer mit 2 Einzelbetten zur Verfügung. In den bequemen Betten könnt ihr euch gut erholen und neue Kraft für den nächsten Tag tanken.

Rund um das typisch dänische Ferienhaus findest du, für jedes Wetter passend, eine schöne Ecke zum Entspannen. Sei es die teilweise überdachte, geschlossene Südterrasse, der Wintergarten oder eine der kleinen Sitzecken. Hier kannst du deinen Kindern beim Spielen im Sandkasten oder Schaukeln zuschauen oder einfach nur die Seele baumeln lassen. Für schöne Stunden draußen, sorgen gemütliche Gartenmöbel und auch ein Grill darf natürlich nicht fehlen.

Mitten in der Natur und trotzdem alles was man braucht

Wenn du einen Ort der Entspannung, mitten in der Natur suchst, bist du hier genau richtig. Dieses schöne Ferienhaus liegt am südlichen Ende des Ringkøbingfjords und auch zum Meer der dänischen Westküste ist es nicht weit. Die Umgebung lädt zu ausgedehnten Spaziergängen und Radtouren in den Dünen oder in der Heide ein.

Die nächste Einkaufsmöglichkeit, für die frischen Brötchen am Morgen, befindet sich gerade einmal 50 m entfernt, so dass man sich perfekt mit allem nötigen versorgen kann. Auch die nächstgrößeren Städte Hvide Sande und Nørre Nebel haben zahlreiches zu bieten. Hier findest du Restaurants und Cafés und auch einige schöne Geschäfte. Auch für Wassersport- und Angelbegeisterte bieten sich hier viele Möglichkeiten in der näheren Umgebung.

Ausstattung

  6 Personen
  1 Haustiere erlaubt
  50 m Abstand zum Kaufmann
  1200 m Abstand zum Strand
Sauna
Geschirr-spüler
Nicht-Raucher

Weitere Ausstattung

Das Haus

  Grundstück: 1360 m²
  Wohnfläche: 75 m²
  Baujahr: 1975
  Renovierung: 2022
  Einkaufsmöglichkeiten: 50 m
  Nordsee: 1200 m
  Personen: 6
  Schlafzimmer: 3
  Einzelbetten: 2
  Doppelbetten: 2
  Haustiere
  Holzofen
  Waschmaschine
  Geschirr-spüler
  Trockner

Zimmer

Küche:
  Kühlschrank
  Ofen
  Mikrowelle

Badezimmer:
  Badezimmer: 1
  Sauna

Unterhaltung

  Internet
  CD-Player
  Radio
  Deutsche Fernsehsender

Draussen

  Liegestühle
  Grill

Bedingungen

Bei Ankunft kannst du die Schlüssel ab 15 Uhr in unserem Büro abholen. Abreise ist spätestens um 10 Uhr bzw. 9 Uhr wenn die Endreinigung von uns unternommen wird.

Auf Karte

Haus buchen
Wochenkalender 2026
07
EUR
394
08
09
EUR
354
10
11
12
13
14
15
16
17
18
EUR
434
19
EUR
434
20
EUR
504
21
22
23
24
25
EUR
504
26
EUR
504
27
EUR
684
28
29
30
31
32
33
34
35
36
EUR
504
37
38
39
EUR
434
40
EUR
434
41
EUR
434
42
43
44
45
EUR
354
46
47
48
49
50
51
52
EUR
684
53

Dauer

Die gewählte Periode: KW
-
Preis: Haus buchen »
Kontakt  Ruf mich an

Ähnliche Häuser

Tingodden 100
Årgab
Preis ab 734 EUR
Mehr sehen
Tingodden 377
Årgab
Preis ab 744 EUR
Mehr sehen
Engsvingelvej 12
Årgab
Preis ab 584 EUR
Mehr sehen
Tingodden 217
Årgab
Preis ab 774 EUR
Mehr sehen