« Zurück

Älteres Ferienhaus mit Steinfußboden im Nurdach-Stil

Katalognr.: K6090

Hybenvej 64, Lodbjerg Hede

Auf einem idyllischen und von Bäumen und Sträuchern umgebenen Grundstück, in unmittelbarer Nähe zum Angelteich in Lodbjerg Hede, findet ihr dieses ältere Ferienhaus. Platz ist hier für 4 Personen und einen Hund. Das Haus wurde im Nurdach Haus Stil gebaut und mit rustikalem Steinfußboden im Wohnbereich ausgestattet.

Holzofen und Wärmepumpe im Wohnzimmer

Das Ferienhaus ist ein älteres Haus, welches trotz einer schlichten und einfachen Ausstattung über ein wenig Komfort in Form von Geschirrspüler und Waschmaschine verfügt. Der Einrichtungsstil des Hauses ist eher rustikal gehalten, welches sich in Form eines Steinfußbodens im gesamten Wohnbereich widerspiegelt.

Für wohlige Wärme sorgt ein Holzofen im offenen Wohnbereich, alternativ dazu könnt ihr die kostensparende Wärmepumpe nutzen, die das ganze Jahr über für eine angenehme Raumtemperatur sorgen wird.

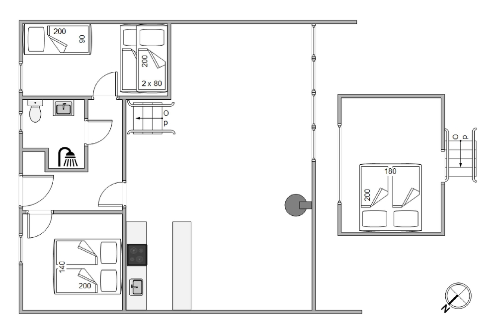
Das Ferienhaus verfügt über 3 Schlafzimmer, wovon eines über eine steile und offene Treppe vom Wohnraum aus zu erreichen ist und zwei weitere Schlafräume im Erdgeschoss. Das kleine und praktische Badezimmer mit einer Fußbodenheizung ausgestattet und kalte Füße am morgen bleiben aus.

Terrasse mit Blick ins Grüne im Hybenvej 64

Von der Terrasse aus habt ihr einen herrlichen Blick in die grüne Natur von Lodbjerg Hede. Von eurer Ferienadresse im Hybenvej 64 lassen sich wunderbare Spaziergänge durch die Natur unternehmen.

Wer gut zu Fuß ist, kann sogar einen Spaziergang zur knapp 1,4 km entfernten Nordsee unternehmen, um sich dort den frischen Wind um die Nase wehen zulassen oder um ein Bad in der frischen Nordsee zu nehmen.

* 2026 wird das Etagenbett entfernt. 

Ausstattung

  6 Personen
  1 Haustiere erlaubt
  4000 m Abstand zum Kaufmann
  1400 m Abstand zum Strand
Geschirr-spüler
Nicht-Raucher

Weitere Ausstattung

Das Haus

  Grundstück: 2000 m²
  Wohnfläche: 85 m²
  Baujahr: 1975
  Renovierung: 2009
  Einkaufsmöglichkeiten: 4000 m
  Nordsee: 1400 m
  Personen: 6
  Schlafzimmer: 3
  Einzelbetten: 1
  Doppelbetten: 2
  Etagenbett: 1
  Haustiere
  Holzofen
  Waschmaschine
  Geschirr-spüler

Zimmer

Küche:
  Kühlschrank
  Ofen
  Mikrowelle

Badezimmer:
  Badezimmer: 1

Unterhaltung

  Internet
  Deutsche Fernsehsender

Draussen

  Grill

Bedingungen

Bei Ankunft kannst du die Schlüssel ab 15 Uhr in unserem Büro abholen. Abreise ist spätestens um 10 Uhr bzw. 9 Uhr wenn die Endreinigung von uns unternommen wird.

Auf Karte

Haus buchen
Wochenkalender 2025
43
44
EUR
392
45
46
47
48
49
50
51
52

Dauer

Die gewählte Periode: KW
-
Preis: Haus buchen »
Kontakt  Ruf mich an

Ähnliche Häuser

Lodbergsvej 38K
Søndervig
Preis ab 522 EUR
Mehr sehen
Krogen 3
Houvig
Preis ab 962 EUR
Mehr sehen
Nordsøvej 248
Søndervig
Preis ab 582 EUR
Mehr sehen
Nordsøvej 60
Søndervig
Preis ab 492 EUR
Mehr sehen