« Zurück

Sommerhaus mit Panoramablick in Henne Strand

Katalognr.: 40794

Hjelmevej 98A, Henne Strand

Möchtet Ihr euch im Urlaub voll und ganz entspannen, und zugleich die beeindruckende Natur der Nordsee genießen? Gelegen auf einem malerischen hügeligen Grundstück am Hjelmevej 98A in Henne Strand bietet dieses strandnahe Sommerhaus ein ideales Urlaubsdomizil für euch, die zusammen mit der Familie oder 2-3 Freundespaaren gerne den Urlaub in Henne Strand verbringen möchten.

Panoramablick über Dünenlandschaft

Schon beim Betreten dieses gemütlichen Sommerhauses werdet Ihr umgehend die Urlaubsstimmung spüren. Die schönen Fenster lassen nicht nur das schöne Licht herein ? die Fenster ermöglichen auch die einzigartige Umgebung der Dünen ganz nah erleben zu können. Solltet Ihr Glück haben, könnt Ihr Wild und Vögel aus nächster Nähe beobachten.

Auch die hellen, holzverkleideten Wände, die geneigten Decken und fröhlichen Farben auf den Bildern vermitteln sofort eine schöne Urlaubsatmosphäre. Die Wärme des Brennofens könnt Ihr sowohl in der Küche als auch im Wohnzimmer, das eine Stufe niedriger liegt, genießen, wo Ihr euch im bequemen Sofa entspannen oder in einem guten Sessel zurückziehen könnt. Außer dem Brennofen gibt es eine energiesparende Wärmepumpe, die dafür sorgt eine angenehme Temperatur in allen Räumen geniessen zu können.

In der Küche werdet Ihr alles finden, was Ihr brauchet um euch gegenseitig mit köstlichen, hausgemachten Mahlzeiten zu verwöhnen. Mit Geschirrspüler, Mikrowelle und einem Gefrierfach von 80L ist der Küche gut ausgestattet.

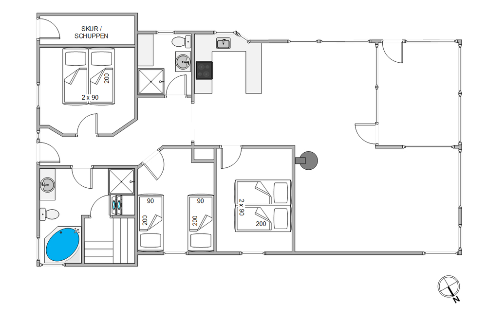
Dieses Sommerhaus bietet 6 Schlafplätze, verteilt über 3 Schlafzimmer.  In 2 Schlafzimmern sind 2 bequeme Doppelbetten angeordnet, und im dritten Schlafzimmer gibt es 2 Einzelbetten.

Wellness mit Spa und Sauna

In diesem schönen Sommerhaus gibt 2 geräumige Badezimmer, beide mit Fußbodenheizung. Im großen Badezimmer befindet sich ein Whirlpool, wie auch eine Sauna ? perfekt für einen Wellnessstunde.

Eine Waschmaschine und ein Trockner stehen euch zur Verfügung, eure Handtücher und sonstige Wäsche, während eures Urlaub waschen zu können.

Die Endreinigung dieses Sommerhauses ist im Preis inbegriffen, so könnt Ihr bis zur Abreise voll entspannen.  

Terrasse mit Dünenblick  

Die optimal angelegte Terrasse bietet sowohl einen geschützten Teil, wo Ihr euch sonnen und privat fühlen könnt, als auch einen offenen Teil mit Sitzgelegenheiten, wo Ihr den schönsten Blick auf das Naturgrundstück und die Dünenlandschaft habt. Auch könnt Ihr den Grill zum Abendessen anzünden und hier gemeinsam ein leckeres Grillgericht genießen.

Mit nur 250 Metern geht es mit einem kurzen Spaziergang zum Strand, wo Ihr tagsüber die tosenden Wellen der Nordsee oder abends den Sonnenuntergang genießen könnt: dies ist jedes Mal ein Erlebnis. Ihr könnt auf eine Düne oder an den Strand gehen, um den Sonnenuntergang in der Nordsee zu genießen ? es ist ein Erlebnis ? jedes Mal.

Badeort Henne Strand

Vom schönen Sommerhaus am Hjelmevej 98A aus sind es nur 500 Meter zur Ortsmitte von Henne Strand, ein populärer Badeort mit einer lebhaften Einkaufsstraße. Hier gibt es eine abwechslungsreiche Auswahl an Geschäften, Eishäusern, Cafés und Restaurants.

Solltet Ihr euch für die Natur interessieren, dann sind der in der Nähe gelegene Blåbjerg Plantage und Filsø einen Besuch wert: hier gibt es mehrere Wander- und Radwege, wo Ihr aktiv die einzigartige Natur der Gegend entdecken könnt.

Ausstattung

  6 Personen
   Haustiere nicht erlaubt
  500 m Abstand zum Kaufmann
  250 m Abstand zum Strand
Sauna
Geschirr-spüler
Nicht-Raucher

Weitere Ausstattung

Das Haus

  Grundstück: 1600 m²
  Wohnfläche: 115 m²
  Baujahr: 2015
  Einkaufsmöglichkeiten: 500 m
  Nordsee: 250 m
  Meerblick
  Personen: 6
  Schlafzimmer: 3
  Einzelbetten: 2
  Doppelbetten: 2
  Kinderstühle: 1
  Kinderbetten: 1
  Holzofen
  Waschmaschine
  Geschirr-spüler
  Trockner

Zimmer

Küche:
  Kühlschrank
  Ofen
  Mikrowelle

Badezimmer:
  Badezimmer: 2
  Sauna

Unterhaltung

  DVD-Player
  Radio
  Deutsche Fernsehsender

Draussen

  Liegestühle
  Grill

Bedingungen

Bei Ankunft kannst du die Schlüssel ab 15 Uhr in unserem Büro abholen. Abreise ist spätestens um 10 Uhr bzw. 9 Uhr wenn die Endreinigung von uns unternommen wird.

Auf Karte

Haus buchen
Wochenkalender 2026
11
12
13
14
15
16
17
18
19
EUR
1.334
20
21
22
23
24
25
26
27
EUR
1.814
28
29
30
31
32
33
EUR
2.464
34
35
EUR
1.814
36
37
38
39
40
EUR
1.334
41
42
43
44
45
46
47
48
49
50
51
52
53

Dauer

Die gewählte Periode: KW
-
Preis: Haus buchen »
Kontakt  Ruf mich an

Ähnliche Häuser

Strandvejen 396
Henne Strand
Preis ab 424 EUR
Mehr sehen
Fuutvej 34
Henneby
Preis ab 434 EUR
Mehr sehen
Arvevej 8
Henne Strand
Preis ab 434 EUR
Mehr sehen
Kærvej 31
Henneby
Preis ab 444 EUR
Mehr sehen