« Zurück

Gemütliches Ferienhaus für 4 Personen mit Außendusche

Katalognr.: 40737

Hedelærkevej 3A, Henne Strand

Dieses Ferienhaus auf Hedelærkevej 3A in Henne Strand ist eine naheliegende Wahl für einen Urlaub für eine kleine Familie oder ein Paar, dass in der Nähe der Nordsee Urlaub machen möchte. Gemütlich eigerichtet, nur 600 Meter von der Nordsee entfernt und mit Platz für bis zu 4 Personen, könnt Ihr hier einen wunderschönen Urlaub verbringen. Das Ferienhaus befindet sich auf einem abgelegenen 1.430 m2 großen naturumgebenen Grundstück, mit einer schönen Terrasse und einer Außendusche im Außenbereich.

Gemütliche Einrichtung mit Holzofen

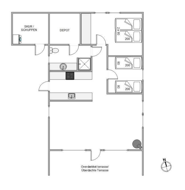
Beim Eintritt in Hedelærkevej 3A werdet Ihr sofort von der gemütlichen Einrichtung begrüßt, und ihr werdet euch hier zweifellos schnell wohl fühlen. Im Ferienhaus gibt es 1 Badezimmer und 2 Schlafzimmer mit insgesamt 1 Doppelbett und 2 Einzelbetten.

Das Herz des Ferienhauses ist das Familienzimmer, das die Küche, das Wohnzimmer und den Essbereich des Hauses vereint. Das Familienzimmer ist die Kulisse für viele großartige Urlaubsmomente, die mit der schönen Wärme und dem Knistern vom Holzofen vervollständigt wird.

Neben dem Holzofen gibt es auch eine energiefreundliche Wärmepumpe im Ferienhaus, die dafür sorgt, dass es angenehme Temperaturen im Ferienhaus gibt. Eine Spülmaschine sowie auch eine Waschmaschine sind im Ferienhaus da, um euch bei der praktischen Hausarbeit während eures Urlaubes zu helfen.

Die Sonne genießen auf der Terrasse

Im Außenbereich des Ferienhauses befindet sich eine Terrasse, wo Ihr die sonnigen Tage eures Urlaubs genießen könnt. Hier könnt Ihr mit Sicherheit einen guten Sonnenfleck finden, wo Ihr euch in Gartenmöbeln und Sonnenliegen zurücklehnen könnt, während Ihr in der Sonne und an der frischen Luft entspannt. Abends könnt Ihr euch zu einem köstlichen Abendessen auf der Terrasse versammeln, das Ihr auf dem Grill zubereiten könnt.

Auf der Terrasse gibt es auch eine Außendusche*, unter der Ihr euch nach einem Strandspaziergang abspülen könnt, so dass Ihr euch den letzten Sand von den Zehen waschen könnt.

Großartige Lage in Henne Strand mit nur 600 Metern zum Strand

Mit der Urlaubsadresse am Hedelærkevej 3A in Henne Strand liegt dieses Ferienhaus in einer wunderschönen Lage, mit nur 600 Meter zum schönen Strand und der schönen Nordsee. Hier könnt Ihr an einem warmen und sonnigen Urlaubstag lange Spaziergänge am Strand entlang unternehmen oder ein frisches Bad im Wasser nehmen.

Die nächsten Einkaufsmöglichkeit ist nur 650 Meter vom Ferienhaus entfernt. Henne Strand bietet sowohl einen Supermarkt, als auch mehrere Fachgeschäfte, in denen Ihr während eueres Urlaubs einkaufen könnt.

* Die Außendusche ist vom 01. April bis 31. Oktober nuztbar

Ausstattung

  4 Personen
   Haustiere nicht erlaubt
  650 m Abstand zum Kaufmann
  600 m Abstand zum Strand
Geschirr-spüler
Nicht-Raucher

Weitere Ausstattung

Das Haus

  Grundstück: 1430 m²
  Wohnfläche: 68 m²
  Baujahr: 1984
  Renovierung: 2005
  Einkaufsmöglichkeiten: 650 m
  Nordsee: 600 m
  Personen: 4
  Schlafzimmer: 2
  Einzelbetten: 2
  Doppelbetten: 1
  Holzofen
  Waschmaschine
  Geschirr-spüler

Zimmer

Küche:
  Kühlschrank
  Ofen

Badezimmer:
  Badezimmer: 1

Unterhaltung

  Internet
  Radio
  Deutsche Fernsehsender

Draussen

  Liegestühle
  Grill

Bedingungen

Bei Ankunft kannst du die Schlüssel ab 15 Uhr in unserem Büro abholen. Abreise ist spätestens um 10 Uhr bzw. 9 Uhr wenn die Endreinigung von uns unternommen wird.

Auf Karte

Haus buchen
Wochenkalender 2026
06
EUR
384
07
EUR
434
08
EUR
384
09
EUR
384
10
11
12
EUR
384
13
14
15
16
EUR
434
17
18
EUR
474
19
EUR
474
20
21
22
23
24
EUR
474
25
26
27
EUR
694
28
29
30
31
32
33
34
35
36
37
EUR
534
38
EUR
474
39
40
EUR
474
41
EUR
474
42
43
EUR
594
44
EUR
534
45
EUR
384
46
EUR
384
47
EUR
384
48
EUR
384
49
EUR
384
50
EUR
384
51
EUR
384
52
53

Dauer

Die gewählte Periode: KW
-
Preis: Haus buchen »
Kontakt  Ruf mich an

Ähnliche Häuser

Hennebysvej 42D
Henneby
Preis ab 664 EUR
Mehr sehen
Rævestien 12
Henneby
Preis ab 634 EUR
Mehr sehen
Fasanvej 14
Henne Strand
Preis ab 784 EUR
Mehr sehen
Porsevej 31
Henne Strand
Preis ab 804 EUR
Mehr sehen