« Zurück

Ferienhaus mit toller Aussicht und Sauna in Skodbjerge

Katalognr.: C3628

Havvej 10, Skodbjerge

Entdeckt die idyllische Lage eures Ferienhauses am Havvej 10, eingebettet in die Dünenlandschaft von Skodbjerge, an der dänischen Westküste. Mit einer Wohnfläche von 83 m² bietet dieses Ferienhaus Platz für bis zu sechs Personen und ist perfekt für einen entspannten Urlaub geeignet. Die Sauna lädt euch ein, nach einem erlebnisreichen Tag zu entspannen.

Gemütliches Ferienhaus im Havvej 10 ? Innenbereich mit Komfort & Charme

Der Innenbereich des Ferienhauses besticht durch einen offenen Wohnbereich mit Dachschrägen, der mit viel Holz und einer einfachen, aber charmanten Einrichtung gestaltet ist. Entspannt vor dem Fernseher mit DVD-Player oder genießt die wohlige Wärme des Kaminofens.

Die energiesparende Wärmepumpe sorgt für eine angenehme Temperatur zu jeder Jahreszeit, während die offene Küche u. a. mit Spülmaschine und 80 Liter Gefriermöglichkeit ausgestattet ist. Letzteres wird besonders die Angler unter euch freuen, denn hier ist Platz für den einen oder anderen frisch gefangenen Fisch.

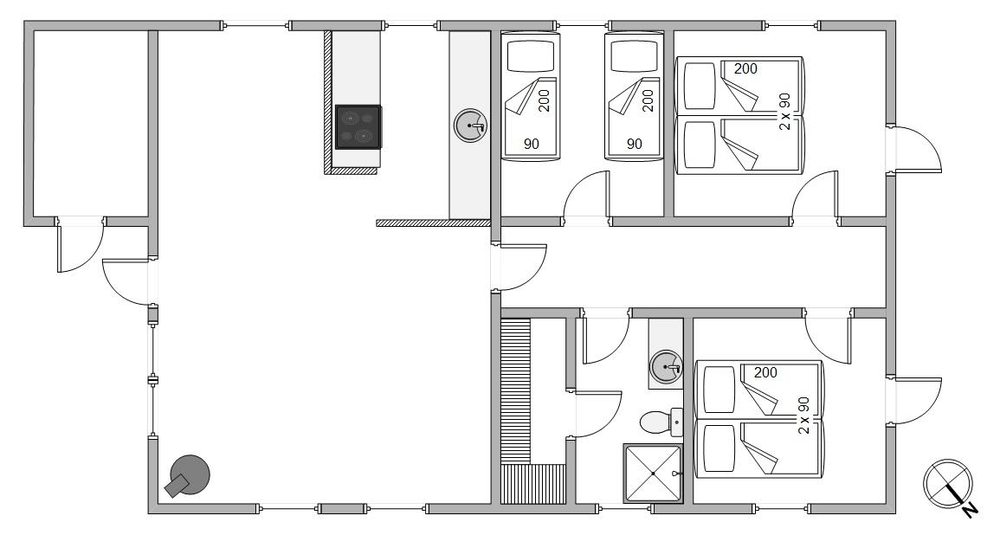
Das einfache Tageslichtbad bietet Fußbodenheizung, eine Dusche und direkten Zugang zur Sauna, in der ihr ausgiebige Saunagänge genießen könnt. Perfekt, um die Seele baumeln zu lassen. Die Schlafzimmeraufteilung umfasst 2 Zimmer mit Doppelbetten und 1 kleines Zimmer mit zwei Einzelbetten. Hier könnt ihr euch gut aufteilen.

Teils überdachte Terrasse mit schöner Aussicht über die Dünenlandschaft

Das Ferienhaus liegt auf einem hügeligen, 2847 m² großen Naturgrundstück, das euch in die malerische Dünenlandschaft eintauchen lässt. Auf der teils überdachten Terrasse könnt ihr bei einem guten Buch entspannen oder die schöne Aussicht über die Dünen genießen. Der Grill und die guten Gartenmöbel sowie Sonnenliegen laden zu gemeinsamen Mahlzeiten und geselligen Abenden im Freien ein.

Abwechslung und Entspannung zwischen Nordsee und Fjord

Das Gebiet Skodbjerge, auf der Landenge Holmsland Klit, bietet zahlreiche Aktivitätsmöglichkeiten für jeden Geschmack. Nur 500 Meter trennen euch von der rauen Schönheit der Nordsee, die zu langen Spaziergängen am Strand einlädt. In der nahegelegenen Küstenstadt Hvide Sande könnt ihr nicht nur einkaufen, sondern auch frischen Fisch direkt vom Hafen mit nach Hause bringen.

Für Angelbegeisterte und Wassersportler ist der Ringkøbing Fjord ein wahres Paradies ? vom Windsurfen bis hin zum Stand-up-Paddling ? es gibt viel zu erleben.

Ausstattung

  6 Personen
   Haustiere nicht erlaubt
  4000 m Abstand zum Kaufmann
  500 m Abstand zum Strand
Sauna
Geschirr-spüler
Nicht-Raucher

Weitere Ausstattung

Das Haus

  Grundstück: 2847 m²
  Wohnfläche: 83 m²
  Baujahr: 1986
  Renovierung: 2010
  Einkaufsmöglichkeiten: 4000 m
  Nordsee: 500 m
  Meerblick
  Personen: 6
  Schlafzimmer: 3
  Einzelbetten: 2
  Doppelbetten: 2
  Kinderstühle: 1
  Holzofen
  Waschmaschine
  Geschirr-spüler
  Trockner

Zimmer

Küche:
  Kühlschrank
  Ofen
  Mikrowelle

Badezimmer:
  Badezimmer: 1
  Sauna

Unterhaltung

  CD-Player
  DVD-Player
  Radio
  Deutsche Fernsehsender

Draussen

  Liegestühle
  Grill

Bedingungen

Bei Ankunft kannst du die Schlüssel ab 15 Uhr in unserem Büro abholen. Abreise ist spätestens um 10 Uhr bzw. 9 Uhr wenn die Endreinigung von uns unternommen wird.

Auf Karte

Haus buchen
Wochenkalender 2026
07
EUR
464
08
EUR
434
09
EUR
434
10
EUR
434
11
EUR
434
12
EUR
434
13
EUR
514
14
15
EUR
674
16
EUR
464
17
EUR
464
18
EUR
514
19
EUR
514
20
21
EUR
514
22
EUR
604
23
EUR
514
24
EUR
514
25
EUR
604
26
EUR
604
27
EUR
824
28
EUR
1.084
29
EUR
1.134
30
31
32
EUR
1.224
33
EUR
1.134
34
EUR
984
35
36
37
EUR
604
38
EUR
514
39
EUR
514
40
EUR
514
41
EUR
514
42
EUR
604
43
EUR
674
44
45
EUR
434
46
47
48
49
50
51
52
EUR
824
53
EUR
1.134

Dauer

Die gewählte Periode: KW
-
Preis: Haus buchen »
Kontakt  Ruf mich an

Ähnliche Häuser

Julianevej 190
Bjerregård
Preis ab 1.134 EUR
Mehr sehen
Kirstinevej 100
Bjerregård
Preis ab 1.094 EUR
Mehr sehen
Mamrelund 37
Hvide Sande
Preis ab 994 EUR
Mehr sehen
Julianevej 87
Bjerregård
Preis ab 1.064 EUR
Mehr sehen