« Zurück

Schönes Ferienhaus mit Carport und strandnah in Søndervig

Katalognr.: i6879

Hafavej 149, Søndervig

Gemütliches Ferienhaus, 1998 am Hafavej gebaut, nur 250 m von der Nordsee und 1500 m vom Zentrum in Soendervig entfernt. Es sind 6 Schlafplätze vorhanden; ein Hund darf mitgebracht werden. Schöne geschlossene Terrasse Richtung Süden, teilweise Natur-, teilweise Grasgrundstück inklusive Carport.

Ein schönes Ferienhaus im Hafavej 149

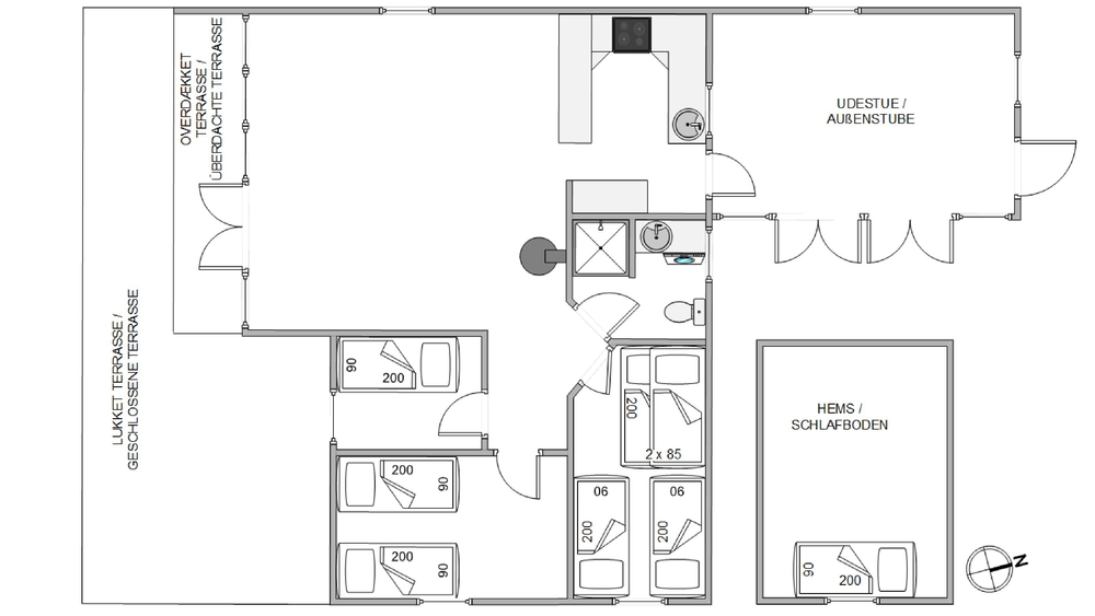
Ein schönes und gemütliches Ferienhaus in Sondervig, gebaut aus Holz, mit offener Decke bis zum First und guter Ausstattung. Es sind 3 Schlafzimmer vorhanden, von eines mit einem Einzelbett ausgestattet ist, während die anderen beiden Schlafzimmer über zwei Einzelbetten verfügen. Als besonderes extra ist eines der beiden Schlafzimmer mit den 2 Einzelbetten zusätzlich mit einem Etagenbett ausgestattet.

Auf dem Hängeboden befindet sich ebenfalls ein Schlafplatz. Das Badezimmer ist mit Fußbodenheizung, Dusche und Waschmaschine ausgestattet. In der Küche findet Ihr einen Geschirrspüler und eine Mikrowelle, ebenso einen 60 l Gefrierschrank. Die Küche ist in der nordwestlichen Ecke platziert, dort liegt auch der Haupteingang.

In Kombination mit der Küche gibt es ein gemütliches Wohnzimmer. Die großen Fensterflächen gehen dort in Richtung Süden. U.a. ist das Wohnzimmer mit guten Möbeln und einem schicken Kamin, Flachbildschirm, Radio mit CD- und DVD-Spielern sowie gratis WLAN-Internet ausgestattet.

Vom Wohnzimmer aus habt Ihr auch eine Tür zu der geschlossenen und teilweise überdachten Terrasse in südlicher Lage.

Schöne Terrasse

Entlang der südlichen Fassade liegt die richtig schöne und geschlossene Terrasse. Diese ist auch teilweise überdacht und somit ideal für Grillabende in den Sommermonaten ? mit dem Nordseerauschen im Hintergrund.

Es ist ein schöner Platz für Kinder und den Familienhund. Darüber hinaus ist die Luft das ganze Jahr über herrlich frisch. Die Nordsee und die Dünen liegen sehr nah am Ferienhaus, Sondervigs Zentrum ist nur einen kurzen Fußweg entfernt. Der nahe Golfplatz mit 27 Löchern, einige davon nur wenige hundert Meter vom Haus entfernt, kann fast ganzjährig bespielt werden.

Angelt Ihr gern, dann ist Hvide Sande genau richtig für euch, denn dort könnt Ihr an der Schleuse, am Fjord oder am Meer angeln. Alles in allem bietet dieses Ferienhaus genau den richtigen Rahmen für schöne Ferien.

Ausstattung

  8 Personen
  1 Haustiere erlaubt
  1500 m Abstand zum Kaufmann
  250 m Abstand zum Strand
Geschirr-spüler
Nicht-Raucher

Weitere Ausstattung

Das Haus

  Grundstück: 1500 m²
  Wohnfläche: 70 m²
  Baujahr: 1998
  Einkaufsmöglichkeiten: 1500 m
  Nordsee: 250 m
  Personen: 8
  Schlafzimmer: 3
  Einzelbetten: 5
  Etagenbett: 1
  Kinderstühle: 1
  Kinderbetten: 1
  Haustiere
  Holzofen
  Waschmaschine
  Geschirr-spüler

Zimmer

Küche:
  Kühlschrank
  Ofen
  Mikrowelle

Badezimmer:
  Badezimmer: 1

Unterhaltung

  DVD-Player
  Radio
  Deutsche Fernsehsender

Draussen

  Liegestühle
  Grill

Bedingungen

Bei Ankunft kannst du die Schlüssel ab 15 Uhr in unserem Büro abholen. Abreise ist spätestens um 10 Uhr bzw. 9 Uhr wenn die Endreinigung von uns unternommen wird.

Auf Karte

Haus buchen
Wochenkalender 2026
05
EUR
364
06
EUR
364
07
08
09
10
11
EUR
364
12
EUR
364
13
14
15
16
EUR
394
17
EUR
394
18
EUR
454
19
20
21
22
23
24
25
26
27
EUR
724
28
EUR
944
29
30
31
32
33
34
35
36
37
EUR
514
38
EUR
454
39
EUR
454
40
EUR
454
41
EUR
454
42
43
EUR
594
44
EUR
514
45
EUR
364
46
EUR
364
47
EUR
364
48
EUR
364
49
50
51
52
EUR
724
53

Dauer

Die gewählte Periode: KW
-
Preis: Haus buchen »
Kontakt  Ruf mich an

Ähnliche Häuser

Harbo Stages Vej 49
Søndervig
Preis ab 884 EUR
Mehr sehen
Havklitvej 131
Klegod
Preis ab 894 EUR
Mehr sehen
Troldedalen 65
Houvig
Preis ab 1.014 EUR
Mehr sehen
Klitdalen 7
Houvig
Preis ab 1.054 EUR
Mehr sehen