« Zurück

Helles, gemütliches Sommerhaus für 6 Personen auf Holmsland Klit

Katalognr.: H5437

Fladsbjergvej 28, Klegod

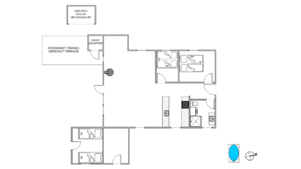
Ruhig gelegen, eingebettet in die schöne Klit- und Heidelandschaft, nur 450 m entfernt von der Nordsee, erwartet euch auf Fladsbjergvej 28 dieses in 2022 frisch renovierte und geschmackvoll eingerichtete Ferienhaus mit Platz für bis zu 6 Personen. Tolle Extras wie eine Außendusche, eine mobile Badewanne im Freien, ein Shelter, um draußen zu schlafen, sowie ein separater Annex mit Schlafmöglichkeit für 2 Personen stehen euch zur Verfügung.

Geschmackvolle Einrichtung ? Kamin & Wärmepumpe sorgen für angenehme Temperaturen

Das helle sowie stilvoll ausgestattete Ferienhaus ist perfekt für euch als Familie. 2 Schlafzimmer mit Doppelbett befinden sich im Haupthaus. Ein weiteres Schlafzimmer mit 2 Einzelbetten stehen im extra liegenden Annex (8 qm) zur Verfügung, perfekt für größere Kinder, die ihr eigenes Reich in Beschlag nehmen wollen.

Highlight für Abenteurer ist der Shelter, welcher angrenzend an die Terrasse aufgestellt wurde und euch die Möglichkeit bietet, unter freiem Himmel zu schlafen, lasst euch dieses Erlebnis nicht entgehen.

Sowohl ein herkömmlicher Kaminofen als auch alternativ eine moderne Wärmepumpe sorgen für angenehme Temperaturen und helfen gleichzeitig, euer Budget zu schonen.

Toller Außenbereich mit schöner, überdachter Terrasse, Außendusche & mobiler Badewanne

Der Terrassenbereich ist großzügig und durchdacht angelegt. Die teilweise überdachte Terrasse bietet euch die Möglichkeit, viel Zeit an der frischen Luft zu bringen und selbst bei unbeständigem Wetter, so viel wie möglich draußen sein zu können.

Highlight hier sind die Außendusche, die euch von April bis November zur Verfügung steht, sowie die Badewanne, welche mobil ist und damit an den Platz verbracht werden kann, welchen ihr bevorzugt. Sicherlich ungewöhnlich und damit auch besonders und gerade im Urlaub ein tolles Erlebnis.

Schöne, naturnahe und ruhige Lage auf Holmsland Klit in Klegod

Das Ferienhaus in Klegod liegt mitten auf Holmsland Klit, einer schmalen Landzunge zwischen Nordsee und Ringkøbing Fjord. Hier erwarten euch traumhafte Sonnenaufgänge über dem Fjord und spektakuläre sowie farbenfrohe Sonnenuntergänge am Meer.

Tolle Rad- und Wanderwege lassen euch die schöne Umgebung erkunden. Spaziert in südliche Richtung zum Leuchtturm Lyngvig Fyr oder in nördliche Richtung nach Søndervig, wo ihr euch mit einem leckeren Eis oder einem Restaurantbesuch belohnen könnt. Freut euch auf eine schöne und erholsame Zeit an der dänischen Nordseeküste und gönnt euch eine kleine Auszeit vom Alltag.

Ausstattung

  6 Personen
   Haustiere nicht erlaubt
  3900 m Abstand zum Kaufmann
  450 m Abstand zum Strand
Geschirr-spüler
Nicht-Raucher

Weitere Ausstattung

Das Haus

  Grundstück: 1642 m²
  Wohnfläche: 78 m²
  Baujahr: 1984
  Renovierung: 2022
  Einkaufsmöglichkeiten: 3900 m
  Nordsee: 450 m
  Personen: 6
  Schlafzimmer: 2
  Einzelbetten: 2
  Doppelbetten: 2
  Holzofen
  Waschmaschine
  Geschirr-spüler

Zimmer

Küche:
  Kühlschrank
  Ofen
  Mikrowelle

Badezimmer:
  Badezimmer: 1

Unterhaltung

  Radio
  Deutsche Fernsehsender

Draussen

  Liegestühle

Bedingungen

Bei Ankunft kannst du die Schlüssel ab 15 Uhr in unserem Büro abholen. Abreise ist spätestens um 10 Uhr bzw. 9 Uhr wenn die Endreinigung von uns unternommen wird.

Auf Karte

Haus buchen
Wochenkalender 2026
04
EUR
564
05
06
EUR
564
07
08
EUR
564
09
EUR
564
10
EUR
564
11
EUR
564
12
EUR
564
13
14
15
EUR
814
16
EUR
564
17
18
19
20
21
22
23
24
25
EUR
714
26
27
28
29
30
31
32
33
34
35
36
EUR
714
37
38
39
40
EUR
624
41
EUR
624
42
43
EUR
814
44
EUR
714
45
EUR
564
46
EUR
564
47
EUR
564
48
EUR
564
49
EUR
564
50
EUR
564
51
52
EUR
994
53
EUR
1.374

Dauer

Die gewählte Periode: KW
-
Preis: Haus buchen »
Kontakt  Ruf mich an

Ähnliche Häuser

Klitdalen 45
Houvig
Preis ab 1.184 EUR
Mehr sehen
Hafavej 26
Søndervig
Preis ab 1.394 EUR
Mehr sehen
Nordsøvej 59
Søndervig
Preis ab 1.364 EUR
Mehr sehen
Wolle Friks Vej 81
Søndervig
Preis ab 1.354 EUR
Mehr sehen