« Zurück

Tolles Ferienhaus mit Shelter und Außendusche

Katalognr.: K6029

Egernvej 1, Lodbjerg Hede

Dieses moderne 4-Personen-Ferienhaus auf Lodbjerg Hede ist eine gute Wahl für diejenigen, die ein einladendes Ferienhaus inmitten der schönen Natur der Westküste suchen. Das Ferienhaus bietet nicht nur schöne Innenräume, sondern auch einen wunderbaren Außenbereich mit einer überdachten Terrasse, einem großen Garten und einem Shelter auf dem Grundstück. Auch euer Hund ist herzlich willkommen

Einladende Umgebung im Egernvej 1 

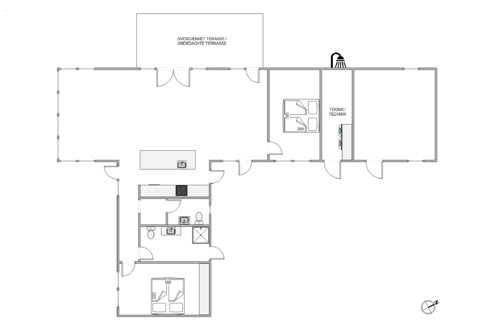
Das Ferienhaus in Egernvej 1 ist ideal für Paare oder kleine Familien mit Hund, die von einem erholsamen Urlaub in moderner Umgebung träumen. Die 120 Quadratmeter des Hauses wirken durch die helle Farbpalette, die großen Fenster und den offenen Dachstuhl noch größer. 

Neben der geräumigen Küche, die zum Wohnzimmer hin offen ist, verfügt das Ferienhaus über zwei Doppelschlafzimmer, ein Badezimmer und eine Toilette. Im Technikraum stehen die praktische Waschmaschine und der Trockner bereit, um die Hausarbeit zu minimieren, und nebenan befindet sich ein zusätzlicher Hobbyraum.

Vom Wohnzimmer hast du einen Blick auf den grünen Garten, der Fliesenboden im Wohnzimmer und in den Schlafzimmern ist mit einer regulierbaren Fußbodenheizung ausgestattet, sodass du immer eine angenehme Wärme genießen kannst. Der Fernseher verfügt über Chromecast, damit du deine Lieblingssendungen und Filme ganz einfach von deinen eigenen Geräten streamen kannst.

Schöner Außenbereich mit überdachter Terrasse, Außendusche und Shelter

Vom Wohnzimmer aus hast du mehrere Ausgänge zur teilweise überdachten Terrasse. Auf der Terrasse findest du einen Gasgrill für schnelle, köstliche Urlaubsgerichte ? und eine Außendusche für eine Abkühlung unter blauem Himmel. Die Außendusche ist von April-November nutzbar. Wenn du ein Elektro- oder Hybridauto hast, kannst du es an der Lademöglichkeit des Hauses aufladen. Die passenden Ladekabel/Adapter bitte selbst mitbringen.

Von der Terrasse aus gelangt man in den gepflegten Garten, in dem sowohl die Kinder als auch der Hund viel Rasen zum Spielen haben. Ein zusätzliches Highlight ist der große Shelter, in dem du deinen inneren Outdoor-Typ finden und vielleicht sogar eine Sommernacht unter dem Sternenhimmel verbringen kannst. Wenn du draußen bist, kannst du auch die Aussicht auf den Golfplatz von Lodbjerg Hede genießen.

Naturschöne Lage, nur wenige Autominuten von der Nordsee und der Stadt entfernt

Das Ferienhaus in Egernvej hat eine hervorragende Lage, nur eine kurze Fahrt vom Meer und der Stadt entfernt. Nur 1000 Meter trennen dich von der brausenden Nordsee, während die nächsten Supermärkte und verschiedene andere Einkaufs- und Speisemöglichkeiten im beliebten Badeort Søndervig in wenigen Autominuten zu erreichen sind.

Lodbjerg Hede ist ein ruhiges und landschaftlich reizvolles Feriengebiet mit einem guten Wegenetz und Ausflugsmöglichkeiten. Machst du zum Beispiel eine Radtour zum Surfspot Bagges Dæmning oder gehst du mit den Kindern zum Naturspielplatz von Lodbjerg Hede. In der Nähe gibt es zahlreiche Urlaubsaktivitäten für Jung und Alt.

*es gibt 3 deutsche Fernsehsender 

Ausstattung

  4 Personen
  1 Haustiere erlaubt
  1300 m Abstand zum Kaufmann
  1000 m Abstand zum Strand
Geschirr-spüler
Nicht-Raucher

Weitere Ausstattung

Das Haus

  Grundstück: 2224 m²
  Wohnfläche: 120 m²
  Baujahr: 2022
  Einkaufsmöglichkeiten: 1300 m
  Nordsee: 1000 m
  Personen: 4
  Schlafzimmer: 2
  Doppelbetten: 2
  Haustiere
  Waschmaschine
  Geschirr-spüler
  Trockner

Zimmer

Küche:
  Kühlschrank
  Ofen

Badezimmer:
  Badezimmer: 1
  Toiletten: 1

Unterhaltung

  Radio
  Deutsche Fernsehsender

Draussen

  Liegestühle

Bedingungen

Bei Ankunft kannst du die Schlüssel ab 15 Uhr in unserem Büro abholen. Abreise ist spätestens um 10 Uhr bzw. 9 Uhr wenn die Endreinigung von uns unternommen wird.

Auf Karte

Haus buchen
Wochenkalender 2025
51
52

Dauer

Die gewählte Periode: KW
-
Preis: Haus buchen »
Kontakt  Ruf mich an

Ähnliche Häuser

Søtangevej 1 Nr. 7
Holmsland
Preis ab 2.392 EUR
Mehr sehen
Nordsøvej 59
Søndervig
Preis ab 1.332 EUR
Mehr sehen
Krogen 21
Houvig
Preis ab 1.712 EUR
Mehr sehen
Wolle Friks Vej 81
Søndervig
Preis ab 1.322 EUR
Mehr sehen