« Zurück

Ferienhaus mit gehobener Ausstattung & Außenwhirlpool

Katalognr.: B2228

Dortheasvej 54, Bjerregård

Seid ihr auf der Suche nach einem Ferienhaus mit hochwertiger Ausstattung, wo ihr jede Menge Platz für Spaß und Entspannung habt und auch eure beiden Hunde Willkommen sind? Dann ist dieses im Jahre 2023 erbaute Ferienhaus im Dortheasvej 54, an der dänischen Westküste, genau das richtige für euch. Mit Platz für bis zu 12 Personen ist es perfekt für eine große Familie oder gemeinsam reisende Freunde geeignet.

Egal ob ihr euch im Außenwhirlpool entspannen oder beim Tischtennis austoben wollt ? hier wird für jeden Geschmack etwas geboten. Um das Urlaubserlebnis besonders umweltfreundlich zu gestalten, wurde hier sogar eine Solaranlage verbaut. Für Besitzer eines E-Autos, gibt es zudem eine Lademöglichkeit am Sommerhaus. Die Lademöglichkeit für das Elektroauto ist eine Ladestation, relevantes Kabel ist mitzubringen.

Jede Menge Platz für Entspannung und Abwechslung

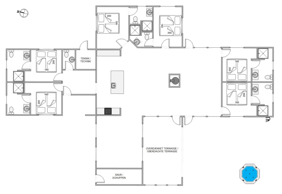
Dieses stilvolle Feriendomizil bietet neben einer hochwertigen Ausstattung auch eine praktische Aufteilung. Auf dem 180 modern gestalteten Quadratmetern gibt es insgesamt sechs gemütliche Schlafzimmer mit bequemen Doppelbetten und eigenem Duschbad. So könnt ihr euch gut aufteilen und es gibt keinen Stau im Bad. Durch die Verteilung der Zimmer in unterschiedliche Ecken des Ferienhauses, kann sich jeder auch mal zurückziehen.

Das Herz des Sommerhauses bildet der großzügige, helle Wohnbereich mit offener Küche und Aktivitätsraum. Hier könnt ihr es euch abends vorm knisternden Kaminfeuer bequem machen, einen Film schauen (es gibt 3 deutsche TV-Programme), gemeinsam Kochen oder euch im Aktivitätsbereich bei einer runde Tischtennis austoben ? je nachdem wonach euch der Sinn steht.

Dank der hochwertigen und modernen Küchenausstattung könnt ihr hier leckere Gerichte zaubern und am schönen Esstisch in geselliger Runde essen. Am Ende eures Urlaubes braucht ihr euch auch nicht um die Reinigung des Ferienhauses zu sorgen, denn hier ist die Endreinigung inklusive. So könnt ihr eure Ferien bis zum Schluss genießen.

Geschlossener Terrassenbereich mit Außenwhirlpool lädt zum Entspannen ein

Euer Feriendomizil im Dortheasvej 54 liegt auf einem schönen, ca. 1400 qm großen Naturgrundstück und bietet euch eine geschlossene und teils überdachte Terrasse. So könnt ihr bei jedem Wetter einen geschützten Platz an der frischen Luft finden und euch in den bequemen Gartenmöbeln oder auf den Sonnenliegen entspannen.

Ein besonderes Highlight ist der Außenwhirlpool. Was gibt es Schöneres als im warmen Wasser die Seele baumeln zu lassen und den Sternenhimmel über sich zu beobachten? Auch eine praktische Außendusche steht euch in den warmen Monaten zur Erfrischung zur Verfügung. Die Außendusche steht von April bis November zur Verfügung. Für eure Kinder gibt es jede Menge Platz zum Spielen.

Bei einem schönen Grillabend auf dem Gasgrill, könnt ihr den Urlaubstag gemeinsam ausklingen lassen.

Natur pur und jede Menge Ausflugsmöglichkeiten

Im beschaulichen Feriengebiet Bjerregård ist die Natur um euch die größte Attraktion. Egal ob am kilometerweiten Sandstand oder in der Heide- und Dünenlandschaft. Hier könnt ihr den Alltagsstress hinter euch lassen.

Wenn ihr Butiken und Restaurants sucht, so werdet ihr im nahen Hafenort Hvide Sande fündig. Hier ist auch ein wahrer Hotspot für Wassersportbegeisterte. Egal ob Wellenreiten in der Nordsee, SUB-Bord fahren auf dem Ringkøbing Fjord oder eine Runde Wasserski, hier kommt jeder auf seine Kosten.

Auch kulturelle Angebote, wie Museen und Führungen gibt es hier. Besucht z.B. den Leuchtturm Lyngvig Fyr und genießt die einmalige Aussicht über Fjord und Meer oder nehmt an einer Bunkerführung teil.

Ausstattung

  12 Personen
  1 Haustiere erlaubt
  800 m Abstand zum Kaufmann
  450 m Abstand zum Strand
Geschirr-spüler
Nicht-Raucher

Weitere Ausstattung

Das Haus

  Grundstück: 1424 m²
  Wohnfläche: 180 m²
  Baujahr: 2023
  Einkaufsmöglichkeiten: 800 m
  Nordsee: 450 m
  Personen: 12
  Schlafzimmer: 6
  Doppelbetten: 6
  Haustiere
  Holzofen
  Waschmaschine
  Geschirr-spüler
  Trockner

Zimmer

Küche:
  Kühlschrank
  Ofen
  Mikrowelle

Badezimmer:
  Badezimmer: 6
  Toiletten: 1

Unterhaltung

  Deutsche Fernsehsender

Draussen

  Liegestühle

Bedingungen

Bei Ankunft kannst du die Schlüssel ab 15 Uhr in unserem Büro abholen. Abreise ist spätestens um 10 Uhr bzw. 9 Uhr wenn die Endreinigung von uns unternommen wird.

Auf Karte

Haus buchen
Wochenkalender 2025
49
EUR
1.782
50
EUR
1.782
51
EUR
1.782
52

Dauer

Die gewählte Periode: KW
-
Preis: Haus buchen »
Kontakt  Ruf mich an

Ähnliche Häuser

Arvidvej 72
Bjerregård
Preis ab 662 EUR
Mehr sehen
Rauhesvej 63
Bjerregård
Preis ab 624 EUR
Mehr sehen
Arvidvej 146
Bjerregård
Preis ab 742 EUR
Mehr sehen
Sommervej 48
Skodbjerge
Preis ab 622 EUR
Mehr sehen