« Zurück

5-Sterne-Haus mit Außenwhirlpool und Sauna, 175 m zum Strand!

Katalognr.: BB1071

Bjerregårdsvej 381, Bjerregård

Nur 175 Meter von Dünen, Strand und Nordsee entfernt, liegt im Bjerregårdsvej 381 dieses tolle und in 2021 ganz neu erbaute Ferienhaus. Die 4 Schlafzimmer bieten insgesamt bis zu 6 Personen einen tollen Schlafplatz. Wer Lust auf ein gewisses Extra hat, kann sich sowohl auf eine Sauna als auch einen tollen Außenwhirlpool freuen!

Wellnessurlaub für Körper und Seele am Meer

Die einen wollen unbedingt ans Meer und andere liebäugeln mit einem Wellnessaufenthalt ? hier könnt ihr alles miteinander verbinden. Urlaub am Meer dürft ihr hier wörtlich nehmen ? nur wenige Meter trennen euch von den hohen Dünen sowie dem kilometerlangen Sandstrand und der dänischen Nordsee.

Lange Spaziergänge mit dem Hund, faule und entspannte Tage auf der Terrasse oder stundenlange Wanderungen entlang des Wassers könnten hier auf der Tagesordnung stehen.

Und wenn ihr dann wieder zu Hause angelangt seid, heißt es Zeit für Wellness. Dank der Sauna und des Außenwhirlpool habt ihr nur noch die Qual der Wahl oder aber ihr kombiniert beides. Unabhängig von der Jahreszeit ist so ein Bad im warmen, sprudelndem Wasser eine reine Wohltat und warum nicht an einem wolkenfreien Abend, den funkelnden Sternenhimmel betrachten ? es ist einfach schön.

Gute, moderne Ausstattung ? Kamin und Wärmepumpe

Aufgrund des Baujahres in 2021 ist das Ferienhaus sowohl modern als auch komfortabel ausgestattet. Euch stehen zudem ein Geschirrspüler, eine Waschmaschine und ein Trockner bereit, um euch tatkräftig im Haushalt zu unterstützen.

Für das Hyggegefühl und die damit ersehnte Gemütlichkeit, sorgt gerade an kühleren Abenden ein loderndes Feuer im Kamin. Alternativ könnt ihr auch die Wärmepumpe nutzen, welche für angenehme Temperaturen sorgt.

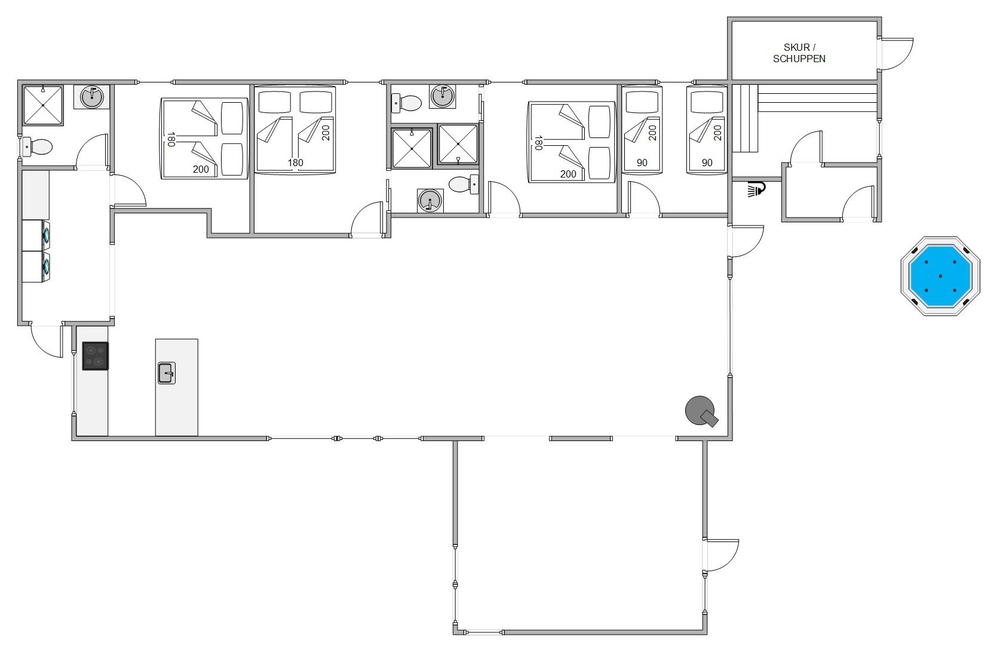
Dieses 5 Sterne Ferienhaus bietet sich gut für eine oder auch mehrere Familien an, die gern gemeinsam Urlaub machen wollen. Insgesamt stehen euch 4 Schlafzimmer sowie 3 Badezimmer (mit Fußbodenheizung) zur Verfügung.Der Aktivitätbereich mit Billardtisch ist sowohl bei Klein und Groß beliebt und sorgt für viele schöne Stunden mit den Liebsten.

Die Endreinigung ist im Mietpreis schon enthalten.

Die Lademöglichkeit für das Elektroauto ist eine Ladestation, relevantes Kabel ist mitzubringen (Typ 2 Stecker).

Ausstattung

  8 Personen
   Haustiere nicht erlaubt
  1000 m Abstand zum Kaufmann
  175 m Abstand zum Strand
Sauna
Geschirr-spüler
Nicht-Raucher

Weitere Ausstattung

Das Haus

  Grundstück: 1202 m²
  Wohnfläche: 150 m²
  Baujahr: 2021
  Einkaufsmöglichkeiten: 1000 m
  Nordsee: 175 m
  Personen: 8
  Schlafzimmer: 4
  Einzelbetten: 2
  Doppelbetten: 3
  Holzofen
  Waschmaschine
  Geschirr-spüler
  Trockner

Zimmer

Küche:
  Kühlschrank
  Ofen
  Mikrowelle

Badezimmer:
  Badezimmer: 3
  Sauna

Unterhaltung

  Deutsche Fernsehsender

Draussen

  Liegestühle
  Grill

Bedingungen

Bei Ankunft kannst du die Schlüssel ab 15 Uhr in unserem Büro abholen. Abreise ist spätestens um 10 Uhr bzw. 9 Uhr wenn die Endreinigung von uns unternommen wird.

Auf Karte

Haus buchen
Wochenkalender 2026
03
EUR
1.114
04
05
EUR
1.114
06
07
08
09
10
11
12
13
14
15
16
17
18
19
20
21
22
23
24
25
EUR
1.514
26
27
28
29
30
31
32
33
34
EUR
2.264
35
36
37
38
39
40
41
42
43
44
45
46
47
48
49
50
51
52
53

Dauer

Die gewählte Periode: KW
-
Preis: Haus buchen »
Kontakt  Ruf mich an

Ähnliche Häuser

Laust Diges Vej 21
Haurvig
Preis ab 414 EUR
Mehr sehen
Fingalvej 3
Hvide Sande
Preis ab 374 EUR
Mehr sehen
Kr Madsens Vej 24
Haurvig
Preis ab 404 EUR
Mehr sehen
Æ Gammel Havn 33
Hvide Sande
Preis ab 384 EUR
Mehr sehen