« Zurück

Stilvolles Ferienhaus mit Sauna & Außendusche für 6 Personen

Katalognr.: A1624

Auroravej 40, Bjerregård

Seid ihr auf der Suche nach einem liebevoll eingerichteten Ferienhaus im typisch skandinavischen Stil? Dann ist dieses stilvolle Ferienhaus im Auroravej 40, an der dänischen Westküste, bestimmt genau das richtige für euch. Auf 80 gemütlich eingerichteten Quadratmetern ist genug Platz für bis zu 6 Personen. Highlights wie Außensauna und großzügige Südterrasse laden zum Entspannen ein und auch eure beiden Vierbeiner sind willkommen.

Schaltet im skandinavischen Ambiente vom Alltagsstress ab

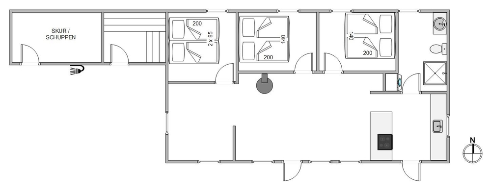
Im Zentrum des Ferienhauses im Auroravej 40 steht der lichtdurchflutete Wohnraum mit Klinkerboden, von dem alle anderen Räume erreichbar sind. Der typisch skandinavische Einrichtungsstil in natürlichen Farbtönen und die liebevoll ausgewählte Einrichtung bilden ein harmonisches Gesamtbild und sorgen für eine gemütliche Atmosphäre.

Hier könnt ihr es euch auf der Couch bequem machen und das Knistern des Kaminfeuers genießen oder einen Film schauen. Auch eine energiesparende Wärmepumpe steht euch zum Heizen zur Verfügung. Die offene Küche mit Kochinsel, lädt mit ihrer guten Ausstattung zu gemeinsamen Kochabenden ein. Die Spülmaschine übernimmt danach gerne den Abwasch.

Das moderne Tageslichtbad ist mit Dusche, Fußbodenheizung und Waschmaschine ausgestattet. Wenn sich euer Urlaubstag dem Ende zuneigt, erwarten euch 3 Schlafzimmer mit Doppelbetten, in die ihr euch zurückziehen könnt.

Großzügige Südterrasse mit Außensauna lädt zum Entspannen ein

Vom Wohnbereich aus gelangt ihr auf die große, südgewandte Terrasse mit einem überdachten Bereich. So könnt ihr selbst wählen, ob ihr lieber in der Sonne sitzen oder ein schattiges Plätzchen genießen wollt. Umgeben von dem 1200 qm großen Naturgrundstück könnt ihr euch entspannen und die frische Meeresluft genießen.

Wenn ihr hungrig werdet, könnt ihr den Grill anfeuern und ein leckeres Abendessen zubereiten. Danach könnt ihr euch bei einem Saunagang entspannen und euch untere der Außendusche erfrischen. Letztere steht euch von April bis November zur Verfügung.

Urlaub an der dänischen Westküste

Herzlich willkommen im südlichen Bjerregård, auf der Landenge Holmsland Klit, zwischen Nordsee und Ringkøbing Fjord. Nur 400 m trennen euch vom Meer ? ideal für tägliche Spaziergänge entlang des kilometerlangen Sandstrandes. Auch euren Hunden wird es bestimmt gut am Strand gefallen.

Wenn ihr frische Brötchen zum Frühstück genießen möchtet, so könnt ihr beim nur 2 km entfernten Kaufmann fündig werden. Auch für einen Grillabend könnt ihr euch hier eindecken und leckere dänische Produkte finden.

Ausstattung

  6 Personen
  1 Haustiere erlaubt
  2000 m Abstand zum Kaufmann
  400 m Abstand zum Strand
Sauna
Geschirr-spüler
Nicht-Raucher

Weitere Ausstattung

Das Haus

  Grundstück: 1200 m²
  Wohnfläche: 80 m²
  Baujahr: 1978
  Renovierung: 2016
  Einkaufsmöglichkeiten: 2000 m
  Nordsee: 400 m
  Personen: 6
  Schlafzimmer: 3
  Doppelbetten: 3
  Haustiere
  Holzofen
  Waschmaschine
  Geschirr-spüler

Zimmer

Küche:
  Kühlschrank
  Ofen
  Mikrowelle

Badezimmer:
  Badezimmer: 1
  Sauna

Unterhaltung

  Internet
  Deutsche Fernsehsender

Draussen

  Liegestühle
  Grill

Bedingungen

Bei Ankunft kannst du die Schlüssel ab 15 Uhr in unserem Büro abholen. Abreise ist spätestens um 10 Uhr bzw. 9 Uhr wenn die Endreinigung von uns unternommen wird.

Auf Karte

Haus buchen
Wochenkalender 2026
03
EUR
474
04
EUR
474
05
EUR
474
06
EUR
474
07
08
EUR
474
09
10
11
EUR
474
12
13
14
15
16
17
EUR
534
18
EUR
584
19
EUR
584
20
EUR
684
21
22
23
24
25
26
EUR
684
27
EUR
904
28
EUR
1.184
29
EUR
1.274
30
31
32
EUR
1.374
33
EUR
1.274
34
35
EUR
904
36
EUR
684
37
38
EUR
584
39
40
41
42
EUR
684
43
EUR
774
44
EUR
684
45
46
47
48
49
50
51
52
EUR
904
53
EUR
1.274

Dauer

Die gewählte Periode: KW
-
Preis: Haus buchen »
Kontakt  Ruf mich an

Ähnliche Häuser

Karen Brands Vej 112
Årgab
Preis ab 1.234 EUR
Mehr sehen
Humlegårdsvej 4G
Bjerregård
Preis ab 1.394 EUR
Mehr sehen
Tingodden 251B
Årgab
Preis ab 1.234 EUR
Mehr sehen
Tingodden 113
Årgab
Preis ab 1.234 EUR
Mehr sehen