« Zurück

Großes Ferienhaus mit Billard, Sauna und Spa + Ladestik E-Auto

Katalognr.: J6555

Sneppedalen 55, Houvig

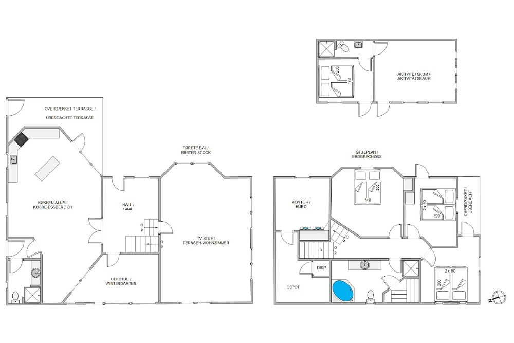
Auf Sneppedalen 55 in Houvig bei Søndervig gelegen, erwartet euch dieses individuelle und großzügige Ferienhaus mit Platz für bis zu 8 Personen. Auf verschiedenen Ebenen stehen euch auf insgesamt 170 m2 großzügige Räumlichkeiten sowie eine komfortable Ausstattung für die schönste Zeit des Jahres zur Verfügung. Angefangen vom Aktivitätsraum mit Billard und Tischtennis bis hin zur Sauna sowie einem Whirlpool erwarten euch hier tolle Möglichkeiten, schöne und erholsame Tage miteinander zu verbringen. Dieses Ferienhaus ist gut für 1 ? 2 Familien geeignet, dann dank der Raumaufteilung und der insgesamt 3 Badezimmer gibt es auch einmal Rückzugsmöglichkeiten.

Spa, Sauna und Aktivitätsraum mit Billard und Tischtennis

Das Ferienhaus auf Sneppedalen 55 in Houvig liegt nur 200 m entfernt vom Strand und hier ist für jeden etwas dabei, um einen schönen Urlaub zu verbringen. Hervorzuheben ist hier der Aktivitätsraum, wo ihr sowohl Tischtennis als auch Billard spielen könnt als auch der extra Bereich mit separatem Schlaf- und Badezimmer.

Das Badezimmer im ersten Stock des Hauses ist für die entspannten Momente zuständig. Hier ist ein klassischer Whirlpool und eine Sauna vorhanden, wo ihr euch während eures Urlaubs zusätzliche Entspannung gönnen und vom Alltag abschalten könnt.

Für gemeinsame und gemütlichen Momente könnt ihr euch im Wohnbereich versammeln, wo ihr gemeinsam kochen, Spiele spielen und Filme ansehen könnt, während der Kamin im Hintergrund knistert. In der oberen Etage gibt es ein weiteres Wohnzimmer, wo man sich auch einmal für einen Moment zurückziehen kann.

3 der Schlafzimmer befinden sich im Ferienhaus, das 4. Schlafzimmer ist im Nebengebäude, welches auch über ein Badezimmer verfügt. In 2 der Schlafzimmer gibt es verstellbare, hochwertige Betten.

Schöne Terrasse im Sneppedalen 55 

Draußen erwarten euch mehrere schöne Terrassen, auf denen ihr die sonnigen Tage genießen könnt. Entspannt auf den Gartenmöbeln und lauscht dem Rauschen der Brandung, während die Kinder im Sandkasten Sandburgen bauen und friedlich spielen. Eine der Terrassen des Ferienhauses befindet sich etwas erhöht auf einer Düne, von der aus ihr einen herrlichen Blick auf die Umgebung genießen könnt. Bis zu 2 Hunde sind erlaubt, welche sich ganz bestimmt auch wohlfühlen werden.

Nach einem erholsamen Tag am Meer könnt ihr ein leckeres Abendessen auf dem Grill zubereiten, mit einem guten Wein in der Hand, die Planung für die kommenden Tage besprechen und einfach den Moment genießen.

Ganz nah an der Nordsee ? nur 200 Meter bis zum Strand ? Lademöglichkeit für E-Auto

Der Strand ist gar nicht weit von Sneppedalen 55 in Houvig entfernt. Die Entfernung beträgt nur 200 Meter, sodass ihr schnell den schönen Sandstrand und die Nordsee erreicht, wo ihr unter anderem lange Spaziergänge machen oder auch und im Meer baden könnt.

Um einzukaufen oder einfach einen kleinen Ausflug nach Søndervig zu unternehmen, wo ihr sowohl Supermärkte als auch mehrere Boutiquen findet, könnt ihr am Strand entlang wandern oder auch mit dem Fahrrad fahren. Solltet ihr ein E-Auto besitzen, findet ihr an eurem Ferienhaus in Houvig eine Lademöglichkeit. Die passenden Ladekabel/Adapter bitte selbst mitbringen.

*es gibt 3 deutsche Fernsehsender 

Ausstattung

  8 Personen
  1 Haustiere erlaubt
  3500 m Abstand zum Kaufmann
  200 m Abstand zum Strand
Sauna
Geschirr-spüler
Nicht-Raucher

Weitere Ausstattung

Das Haus

  Grundstück: 1327 m²
  Wohnfläche: 170 m²
  Baujahr: 2004
  Einkaufsmöglichkeiten: 3500 m
  Nordsee: 200 m
  Personen: 8
  Schlafzimmer: 3
  Doppelbetten: 4
  Haustiere
  Holzofen
  Waschmaschine
  Geschirr-spüler
  Trockner

Zimmer

Küche:
  Kühlschrank
  Ofen
  Mikrowelle

Badezimmer:
  Badezimmer: 3
  Sauna

Unterhaltung

  Deutsche Fernsehsender

Draussen

  Liegestühle
  Grill

Bedingungen

Bei Ankunft kannst du die Schlüssel ab 15 Uhr in unserem Büro abholen. Abreise ist spätestens um 10 Uhr bzw. 9 Uhr wenn die Endreinigung von uns unternommen wird.

Auf Karte

Haus buchen
Wochenkalender 2025
50
EUR
1.062
51
52

Dauer

Die gewählte Periode: KW
-
Preis: Haus buchen »
Kontakt  Ruf mich an

Ähnliche Häuser

Lyngvejen 21
Klegod
Preis ab 422 EUR
Mehr sehen
Ternedalen 36
Houvig
Preis ab 332 EUR
Mehr sehen
Nordsø Ferievej 11
Klegod
Preis ab 412 EUR
Mehr sehen
Lyngsletten 31
Klegod
Preis ab 342 EUR
Mehr sehen