« Zurück

Typisch dänisches Ferienhaus mit Kaminofen

Katalognr.: H5855

Nordsø Ferievej 54, Klegod

Nur 600 m von der tosenden Nordsee liegt im Nordsø Ferievej 54 dieses charmante, reetgedeckte Ferienhaus. Hier in Klegod seid ihr etwas nördlich vom Lyngvig Leuchturm in einem liebevoll gestalteten Dreieckshäuschen untergebracht.

Freundlicher Wohnbereich mit Kaminofen

Hängt eure Kleidung an den Garderobenhaken und tritt herein in das gemütliche Wohnzimmer mit Kaminofen und Decken bis zum First. Die helle Innengestaltung unter der Verwendung von naturbelassenen Farbtönen gibt dem Raum eine wohlige Atmosphäre und lädt zum Verweilen ein.

Durch die große Fensterfront im Wohnbereich habt ihr einen super Blick ins Freie und zugleich einen direkten Zugang zu der teilweise überdachten Holzterrasse. Die sich anschließende Küche ist klein, aber fein und lässt durch die offene Gestaltung auch zu, dass der Küchenchef den Überblick behält.
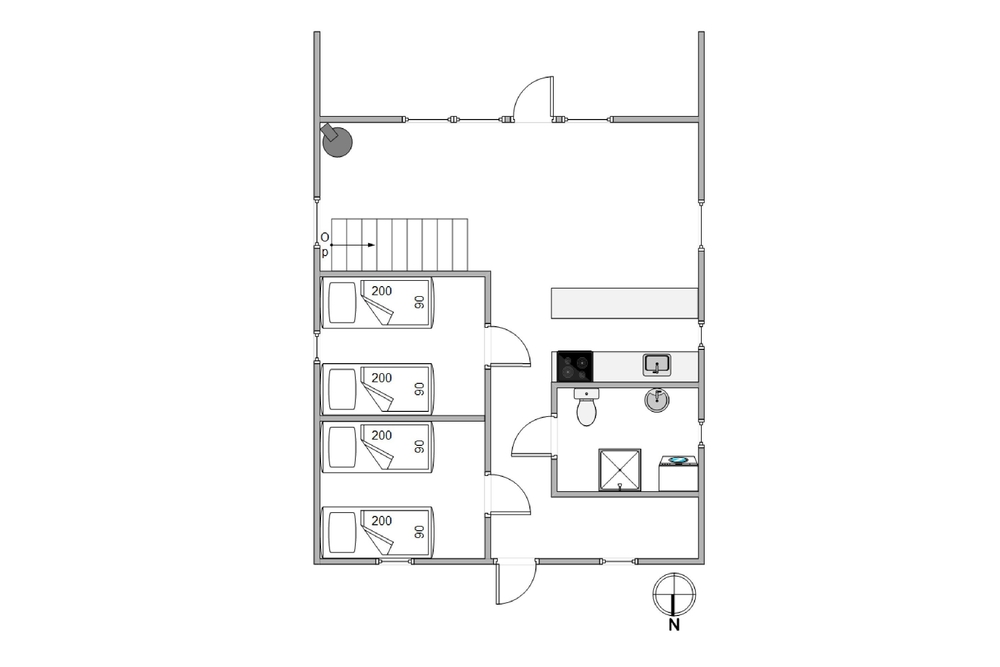
Die 2 Schlafräume sind wie auch das Duschbad hell und freundlich gestaltet und es bietet eine Fußbodenheizung.

Teilweise überdachte und windgeschützte Terrasse

Ihr findet 2 Terrassen am Haus einmal direkt am Haupteingang und einmal die südgewandte Hauptterrasse vom Wohnzimmer aus, so könnt ihr es euch je nach Windrichtung auf einer der beiden Terrassen gemütlich machen und die frische Brise einatmen, die vom Meer herüber weht. Für die kleinsten Mitglieder der Familie steht ein Sandkasten zur Verfügung.

In Klegod seid ihr zwischen den beiden Orten Hvide Sande (6km) und Søndervig (7km) gelegen. In unmittelbarer Nähe findet ihr den Lyngvig Leuchtturm, der ein schöner Ausflugsort für Groß und Klein ist. Nach dem ihr die unzähligen Stufen des Leuchtturms bezwungen habt, könnt ihr einen Kaffee trinken und durchpusten und wer noch Luft hat kann sich auf dem schönen Spielplatz vergnügen oder einen Spaziergang zum Meer machen.

Ausstattung

  4 Personen
  1 Haustiere erlaubt
  6000 m Abstand zum Kaufmann
  600 m Abstand zum Strand
Geschirr-spüler
Nicht-Raucher

Weitere Ausstattung

Das Haus

  Grundstück: 2500 m²
  Wohnfläche: 60 m²
  Baujahr: 1972
  Renovierung: 2019
  Einkaufsmöglichkeiten: 6000 m
  Nordsee: 600 m
  Personen: 4
  Schlafzimmer: 2
  Einzelbetten: 4
  Kinderstühle: 1
  Kinderbetten: 1
  Haustiere
  Holzofen
  Waschmaschine
  Geschirr-spüler

Zimmer

Küche:
  Kühlschrank
  Ofen

Badezimmer:
  Badezimmer: 1

Unterhaltung

  Deutsche Fernsehsender

Draussen

  Liegestühle
  Grill

Bedingungen

Bei Ankunft kannst du die Schlüssel ab 15 Uhr in unserem Büro abholen. Abreise ist spätestens um 10 Uhr bzw. 9 Uhr wenn die Endreinigung von uns unternommen wird.

Auf Karte

Haus buchen
Wochenkalender 2025
47
EUR
462
48
49
50
EUR
462
51
EUR
462
52
EUR
712

Dauer

Die gewählte Periode: KW
-
Preis: Haus buchen »
Kontakt  Ruf mich an

Ähnliche Häuser

Fladsbjergvej 49
Klegod
Preis ab 902 EUR
Mehr sehen
Jens Jensens Vej 46
Søndervig
Preis ab 942 EUR
Mehr sehen
Koglevej 4
Lodbjerg Hede
Preis ab 962 EUR
Mehr sehen
Troldedalen 65
Houvig
Preis ab 992 EUR
Mehr sehen